0

Разделы

Со степенью защиты IP65 - Блоки питания

Со степенью защиты IP65 - Блоки питания

Область применения

Блок питания со степенью защиты IP65, выполненный в конструктиве силовых модулей станции ET 200X. При автономном использовании блок должен комплектоваться специальными уплотнительными прокладками.

Технические данные

 

Технические данные

Тип

10 A

Номер для заказа

6EP1 334-2CA00

Вход

Однофазный переменный ток

Номинальное значение напряжения Ue Nenn

120/230 В перем. тока установка с помощью перемычки

Диапазон напряжений

от 93 до 132 В перем. тока/ от 187 до 264 В перем. тока

Стойкость к перенапряжениям

2,3 x Ue Nenn ,1,3 мс (EN 61 000-4-1)

Буферизация при исчезновении напряжения сети при Ia Nenn

> 20 мс при Ue = 93/187 В

Номинальное значение частоты сети; диапазон

50/60 Гц, от 47 до 63 Гц

Номинальное значение тока Ie Nenn

4,3/2,6 A

Ограничение тока включения (+25 °C)

< 65 A, тип. 3 мс

I2t

< 2,5 A2с

Встроенный входной предохранитель

T 6,3 A/250 В (недоступен)

Рекомендуемый силовой выключатель (IEC 898) в сетевой подводке

от 16 A, характеристика C

Выход

регулируемый, потенциально свободный, постоянное напряжение

Номинальное значение напряжения Ua Nenn

24 В пост. тока

Общий допуск

± 3 %

- статическая компенсация сети

ок. 0,2 %

- статическая компенсация нагрузки

ок. 1 %

Остаточные пульсации (тактовая частота: ок. 50 кГц)

< 150 мВss

Выбросы (полоса частот: 20 МГц)

< 240 мВss

Диапазон настройки

от 22,8 до 25,2 В

Индикация режима

зеленый светодиод для 24 В OK

Характеристика включения/выключения

без перерегулирования Ua (плавный пуск)

Задержка пуска/нарастание напряжения

< 3 с/тип. 80 мс

Номинальное значение тока I a nenn

10 A

Диапазон токов

 

до +45 °C

от 0 до 10 A (до +40 °C)

до +60 °C

от 0 до 8 A (до +55 °C)

дин. U/I при

 

запуске на коротком замыкании

-

Короткое замыкание во время работы

тип. 38 A в течение 200 мс

Возможность параллельного включения для повышения мощности

Да, 2 блока

Коэффициент полезного действия

 

Коэффициент полезного действия при Ua Nenn, Ia Nenn

ок. 87 %

Мощность потерь при Ua Nenn, Ia Nenn

ок. 36 Вт

Регулирование

 

Компенсация сети дин.(Ue Nenn ±15 %)

± 0,3 % Ua

Компенсация нагрузки дин. (Ia: 50/100/50 %)

± 5 % Ua

Время регулирования

 

Изменение нагрузки с 50 до 100 %

тип. 0,2 мс

Изменение нагрузки со 100 на 50 %

тип. 0,2 мс

Защита и контроль

 

Защита от перенапряжений на выходе

да, в соответствии с EN 60 950

Ограничение тока, тип.

тип. от 9 до 11 A

Защита от короткого замыкания

по выбору автоматический повторный пуск или сохранение отключенного состояния

Длительный ток короткого замыкания, эффективное значение

< 21 A

Индикация перегрузки или короткого замыкания

красный светодиод для отключения при перегреве

Безопасность

 

Потенциальная развязка первичная/вторичная

да, SELV-выходное напряжение Ua по EN 60 950

Класс защиты (IEC 536; VDE 0106 T1)

Класс I

Ток утечки

< 3,5 мА (тип. 0,9 мА)

Испытание конструкции Союзом технического надзора

да

Маркировка CE

да

Сертификат соответствия UL/cUL (CSA)

да, внесен в реестр UL/cUL (UL 508, CSA 22.2)

Сертификат соответствия FM

-

Апробация для судостроения

-

Род защиты (EN 60 529; VDE 0470 T1)

IP 65

Электромагнитная совместимость

 

Излучение помех (эмиссия)

EN 50 081-1, EN 55 011 Класс A

Ограничение сетевых гармоник

-

Помехоустойчивость (иммунитет)

EN 50 082-2, IEC 801-2, -3, -4, -5

Эксплуатационные данные

 

Диапазон температур окружающей среды

от -25 до +55 °C (уменьшение мощности с +40 °C)

Диапазон температур транспортировки и хранения

от -40 до +70 °C

Класс влажности

Климатический класс 3K3 по EN 60 721

Механика

 

Подсоединения

 

- сетевой вход L, N, PE

Винтовые клеммы от 0,5 до 2,5 мм2 (винтовое соединение PG11), однопроводное/тонкопроволочное

- выход L+

Винтовые клеммы или присоединение через интерфейс расширения к задней шине ET200X

- выход M

Винтовые клеммы или присоединение через интерфейс расширения к задней шине ET200X

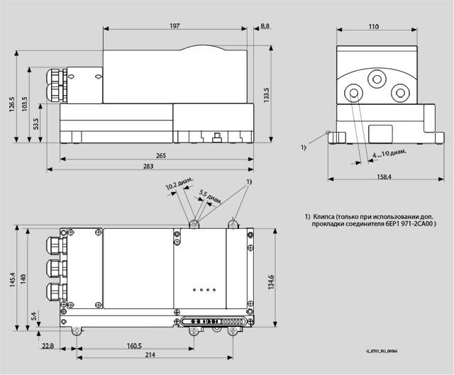
Размеры (Ш x В x Г) в мм

140 x 270 x 126

Вес, около

1,7 кг

Монтаж

настенный, любое монтажное положение

Принадлежности

Уплотнительная прокладка штекера IP65, см. принадлежности


 

Чертеж

Номер заказа:

6EP1334-2CA00

Заказные данные

Заказной №ОписаниеВес (кг)ДоставкаМин. зак. (шт)
6EP1334-2CA00SITOP POWER 10, СТАБИЛИЗИР. БЛОК ПИТАНИЯ ДЛЯ ET 200X: СТЕПЕНЬ ЗАЩИТЫ IP65; ГАЛЬВАН. РАЗД. ВХОДНЫХ И ВЫХОДНЫХ ЦЕПЕЙ; 1-ФАЗН. ВХОДН. НАПР. ~93 … 137/ 187 … 264 В, 47 … 63 ГЦ; ВЫХОД =24 В/ 10 А; ЗАЩИТА НАГРУЗКИ ОТ ПЕРЕНАПРЯЖ. И КЗ; РЕГ. УРОВЕНЬ ВЫХОД. НАПРЯЖ1.73 - 5 недель (A)1

Аксессуары

Заказной №ОписаниеВес (кг)ДоставкаМин. зак. (шт)
6EP1971-2CA00SITOP POWER ACCESSORIES CONNECTOR SEAL IP65, FOR POWER SUPPLY 6EP1334-2CA000.043 - 5 недель (A)1