0

Разделы

SITRANS WW100

 SITRANS WW100 – весовой дозатор высокой точности, малой производительности для взвешивания компонентов.

 


Особенности

SITRANS WW100
  • Высокая точность при дозировании легких продуктов
  • Номинальный режим от 10 до 100% в зависимости от нагрузки
  • Стандартное и санитарное исполнения
  • Оригинальный механизм натяжения ленты
  • Легкое снятие ленты для замены или очистки
  • Быстрая установка, легкая очистка и обслуживание

 

 


Область применения

SITRANS WW100

SITRANS WW100 подходит почти для всех отраслей и является условно необслуживаемым.

Простая и прочная конструкция уменьшает области налипания продукта и увеличивает прочность и жесткость конвейера.

Система динамического взвешивания дозатора контролирует расход сыпучего материала в или из процесса. Электродвигатель с частотно-регулирующим скорость приводом и редуктор позволяют задавать требуемый расход материала под управлением интеграторов Сименс таких, как Milltronics BW500, SIWAREX FTC или SIMATIC S7 / SIMATIC PCS 7. Такое управление позволяет дозатору обеспечить высокую точность взвешивания, улучшить качество смешивания, вести учет материала и архивирование.

 


Технические данные

SITRANS WW100

 

Сфера применения

 

Принцип измерения

Весоизмерительные ячейки и цифровой датчик скорости

Типичные применения

Управление и монитор подачи, смешивания зерна, семечек,гашеной извести или минералов

Эксплуатационные характеристики

 

Точность1)

± 0.25 to 0.5%

 

  • 10:1 с перестройкой по нагрузке
  • 30:1 с перестройкой по скорости

Диапазон расхода

от 45 кг/ч до 18 т/ч (от 100 lbs/ч дo 20 STPH)

Характеристики процесса

 

Температура воздуха

 

Максимальная температура продукта

-10 ...  +40 °C

 

-10 … +77 °C

Конструктивные характеристики

 

Конструкция

Нелигированная или нержавеющая сталь

Весоизмерительные ячейки

  • Одна ячейка, никелированная платформа (стандарт)
  • 17-4 PH (1.4568) конструкция из нерж. ст. для оррозионных сред и для мойки водой (опция)
  • Нелинейность

± 0.03 %

  • Повторяемость

± 0.02 %

Датчик скорости

Цифровой оптический энкодер, смонтированный на ведущембарабане

Корпус и шасси

Консольный модульный корпус для быстрой и легкой замены ленты, точно изготовленный из нерж. или углеродистой стали

Барабаны

Диаметром 152 мм, с покрытием из 6 мм слоя резины длямаксимального тягового усилия

Скорость ленты

0.005 до 0.36 м/с

Поддержка ленты

Основа скольжения из нержавеющей стали

Транспортерная лента

Каркас из полиэстера с полиуретановым верхом, для максимально стабильного взвешивания, 62 PIW, антистатик (стандарт)

Натяжение ленты

Нержавеющий регулятор натяжения с противовесом дляпостоянного натяжения ленты и высокой точности змерений

Очистка ленты

  • Скребок типа UHMW с противовесом на переднем барабане для очистки слоя ленты со стороны продукта
  • Опционально нейлоновая щетка для очистки ленты

Электродвигатель

0.24 кВт (0.32 л.с.) электродвигатель с редуктором, крутящий момент 45.6 Нм , сервис-фактор 2.1 минимум

Общая масса

Открытый корпус: 91 кг

Закрытый корпус: 181 кг

Сертификация

Соответствует нормам CE, C-TICK, USDA и FDA для ищевыхпримененийДля использования в опасных зонах уточняйте у производителя

1) Точность рассматривается применительно к: применениям, одобренным производителем, общий вес, вычисленный системой динамического взвешивания весового дозатора, должен с задекларированной точностью соответствовать весу тестового образца. Расход при тесте должен быть в границах, предусмотренных конструкцией и оставаться постоянным на протяжении всего теста. Минимальная тестовая порция должна быть равна порции, полученной на тестовом расходе для трех оборотов ленты или как минимум за 10 минут работы, в зависимости, что больше.

 


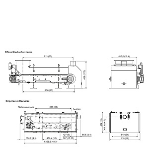
Чертеж

SITRANS WW100

 Размеры SITRANS WW100

Размеры SITRANS WW100

 


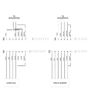
Схема подключения

SITRANS WW100

SITRANS WW100 connections

 


Заказные данные

Цена на сайте указана розничная в ЕВРО без учета НДС.Для уточнения цены и размера предоставляемой скидки - звоните или присылайте заявки

Заказной номерPGОписание продуктаЦена
7MH7180-.....-....8ZMSITRANS WW100 WEIGHFEEDER HIGH ACCURACY SOLIDS WEIGHFEEDER FOR LOW CAPACITY APPLICATIONS. COMPACT UNIT IMPROVES PROCESSING, INCREASES EFFICIENCY AND PROVIDES SIGNIFICANT COST SAVINGS. 13475.78