0

Разделы

Шарнирное соединение для комбинированного монтажного блока - Серия RN

Шарнирное соединение для комбинированного монтажного блока - Серия RN

Соединение можно использовать в качестве дополнения к комбинированному монтажному блоку в весоизмерительных ячейках серии RN. Оно используется в том случае, если в ходе взвешивания возникают нежелательные горизонтальные силы, например, в резервуарных весах в процессе смешивания, или в конвейерных весах из-за ускорения взвешиваемого груза.

Дизайн

Соединение состоит из двух шариковых шарниров, переходника и двух фланцев для установки на комбинированном монтажном блоке.

Соединение может быть также установлено в дополнение к комбинированному монтажному элементу, если в процессе эксплуатации весов возникают неожиданные поперечные усилия, а комбинированный монтажный блок установлен согласно требованиям (см. "Соединения").

Соединение служит для отвода горизонтальных сил до 1,7 кН в фундамент и минимизации воздействия на весоизмерительную ячейку и монтажные компоненты.

Весоизмерительная ячейка комбинированный монтажный блок не входят в комплект поставки соединения.

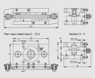
Чертеж

Номинальная нагрузка

A

B

C

ØD

H

J

K

L

M

0,5 т, 1 т

100

145

75

11

12,5

15

25

79

140

2 т, 3,5 т, 5 т

100

190

75

11

57,5

15

25

79

140

10 т, 13 т

120

210

90

14

60

20

40

121,2

160


SIWAREX R Соединение для комбинированного монтажного блока для весоизмерительных ячеек серии RN, размеры

Заказные данные

Заказной №ОписаниеВес (кг)ДоставкаМин. зак. (шт)
7MH4132-4AQ12SIWAREX R ДОБАВОЧНЫЙ БОКОВОЙ СТЕРЖЕНЬ К КОМБИНИРОВАННОМУ УСТАНОВОЧНОМУ МОДУЛЮ ДЛЯ НАГРУЗОЧНЫХ ЯЧЕЕК СЕРИИ RC РАСЧЕТНАЯ НАГРУЗКА 0.5 T/1 T СДЕЛАНО ИЗ НЕРЖАВЕЮЩЕЙ СТАЛИ1.85по запросу (D)1
7MH4132-4KQ12SIWAREX R ДОБАВОЧНЫЙ БОКОВОЙ СТЕРЖЕНЬ К КОМБИНИРОВАННОМУ УСТАНОВОЧНОМУ МОДУЛЮ ДЛЯ НАГРУЗОЧНЫХ ЯЧЕЕК СЕРИИ RC РАСЧЕТНАЯ НАГРУЗКА 2 T/5 T СДЕЛАНО ИЗ НЕРЖАВЕЮЩЕЙ СТАЛИ1.654по запросу (D)1
7MH4134-5BQ12SIWAREX R ДОБАВОЧНЫЙ БОКОВОЙ СТЕРЖЕНЬ К КОМБИНИРОВАННОМУ УСТАНОВОЧНОМУ МОДУЛЮ ДЛЯ НАГРУЗОЧНЫХ ЯЧЕЕК СЕРИИ RH РАСЧЕТНАЯ НАГРУЗКА 13 T СДЕЛАНО ИЗ НЕРЖАВЕЮЩЕЙ СТАЛИ2.258по запросу (D)1