Самоцентрирующиеся подвижные опоры для весоизмерительных ячеек серии К лучше всего подходит для работы с резервуарными и бункерными весами.
Качающаяся опора состоит из двух плит, работающих на сжатие.
В комбинации с измерительной ячейкой плиты образуют самоцентрирующийся узел. Это позволяет головной плите и, соответственно, несущей конструкции следовать горизонтальным отклонениям (например, при колебаниях температуры). Конструкция качающейся опоры создает противодействующую силу, которая зависит от величины отклонения и приложенной нагрузки.
Если несущая конструкция отклоняется по горизонтали более, чем на значение s (см. таблицу габаритных чертежей), необходимо ограничить боковой ход несущей конструкции (например, с помощью упоров). Необходимо принять меры против подъема несущей конструкции, изменив ее соответствующим образом.
Весоизмерительная ячейка не входит в объем поставки опоры.
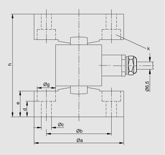
| Номинальная нагрузка | Øa | Øb ±0,1 | Øc | d | e | Øg | h | k | s |
|---|---|---|---|---|---|---|---|---|---|
| 2,8 т, 6 т | 87 | 63 | 11 | 14 | 25 | 18 | 100 +0,5/-1 | два отверстия 180° | 2 |
| 13 т | 97 | 73 | 11 | 21 | 32 | 18 | 120 +0,5/-1 | 2,5 | |
| 28 т | 108 | 84 | 11 | - | 28 | - | 136 +0,5/-1 | 2,5 | |
| 60 т | 137 | 112 | 11 | - | 42 | - | 174 +0,5/-1 | четыре отверстия 90° | 3 |
| 130 т | 176 | 148 | 11 | - | 52 | - | 220 +0,5/-1 | 4 | |
| 280 т | 226 | 190 | 14 | - | 65 | - | 300 +0,6/-1,2 | 6 |
Качающаяся опора для весоизмерительных ячеек SIWAREX R серии К, размеры
Цена на сайте указана розничная в ЕВРО без учета НДС.Для уточнения цены и размера предоставляемой скидки - звоните или присылайте заявки
| Заказной номер | PG | Описание продукта | Цена |
| 7MH3115-1BA1 | 817 | ПРИЖИМНАЯ ПЛАСТИНА, ВЕРХНЯЯ/НИЖНЯЯ ДЛЯ НАГРУЗОЧНЫХ ЯЧЕЕК СЕРИИ K (ТРЕБУЮТСЯ ДВЕ) РАСЧЕТНАЯ НАГРУЗКА 13 T | 219.42 |
| 7MH3115-1CA1 | 817 | ПРИЖИМНАЯ ПЛАСТИНА, ВЕРХНЯЯ/НИЖНЯЯ ДЛЯ НАГРУЗОЧНЫХ ЯЧЕЕК СЕРИИ K (ТРЕБУЮТСЯ ДВЕ) РАСЧЕТНАЯ НАГРУЗКА 130 T | 480.18 |
| 7MH3115-2BA1 | 817 | ПРИЖИМНАЯ ПЛАСТИНА, ВЕРХНЯЯ/НИЖНЯЯ ДЛЯ НАГРУЗОЧНЫХ ЯЧЕЕК СЕРИИ K (ТРЕБУЮТСЯ ДВЕ) РАСЧЕТНАЯ НАГРУЗКА 28 T | 256.52 |
| 7MH3115-2CA1 | 817 | ПРИЖИМНАЯ ПЛАСТИНА, ВЕРХНЯЯ/НИЖНЯЯ ДЛЯ НАГРУЗОЧНЫХ ЯЧЕЕК СЕРИИ K (ТРЕБУЮТСЯ ДВЕ) РАСЧЕТНАЯ НАГРУЗКА 280 T | 940.22 |
| 7MH3115-3AA1 | 817 | ПРИЖИМНАЯ ПЛАСТИНА, ВЕРХНЯЯ/НИЖНЯЯ ДЛЯ НАГРУЗОЧНЫХ ЯЧЕЕК СЕРИИ K (ТРЕБУЮТСЯ ДВЕ) РАСЧЕТНАЯ НАГРУЗКА 1.3 TO 6 T | 193.98 |
| 7MH3115-3BA1 | 817 | ПРИЖИМНАЯ ПЛАСТИНА, ВЕРХНЯЯ/НИЖНЯЯ ДЛЯ НАГРУЗОЧНЫХ ЯЧЕЕК СЕРИИ K (ТРЕБУЮТСЯ ДВЕ) РАСЧЕТНАЯ НАГРУЗКА 60 T | 374.18 |