0

Разделы

Реле времени шириной 22,5 мм - Электронное реле времени

Реле времени шириной 22,5 мм - Электронное реле времени

Нормативная база

Реле времени соответствуют следующим стандартам:

  • EN 60721-3-3 „Условия окружающей среды“
  • EN 61812-1/DIN VDE 0435 Teil 2021 „Электрические реле, реле времени“
  • EN 61000-6-2 und EN 61000-6-4 „Электромагнитная совместимость“
  • EN 60947-5-1; (VDE 0660 Teil 200) „Низковольтные коммутационные аппараты“

 

Реле времени 3RP15, 22.5 мм

Принадлежности

Вставная плавка для винтового крепления

Пломбируемая защитная крышка

Область применения

Реле времени могут применяться для всех процессов коммутации с задержкой по времени в схемах управления, пуска, защиты и регулирования. Они гарантируют высокую функциональность и большую точность репродуцирования заданного времени прохождения процессов. 

Варианты корпусов

Все реле времени пригодны для защелкивания на монтажной рейке 35 мм согласно DIN EN 50022 или для крепления на винтах.

Функции

  • Изменение диапазона времени и функции возможно только в обесточенном состоянии. 
  • Входы пуска В1 или В3 управляются только при наличии напряжения питания
  • Одинаковые потенциалы на А1 и В1 или А3 и В3. При исполнении для двух напряжений подключается только один из диапазонов напряжений.
  • Управление нагрузками, параллельными пусковому входу, при управляющем напряжении переменного тока недопустимо (см. схемы).
  • Ограничение перенапряжения встроено в реле времени. Благодаря этому предотвращается возникновение скачков напряжения питания при включении-отключении реле. На стороне контактов меры по демпфированию не предусмотрены.
  • Для 3RP15 05-R необходимо избегать эксплуатации вблизи источников тепла >60 °С.

 

Параллельная нагрузка на пусковом входе

 

Технические данные

Дополнительную информацию Вы можете получить, нажав кнопку с этим символом.

Технические данные [PDF]

Загрузить PDF-файл.

Для просмотра информации в формате PDF необходимо установить Adobe Acrobat Reader.
Adobe Acrobat Reader

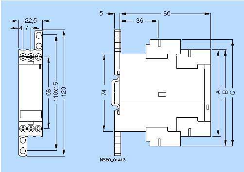
Чертеж

3RP15

 

 

A

B

C

3RP15 1
3RP15 25-.A
3RP15 27
3RP15 10-A
3RP15 55
3RP15 7

 

3RP15 05
3RP15 25-.B
3RP15 3
3RP15 40-.B
3RP15 60

Съемный блок зажимов

С пружинными зажимами

84

94

103

С винтовыми зажимами

83

92

102


 

Схема подключения [PDF]

Загрузить PDF-файл.

Для просмотра информации в формате PDF необходимо установить Adobe Acrobat Reader.
Adobe Acrobat Reader

Схема подключения

Дополнительную информацию Вы можете получить, нажав кнопку с этим символом.

Заказные данные

Заказной №ОписаниеВес (кг)ДоставкаМин. зак. (шт)
3RP1505-1AA40ОТДЕЛЬНОСТОЯЩЕЕ РЕЛЕ ВРЕМЕНИ МНОГОФУНКЦИОНАЛЬНОЕ, 1 П. КОНТ. СО СВЕТОДИОДОМ, 0.05S..100H, 12V DC АНАЛОГОВОЕ НАСТРАИВАЕМОЕ ВИНТОВЫЕ ЗАЖИМЫ,0.1253 - 5 недель (A)1
3RP1505-1AP30РЕЛЕ ВРЕМЕНИ, МНОГОФУНКЦИОНАЛЬНОЕ 15 УСТАНОВОК ВРЕМЕНИ ДИАПАЗОНОВ AC/DC 24 V И AC 200. 240 V 0.7..1.25 US0.1413 - 5 недель (P)1
3RP1505-1AQ30РЕЛЕ ВРЕМЕНИ, МНОГОФУНКЦИОНАЛЬНОЕ 15 УСТАНОВОК ВРЕМЕНИ ДИАПАЗОНОВ AC 24 V И DC 100. 127 V 0.7..1.25 US0.143 - 5 недель (P)1
3RP1505-1AW30РЕЛЕ ВРЕМЕНИ, МНОГОФУНКЦИОНАЛЬНОЕ 15 УСТАНОВОК ВРЕМЕНИ ДИАПАЗОНОВ AC/DC 24..240 V 0.7..1.25 US, 1П0.1363 - 5 недель (P)1
3RP1505-1BP30РЕЛЕ ВРЕМЕНИ, МНОГОФУНКЦИОНАЛЬНОЕ 15 УСТАНОВОК ВРЕМЕНИ ДИАПАЗОНОВ AC 24 V И DC 200. 240 V 0.7..1.25 US, 2П0.1613 - 5 недель (P)1
3RP1505-1BQ30РЕЛЕ ВРЕМЕНИ, МНОГОФУНКЦИОНАЛЬНОЕ 15 УСТАНОВОК ВРЕМЕНИ ДИАПАЗОНОВ AC 24 V И DC 100. 127 V 0.7..1.25 US, 2П0.1623 - 5 недель (P)1
3RP1505-1BT20МНОГОФУНКЦИОНАЛЬНОЕ РЕЛЕ ВРЕМЕНИ 2 ПЕРЕКИДНЫХ КОНТАКТА, 16 ФУНКЦИЙ, AC 400..440V,0.1693 - 5 недель (A)1
3RP1505-1BW30РЕЛЕ ВРЕМЕНИ, МНОГОФУНКЦИОНАЛЬНОЕ 15 УСТАНОВОК ВРЕМЕНИ ДИАПАЗОНОВ AC/DC 24..240 V 0.7..1.25 US, 2П0.1683 - 5 недель (P)1
3RP1505-1RW30МНОГОФУНКЦИОНАЛЬНОЕ РЕЛЕ ВРЕМЕНИ 15 TIME ДИАПАЗОНОВ ВИНТОВЫЕ ЗАЖИМЫ, 2 ПЕРЕКИДНЫХ КОНТ., 8 ФУНКЦИЙ АНОДИРОВАННЫЕ ЗОЛОЧЕНЫЕ КОНТАКТЫ, AC/DC 24V.240V0.1693 - 5 недель (P)1
3RP1505-2AP30МНОГОФУНКЦИОНАЛЬНОЕ РЕЛЕ ВРЕМЕНИ ЗАЖИМНЫЕ КОНТАКТЫ . 1 ПЕРЕКИДНОЙ КОНТ., 8 ФУНКЦИЙ AC/DC 24V/AC 200..240V0.1263 - 5 недель (A)1
3RP1505-2AQ30МНОГОФУНКЦИОНАЛЬНОЕ РЕЛЕ ВРЕМЕНИ ЗАЖИМНЫЕ КОНТАКТЫ . 1 ПЕРЕКИДНОЙ КОНТ., 8 ФУНКЦИЙ, AC/DC 24V/AC 100..127V0.1256 - 8 недель (C)1
3RP1505-2AW30МНОГОФУНКЦИОНАЛЬНОЕ РЕЛЕ ВРЕМЕНИ ЗАЖИМНЫЕ КОНТАКТЫ . 1 ПЕРЕКИДНОЙ КОНТ., 8 ФУНКЦИЙ AC/DC 24V.240V0.1323 - 5 недель (A)1
3RP1505-2BP30МНОГОФУНКЦИОНАЛЬНОЕ РЕЛЕ ВРЕМЕНИ ЗАЖИМНЫЕ КОНТАКТЫ . 2 ПЕРЕКИДНЫХ КОНТ., 16 ФУНКЦИЙ, AC/DC 24V/AC 200..240V0.1373 - 5 недель (A)1
3RP1505-2BQ30МНОГОФУНКЦИОНАЛЬНОЕ РЕЛЕ ВРЕМЕНИ ЗАЖИМНЫЕ КОНТАКТЫ . 2 ПЕРЕКИДНЫХ КОНТ., 16 ФУНКЦИЙ, AC/DC 24V/AC 100..127V0.1423 - 5 недель (A)1
3RP1505-2BW30МНОГОФУНКЦИОНАЛЬНОЕ РЕЛЕ ВРЕМЕНИ ЗАЖИМНЫЕ КОНТАКТЫ . 2 ПЕРЕКИДНЫХ КОНТ., 16 ФУНКЦИЙ AC/DC 24V.240V0.1433 - 5 недель (A)1
3RP1505-2RW30МНОГОФУНКЦИОНАЛЬНОЕ РЕЛЕ ВРЕМЕНИ ЗАЖИМНЫЕ КОНТАКТЫ . 2 ПЕРЕКИДНЫХ КОНТ., 8 ФУНКЦИЙ, POSITIVELY DRIVEN, AC/DC 24V/AC 100..127V0.1433 - 5 недель (A)1
3RP1511-1AP30РЕЛЕ ВРЕМЕНИ, ЗАДЕРЖКА ВКЛЮЧЕНИЯ, 1 ПЕРЕКИДНОЙ КОНТАКТ, ДИАПАЗОН 0.5 S..10 S, AC 24, 200..240 V И DC 24 V, 0.7..1.25 US0.1083 - 5 недель (P)1
3RP1511-1AQ30РЕЛЕ ВРЕМЕНИ, ЗАДЕРЖКА ВКЛЮЧЕНИЯ, 1 ПЕРЕКИДНОЙ КОНТАКТ, ДИАПАЗОН 0.5 S..10 S, AC 24, 100..127 V И DC 24 V, 0.7..1.25 US0.1083 - 5 недель (P)1
3RP1511-2AP30МНОГОФУНКЦИОНАЛЬНОЕ РЕЛЕ ВРЕМЕНИ ЗАЖИМНЫЕ КОНТАКТЫ . 1 ПЕРЕКИДНОЙ КОНТ., ЗАДЕРЖКА ВКЛЮЧЕНИЯ, AC/DC 24V/AC 200..240V0.0923 - 5 недель (A)1
3RP1511-2AQ30МНОГОФУНКЦИОНАЛЬНОЕ РЕЛЕ ВРЕМЕНИ ЗАЖИМНЫЕ КОНТАКТЫ . 1 ПЕРЕКИДНОЙ КОНТ., ЗАДЕРЖКА ВКЛЮЧЕНИЯ, AC/DC 24V/AC 100..127V0.0926 - 8 недель (C)1
3RP1512-1AP30РЕЛЕ ВРЕМЕНИ, ЗАДЕРЖКА ВКЛЮЧЕНИЯ, 1 ПЕРЕКИДНОЙ КОНТАКТ, ДИАПАЗОН 1.5 S..30 S, AC 24, 200..240 V И DC 24 V, 0.7..1.25 US0.1043 - 5 недель (P)1
3RP1512-1AQ30РЕЛЕ ВРЕМЕНИ, ЗАДЕРЖКА ВКЛЮЧЕНИЯ, 1 ПЕРЕКИДНОЙ КОНТАКТ, ДИАПАЗОН 1.5 S..30 S, AC 24, 100..127 V И DC 24 V, 0.7..1.25 US0.1073 - 5 недель (P)1
3RP1512-2AP30МНОГОФУНКЦИОНАЛЬНОЕ РЕЛЕ ВРЕМЕНИ ЗАЖИМНЫЕ КОНТАКТЫ . 1 ПЕРЕКИДНОЙ КОНТ., ЗАДЕРЖКА ВКЛЮЧЕНИЯ, AC/DC 24V/AC 200..240V0.0973 - 5 недель (A)1
3RP1512-2AQ30МНОГОФУНКЦИОНАЛЬНОЕ РЕЛЕ ВРЕМЕНИ ЗАЖИМНЫЕ КОНТАКТЫ . 1 ПЕРЕКИДНОЙ КОНТ., ЗАДЕРЖКА ВКЛЮЧЕНИЯ, AC/DC 24V/AC 100..127V0.0926 - 8 недель (C)1
3RP1513-1AP30РЕЛЕ ВРЕМЕНИ, ЗАДЕРЖКА ВКЛЮЧЕНИЯ, 1 ПЕРЕКИДНОЙ КОНТАКТ, ДИАПАЗОН 5 S..100 S, AC 24, 200..240 V И DC 24 V, 0.7..1.25 US0.1083 - 5 недель (P)1
3RP1513-1AQ30РЕЛЕ ВРЕМЕНИ, ЗАДЕРЖКА ВКЛЮЧЕНИЯ, 1 ПЕРЕКИДНОЙ КОНТАКТ, ДИАПАЗОН 5 S..100 S, AC 24, 100..127 V И DC 24 V, 0.7..1.25 US0.1073 - 5 недель (P)1
3RP1513-2AP30МНОГОФУНКЦИОНАЛЬНОЕ РЕЛЕ ВРЕМЕНИ ЗАЖИМНЫЕ КОНТАКТЫ . 1 ПЕРЕКИДНОЙ КОНТ., ЗАДЕРЖКА ВКЛЮЧЕНИЯ, AC/DC 24V/AC 200..240V0.0946 - 8 недель (C)1
3RP1513-2AQ30МНОГОФУНКЦИОНАЛЬНОЕ РЕЛЕ ВРЕМЕНИ ЗАЖИМНЫЕ КОНТАКТЫ . 1 ПЕРЕКИДНОЙ КОНТ., ЗАДЕРЖКА ВКЛЮЧЕНИЯ, AC/DC 24V/AC 100..127V0.0946 - 8 недель (C)1
3RP1525-1AP30РЕЛЕ ВРЕМЕНИ, ЗАДЕРЖКА ВКЛЮЧЕНИЯ, 1 ПЕРЕКИДНОЙ КОНТАКТ, 15 ДИАПАЗОНОВ (1, 3, 10, 30, 100) (СЕК, МИН, ЧАС) AC 24, 200..240 V И DC 24 V, 0.7..1.25 US0.1043 - 5 недель (P)1
3RP1525-1AQ30РЕЛЕ ВРЕМЕНИ, ЗАДЕРЖКА ВКЛЮЧЕНИЯ, 1 ПЕРЕКИДНОЙ КОНТАКТ, 15 ДИАПАЗОНОВ (1, 3, 10, 30, 100) (СЕК, МИН, ЧАС) AC 24, 100..127 V И DC 24 V, 0.7..1.25 US0.1093 - 5 недель (P)1
3RP1525-1BP30РЕЛЕ ВРЕМЕНИ, ЗАДЕРЖКА ВКЛЮЧЕНИЯ, 2П, 15 ДИАПАЗОНОВ (1, 3, 10, 30, 100) (СЕК, МИН, ЧАС) AC 24, 200..240 V И DC 24 V, 0.7..1.25 US0.1553 - 5 недель (P)1
3RP1525-1BQ30РЕЛЕ ВРЕМЕНИ, ЗАДЕРЖКА ВКЛЮЧЕНИЯ, 2П, 15 ДИАПАЗОНОВ (1, 3, 10, 30, 100) (СЕК, МИН, ЧАС) AC 24, 100..127 V И DC 24 V, 0.7..1.25 US0.1523 - 5 недель (P)1
3RP1525-1BR30РЕЛЕ ВРЕМЕНИ, ЗАДЕРЖКА ВКЛЮЧЕНИЯ, 2П, 15 ДИАПАЗОНОВ (1, 3, 10, 30, 100) (СЕК, МИН, ЧАС) AC/DC 42.. 48 V, AC/DC 60 V 0.7..1.25 US0.1523 - 5 недель (A)1
3RP1525-1BW30РЕЛЕ ВРЕМЕНИ, ЗАДЕРЖКА ВКЛЮЧЕНИЯ 2П, 15 УСТАНОВОК ВРЕМЕНИ ДИАПАЗОНОВ, 0.05 S..100 H, AC/DC 24. .240 V0.1593 - 5 недель (P)1
3RP1525-2AP30МНОГОФУНКЦИОНАЛЬНОЕ РЕЛЕ ВРЕМЕНИ ЗАЖИМНЫЕ КОНТАКТЫ . 1 ПЕРЕКИДНОЙ КОНТ. ЗАДЕРЖКА ВКЛЮЧЕНИЯ, 0.5S .100H AC/DC 24V/AC 200..240V0.0933 - 5 недель (A)1
3RP1525-2AQ30МНОГОФУНКЦИОНАЛЬНОЕ РЕЛЕ ВРЕМЕНИ ЗАЖИМНЫЕ КОНТАКТЫ . 1 ПЕРЕКИДНОЙ КОНТ. ЗАДЕРЖКА ВКЛЮЧЕНИЯ, AC/DC 24V/AC 100..127V0.0956 - 8 недель (C)1
3RP1525-2BP30МНОГОФУНКЦИОНАЛЬНОЕ РЕЛЕ ВРЕМЕНИ ЗАЖИМНЫЕ КОНТАКТЫ . 2 ПЕРЕКИДНЫХ КОНТ. ЗАДЕРЖКА ВКЛЮЧЕНИЯ, 0.5S..100H AC/DC 24V/AC 200..240V0.1273 - 5 недель (A)1
3RP1525-2BQ30МНОГОФУНКЦИОНАЛЬНОЕ РЕЛЕ ВРЕМЕНИ ЗАЖИМНЫЕ КОНТАКТЫ. 2 ПЕРЕКИДНЫХ КОНТ. ЗАДЕРЖКА ВКЛЮЧЕНИЯ, 0.5S..100H AC/DC 24V/AC 100..127V0.1286 - 8 недель (C)1
3RP1525-2BW30МНОГОФУНКЦИОНАЛЬНОЕ РЕЛЕ ВРЕМЕНИ ЗАЖИМНЫЕ КОНТАКТЫ. 2 ПЕРЕКИДНЫХ КОНТ. ЗАДЕРЖКА ВКЛЮЧЕНИЯ, 0.5S..100H AC/DC 24..240V0.1343 - 5 недель (A)1
3RP1527-1EC30РЕЛЕ ВРЕМЕНИ, ЗАДЕРЖКА ВКЛЮЧЕНИЯ, 1 ПОЛУПРОВОДНИК, 4 ДИАПАЗОНОВ (0.05-240 CЕК), AC/DC 24..66 V, 2-Х ПРОВОДНОЕ ИСПОЛНЕНИЕ0.0993 - 5 недель (A)1
3RP1527-1EM30РЕЛЕ ВРЕМЕНИ, ЗАДЕРЖКА ВКЛЮЧЕНИЯ, 1 ПОЛУПРОВОДНИК, 4 ДИАПАЗОНОВ (0.05-240 CЕК), AC/DC 90..240 V, 2-Х ПРОВОДНОЕ ИСПОЛНЕНИЕ0.13 - 5 недель (P)1
3RP1527-2EC30МНОГОФУНКЦИОНАЛЬНОЕ РЕЛЕ ВРЕМЕНИ ЗАЖИМНЫЕ КОНТАКТЫ . 2 НОРМ.ОТКР. КОНТАКТА ЗАДЕРЖКА ВКЛЮЧЕНИЯ 0.05S.240V AC/DC 24..66V0.096 - 8 недель (C)1
3RP1527-2EM30МНОГОФУНКЦИОНАЛЬНОЕ РЕЛЕ ВРЕМЕНИ ЗАЖИМНЫЕ КОНТАКТЫ . 2 НОРМ.ОТКР. КОНТАКТА ЗАДЕРЖКА ВКЛЮЧЕНИЯ 0.05S.240S AC/DC 90..240V0.096 - 8 недель (C)1
3RP1531-1AP30РЕЛЕ ВРЕМЕНИ, ЗАДЕРЖКА ВЫКЛЮЧЕНИЯ С ДОП. НАПРЯЖЕНИЕМ, 1 ПЕРЕКИДНОЙ КОНТАКТ, 0.5 S.10 AC 24, 200..240 V И DC 24 V, 0.7..1.25 US0.143 - 5 недель (P)1
3RP1531-1AQ30РЕЛЕ ВРЕМЕНИ, ЗАДЕРЖКА ВЫКЛЮЧЕНИЯ С ДОП. НАПРЯЖЕНИЕМ, 1 ПЕРЕКИДНОЙ КОНТАКТ, ДИАПАЗОН 0.5 S..10 S, AC 24, 100..127 V И DC 24 V, 0.7..1.25 US0.143 - 5 недель (A)1
3RP1531-2AP30МНОГОФУНКЦИОНАЛЬНОЕ РЕЛЕ ВРЕМЕНИ ЗАЖИМНЫЕ КОНТАКТЫ . 1 ПЕРЕКИДНОЙ КОНТ. ЗАДЕРЖКА ВЫКЛЮЧЕНИЯ 0.5 S..10 S AC/DC 24V/AC 100..127V0.1223 - 5 недель (A)1
3RP1531-2AQ30МНОГОФУНКЦИОНАЛЬНОЕ РЕЛЕ ВРЕМЕНИ ЗАЖИМНЫЕ КОНТАКТЫ . 1 ПЕРЕКИДНОЙ КОНТ. ЗАДЕРЖКА ВЫКЛЮЧЕНИЯ 0.5 S..10 S AC/DC 24V/AC 100..127V0.1246 - 8 недель (C)1
3RP1532-1AP30РЕЛЕ ВРЕМЕНИ, ЗАДЕРЖКА ВЫКЛЮЧЕНИЯ С ДОП. НАПРЯЖЕНИЕМ, 1 ПЕРЕКИДНОЙ КОНТАКТ, ДИАПАЗОН 1.5 S.30 AC 24, 200..240 V И DC 24 V, 0.7..1.25 US0.1393 - 5 недель (P)1
3RP1532-1AQ30РЕЛЕ ВРЕМЕНИ, ЗАДЕРЖКА ВЫКЛЮЧЕНИЯ С ДОП. НАПРЯЖЕНИЕМ, 1 ПЕРЕКИДНОЙ КОНТАКТ, ДИАПАЗОН 1.5 S..30 S, AC 24, 100..127 V И DC 24 V, 0.7..1.25 US0.1383 - 5 недель (A)1
3RP1532-2AP30МНОГОФУНКЦИОНАЛЬНОЕ РЕЛЕ ВРЕМЕНИ ЗАЖИМНЫЕ КОНТАКТЫ . 1 ПЕРЕКИДНОЙ КОНТ. ЗАДЕРЖКА ВЫКЛЮЧЕНИЯ 1.5S..30S AC/DC 24V/AC 200..240V0.1216 - 8 недель (C)1
3RP1532-2AQ30МНОГОФУНКЦИОНАЛЬНОЕ РЕЛЕ ВРЕМЕНИ ЗАЖИМНЫЕ КОНТАКТЫ . 1 ПЕРЕКИДНОЙ КОНТ. ЗАДЕРЖКА ВЫКЛЮЧЕНИЯ 1.5S..30S AC/DC 24V/AC 100..127V0.1256 - 8 недель (C)1
3RP1533-1AP30РЕЛЕ ВРЕМЕНИ, ЗАДЕРЖКА ВЫКЛЮЧЕНИЯ С ДОП. НАПРЯЖЕНИЕМ, 1 ПЕРЕКИДНОЙ КОНТАКТ, ДИАПАЗОН 5 S.100 AC 24, 200..240 V И DC 24 V, 0.7..1.25 US0.143 - 5 недель (P)1
3RP1533-1AQ30РЕЛЕ ВРЕМЕНИ, ЗАДЕРЖКА ВЫКЛЮЧЕНИЯ С ДОП. НАПРЯЖЕНИЕМ, 1 ПЕРЕКИДНОЙ КОНТАКТ, ДИАПАЗОН 5 S..100 S, AC 24, 100..127 V И DC 24 V, 0.7..1.25 US0.1393 - 5 недель (A)1
3RP1533-2AP30МНОГОФУНКЦИОНАЛЬНОЕ РЕЛЕ ВРЕМЕНИ ЗАЖИМНЫЕ КОНТАКТЫ . 1 ПЕРЕКИДНОЙ КОНТ. ЗАДЕРЖКА ВЫКЛЮЧЕНИЯ 5S..100S AC/DC 24V/AC 200..240V0.1256 - 8 недель (C)1
3RP1533-2AQ30МНОГОФУНКЦИОНАЛЬНОЕ РЕЛЕ ВРЕМЕНИ ЗАЖИМНЫЕ КОНТАКТЫ . 1 ПЕРЕКИДНОЙ КОНТ. ЗАДЕРЖКА ВЫКЛЮЧЕНИЯ 5S..100S, AC/DC 24V/AC 100..127V0.1236 - 8 недель (C)1
3RP1540-1AB30РЕЛЕ ВРЕМЕНИ, ЗАДЕРЖКА ВЫКЛЮЧЕНИЯ 1 ПЕРЕКИДНОЙ КОНТАКТ, 7 ДИАПАЗОНОВ 1..100 AC/DC 24 V,0.1163 - 5 недель (P)1
3RP1540-1AJ30РЕЛЕ ВРЕМЕНИ, ЗАДЕРЖКА ВЫКЛЮЧЕНИЯ 1 ПЕРЕКИДНОЙ КОНТАКТ, 7 ДИАПАЗОНОВ 1..100 AC/DC 100..127 V,0.1193 - 5 недель (P)1
3RP1540-1AN30РЕЛЕ ВРЕМЕНИ, ЗАДЕРЖКА ВЫКЛЮЧЕНИЯ 1 ПЕРЕКИДНОЙ КОНТАКТ, 7 ДИАПАЗОНОВ 1..100 AC/DC 200..240 V,0.123 - 5 недель (P)1
3RP1540-1BB30РЕЛЕ ВРЕМЕНИ, ЗАДЕРЖКА ВЫКЛЮЧЕНИЯ 1 ПЕРЕКИДНОЙ КОНТАКТ, 7 ДИАПАЗОНОВ 0, 05..100 AC/DC 24 V,0.1593 - 5 недель (P)1
3RP1540-1BJ30РЕЛЕ ВРЕМЕНИ, ЗАДЕРЖКА ВЫКЛЮЧЕНИЯ 1 ПЕРЕКИДНОЙ КОНТАКТ, 7 ДИАПАЗОНОВ 0, 05..100 AC/DC 100..127 V,0.1613 - 5 недель (A)1
3RP1540-1BN30РЕЛЕ ВРЕМЕНИ, ЗАДЕРЖКА ВЫКЛЮЧЕНИЯ 1 ПЕРЕКИДНОЙ КОНТАКТ, 7 ДИАПАЗОНОВ 0, 05..100 AC/DC 200..240 V,0.1613 - 5 недель (P)1
3RP1540-2AB30МНОГОФУНКЦИОНАЛЬНОЕ РЕЛЕ ВРЕМЕНИ ЗАЖИМНЫЕ КОНТАКТЫ . 1 ПЕРЕКИДНОЙ КОНТ. ЗАДЕРЖКА ВЫКЛЮЧЕНИЯ 0.5S..100S AC/DC 24V0.1053 - 5 недель (A)1
3RP1540-2AJ30МНОГОФУНКЦИОНАЛЬНОЕ РЕЛЕ ВРЕМЕНИ ЗАЖИМНЫЕ КОНТАКТЫ . 1 ПЕРЕКИДНОЙ КОНТ. ЗАДЕРЖКА ВЫКЛЮЧЕНИЯ 0.5S..100S AC/DC 100..127V0.1083 - 5 недель (A)1
3RP1540-2AN30МНОГОФУНКЦИОНАЛЬНОЕ РЕЛЕ ВРЕМЕНИ ЗАЖИМНЫЕ КОНТАКТЫ . 1 ПЕРЕКИДНОЙ КОНТ. ЗАДЕРЖКА ВЫКЛЮЧЕНИЯ 0.5S..100S AC/DC 200..240V0.113 - 5 недель (A)1
3RP1540-2BB30МНОГОФУНКЦИОНАЛЬНОЕ РЕЛЕ ВРЕМЕНИ ЗАЖИМНЫЕ КОНТАКТЫ . 2 ПЕРЕКИДНЫХ КОНТ. ЗАДЕРЖКА ВЫКЛЮЧЕНИЯ 05.S.100S AC/DC 24V0.1363 - 5 недель (A)1
3RP1540-2BJ30МНОГОФУНКЦИОНАЛЬНОЕ РЕЛЕ ВРЕМЕНИ ЗАЖИМНЫЕ КОНТАКТЫ . 2 ПЕРЕКИДНЫХ КОНТ. ЗАДЕРЖКА ВЫКЛЮЧЕНИЯ 0.5S..100S, AC/DC 100..127V0.1366 - 8 недель (C)1
3RP1540-2BN30МНОГОФУНКЦИОНАЛЬНОЕ РЕЛЕ ВРЕМЕНИ ЗАЖИМНЫЕ КОНТАКТЫ . 2 ПЕРЕКИДНЫХ КОНТ. ЗАДЕРЖКА ВЫКЛЮЧЕНИЯ 0.5S..100S, AC/DC 200..240V0.1366 - 8 недель (C)1
3RP1555-1AP30РЕЛЕ ВРЕМЕНИ, ИМПУЛЬСНОЕ РЕЛЕ 15 УСТАНОВОК ВРЕМЕНИ ДИАПАЗОНОВ AC 24 V DC 200. 240 V 0.7..1.25 US0.1113 - 5 недель (P)1
3RP1555-1AQ30РЕЛЕ ВРЕМЕНИ, ИМПУЛЬСНОЕ РЕЛЕ 15 УСТАНОВОК ВРЕМЕНИ ДИАПАЗОНОВ AC 24 V DC 100. 127 V 0.7..1.25 US0.1113 - 5 недель (P)1
3RP1555-1AR30РЕЛЕ ВРЕМЕНИ, ИМПУЛЬСНОЕ РЕЛЕ 15 УСТАНОВОК ВРЕМЕНИ ДИАПАЗОНОВ AC 42.. 48 V AC/DC 60 V 0.7..1.25 US0.1113 - 5 недель (A)1
3RP1555-2AP30МНОГОФУНКЦИОНАЛЬНОЕ РЕЛЕ ВРЕМЕНИ ЗАЖИМНЫЕ КОНТАКТЫ . 1 ПЕРЕКИДНОЙ КОНТ. ЧАСЫ, 0.5S..100H, AC/DC 200..240V0.1043 - 5 недель (A)1
3RP1555-2AQ30МНОГОФУНКЦИОНАЛЬНОЕ РЕЛЕ ВРЕМЕНИ ЗАЖИМНЫЕ КОНТАКТЫ . 1 ПЕРЕКИДНОЙ КОНТ. ЧАСЫ, 0.5S..100H, AC/DC 100..127V0.16 - 8 недель (C)1
3RP1560-1SP30ОТДЕЛЬНО СТОЯЩЕЕ РЕЛЕ ВРЕМЕНИ ЗВЕЗДА-ТРЕУГОЛЬНИК, 1.20S, 30.600S, 0.85 ..1.1US, AC/DC 24V, AC 200..240V0.1753 - 5 недель (P)1
3RP1560-1SQ30ОТДЕЛЬНО СТОЯЩЕЕ РЕЛЕ ВРЕМЕНИ ЗВЕЗДА-ТРЕУГОЛЬНИК, 1.20S, 30.600S, 0.85 ..1.1US, AC/DC 24V, AC 100..127V0.1723 - 5 недель (A)1
3RP1560-2SP30ОТДЕЛЬНО СТОЯЩЕЕ РЕЛЕ ВРЕМЕНИ ЗВЕЗДА-ТРЕУГОЛЬНИК, 1.20S, 30.600S, 0.85 ..1.1US, AC/DC 24V, AC 200..240V ПРУЖИННЫЕ ЗАЖИМЫ0.1526 - 8 недель (C)1
3RP1574-1NP30РЕЛЕ ВРЕМЕНИ, ЗВЕЗДА-ТРЕУГОЛЬНИК ОДИН ДИАПАЗОН ВРЕМЕНИ 20 AC 24 V DC 200..240 V 0.7..1.25 US0.1133 - 5 недель (P)1
3RP1574-1NQ30РЕЛЕ ВРЕМЕНИ, ЗВЕЗДА-ТРЕУГОЛЬНИК ОДИН ДИАПАЗОН ВРЕМЕНИ 20 AC/DC 24 V, AC 100..127 V, 1.20 US0.1133 - 5 недель (P)1
3RP1574-2NM20TIME RELAY SOLID-STATE, WITH STAR-DELTA FUNCTION, 1 NO CONTACT DELAYED, 1 NO CONTACT DELAYED 1 TIME DOMAIN 1...20 S 200...240V AC AND 380...440V AC SPRING TERMINAL 0.14 - 6 недель (B)1
3RP1574-2NP30МНОГОФУНКЦИОНАЛЬНОЕ РЕЛЕ ВРЕМЕНИ ЗАЖИМНЫЕ КОНТАКТЫ . 1 НO ОТЛОЖЕННЫЙ КОНТАКТ, 1 НO КОНТАКТ ЗАДЕРЖКА ВКЛЮЧЕНИЯ ED, 1S..20S, AC/DC 24V, AC 200..240V0.1043 - 5 недель (A)1
3RP1576-1NM20TIME RELAY, SOLID-STATE, WITH STAR-DELTA FUNCTION, 1 NO CONTACT DELAYED, 1 NO CONTACT DELAYED 1 TIME DOMAIN 3...60 S 200...240V AC AND 380...440V AC ВИНТ.КОНТАКТЫ0.1134 - 6 недель (B)1
3RP1576-1NP30РЕЛЕ ВРЕМЕНИ, ЗВЕЗДА-ТРЕУГОЛЬНИК ОДИН ДИАПАЗОН ВРЕМЕНИ 60 AC 24 V DC 200..240 V 0.7..1.25 US0.1133 - 5 недель (P)1
3RP1576-1NQ30РЕЛЕ ВРЕМЕНИ, ЗВЕЗДА-ТРЕУГОЛЬНИК ОДИН ДИАПАЗОН ВРЕМЕНИ 60 AC 24 V DC 100..127 V 0.7..1.25 US0.1123 - 5 недель (P)1
3RP1576-2NM20TIME RELAY, SOLID-STATE, WITH STAR-DELTA FUNCTION, 1 NO CONTACT DELAYED, 1 NO CONTACT DELAYED 1 TIME DOMAIN 3...60 S 200...240V AC AND 380...440V AC SPRING TERMINAL 0.14 - 6 недель (B)1
3RP1576-2NP30МНОГОФУНКЦИОНАЛЬНОЕ РЕЛЕ ВРЕМЕНИ ЗАЖИМНЫЕ КОНТАКТЫ . 1 НO ОТЛОЖЕННЫЙ КОНТАКТ, 1 НO КОНТАКТ ЗАДЕРЖКА ВКЛЮЧЕНИЯ ED, 3S.20S, AC/DC 24V, AC 200..240V0.1043 - 5 недель (A)1
3RP1576-2NQ30МНОГОФУНКЦИОНАЛЬНОЕ РЕЛЕ ВРЕМЕНИ ЗАЖИМНЫЕ КОНТАКТЫ . 1 НO ОТЛОЖЕННЫЙ КОНТАКТ, 1 НO КОНТАКТ ЗАДЕРЖКА ВКЛЮЧЕНИЯ ED, 3S..30S, AC/DC 24V, AC 100..127V0.1026 - 8 недель (C)1

Аксессуары

Заказной №ОписаниеВес (кг)ДоставкаМин. зак. (шт)
3RP1901-0AНАБОР МАРКИРОВКИ ДЛЯ . МНОГОФУНКЦИОНАЛЬНОГО УСТРОЙСТВА, 1 ПЕРЕКИДНОЙ КОНТ.КОНТАКТ,0.0033 - 5 недель (P)5
3RP1901-0BНАБОР МАРКИРОВКИ ДЛЯ . МНОГОФУНКЦИОНАЛЬНОГО УСТРОЙСТВА, 2 ПЕРЕКИДНЫХ КОНТ.КОНТАКТ,0.0063 - 5 недель (P)5
3RP1902ПЛОМБИРУЕМАЯ КРЫШКА ДЛЯ УСТРОЙСТВ С 1 ИЛИ 2 ПЕРЕКИДНЫМИ КОНТАКТАМИ0.0043 - 5 недель (P)5
3RP1903АДАПТЕР ДЛЯ ВИНТОВОГО ПОДКЛЮЧЕНИЯ ДЛЯ УСТРОЙСТВ С 1 ИЛИ 2 ПЕРЕКИДНЫМИ КОНТАКТАМИ0.0023 - 5 недель (P)10
3RT1900-1SB20ИДЕНТИФИКАЦИОННАЯ ТАБЛИЧКА 20X7 MM БИРЮЗОВЫЙ ЦВЕТ УПАКОВКА С 17 РАМК. 20 ТАБЛИЧЕК НА РАМКУ = 340 ТАБЛИЧЕК (ПРЕДПОЧТИТЕЛЬНЫЙ ТИП)226 - 8 недель (C)340