0

Разделы

Пример 3 - Конфигурации

Пример 3 - Конфигурации

Дальнейшая информация

Пример 3: взвешивание в процессе смешивания

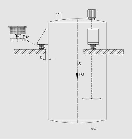
Центр тяжести S висящей емкости находится ниже уровня измерительных ячеек.

Она опирается на 3 лапки, в порожнем состоянии (собственный вес) весит 2,8 т и вмещает максимум 4,5 т.

Для улучшения смешивания отдельных компонентов в емкости установлена мешалка, работающая в процессе взвешивания.

Выбор весоизмерительных ячеек и монтажных компонентов

Предложены 3 весоизмерительных ячейки SIWAREX R серии RN с номинальной нагрузкой 3,5 т, т.к. высокоточные ячейки RN имеют достаточно небольшую высоту (номинальная нагрузка определена по методу, описанному во введении).

Емкость с мешалкой на весоизмерительной ячейке серии RN и эластомерной опоре

В качестве монтажных компонентов используются самоцентрирующиеся эластомерные опоры, чтобы минимизировать вибрацию, исходящую от мешалки.

Эластомерная опора допускает максимальный ход качания ± 4 мм.

Ограничение качания не требуется, т.к. между емкостью и платформой имеется небольшой зазор шириной b = 3 мм.

Если в конкретной ситуации ширина зазора больше, необходимо установить упоры или внешние ограничители качания (см. проект 4).

Конфигурация для взвешивания в процессе смешивания (базовая)

Поз.

Описание

№ для заказа

Критерий выбора

Кол-во в примере

1

SIWAREX R серия RN, номинальная нагрузка 3,5 т, C3, без EEx

7MH5101-4LD00

высококачественная кольцеторсионная весоизмерительная ячейка небольшой высоты, идеальная для взвешивания емкостей

3

2

нижняя часть качающейся опоры для ячеек серии RN 2 т из нержавеющей стали

7MH4132-4AG11

позволяет гасить вибрацию и тем самым минимизировать воздействие на весоизмерительную ячейку

3

3

эластомерная опора для весоизмерительных ячеек серии RN 2 т из неопрена и нержавеющей стали

7MH4130-4KE11

 

3

4

Кабель заземления

7MH3701-1AA1

для отвода нежелательных токов

3