
Магнитно расходомеры подходят для измерения практически любых электропроводящих жидкостей, а такж для измерения взвесей, пульпы, суспензий и магнитопроводящих веществ. Благодаря магнитному переменному полю эти расходомеры подходят для скоростей протока от 0,15 до 12 и мин. проводимости в 0,1 µS. |
Особенности - полностью сварная версия
- футеровка измерительной трубы из эбонита / резины PTFE или Novolak
- различные фланцевые со динения по EN 1092-I, ANSI B16.5
- входной усилитель со встро нным компон нтом данных (smart-PLUG) для вс х значений калибровки и спец . установок пользователя, при необходимости
|
Область примененияОсновными сферами применения магнитно - измерительных датчиков SITRANS F M SITRANS F M 911/E с Transmag 2 являются: - целлюлозо - бумажная промышленность
- промышленность минеральных веществ
- химическая промышленность
|
ДизайнРасходомер в комплект состоит из измерительного датчика и соответствующего измерительного преобразователя SITRANS F M Transmag 2 для пульсирующего переменного поля. Эти расходомеры поставляются в раздельной и компактной версии компактная версия SITRANS F M 911/E с Transmag 2 возможна только с ном. диаметрами от DN 65 до DN 600 (2 1/2" до 24"). Они работают по закону электромагнитной индукции Фарадея, согласно которому в проводник, введенном в магнитно поле, индуциру тся электрическо напряжение. |
Способ действияИнформацию по работе см. технический паспорт для SITRANS F M измерительный преобразователь Transmag 2. |
Технические данные | Режим работы и конструкция | | | Принцип измерения | пульсирующее переменное поле, PAC | | Вход | | Ном. диаметр | DN 15 ... 600 (½" ... 24") | | Соединения измерительной трубы | EN 1092-1, ANSI B16.5, прочие по запросу | | Рабочие условия | | Условия монтажа | см. информацию по системе | - мин . температура процесса
| -20 °C (-4 °F) | | | Макс. 90 °C (194 °F) Опция: 100 °C (212 °F) | | | - 150 °C (300 °F) при 25 бар (363 psi)
- 100 °C (194 °F) при 40 бар (580 psi)
| | | 30 °C (266 °F) при 40 бар (580 lbs) | | Предельные значения для окружающей температуры | | | | - -20 ... +65 °C (-4 ... +149 °F)
- -20 ... +40 °C (-4 ... +104 °F)
при температуре процесса > 130 °C (> 266 °F) | - компактные версии до DN 65 (2S")
| - -20 ... +65 °C (-4 ... +149 °F)
при температуре процесса ≤ 60 °C (≤ 140 °F) - -20 ... +40 °C (-4 ... +104 °F)
при температуре процесса 60 ... 130 °C (140 ... 266 °F), в зависимости от используемого измерительного датчика и его обшивки | | Класс защиты | IP65 / NEMA 4, IP67 / NEMA 4X Опция IP68 / NEMA 6 | | Свойства измеряемой среды | | | Мин. проводимость | при переменном поле > 1 µS/c, в зависимости от вещества и скорости протока | | Макс. скорость протока | 12 м/сек (39.4 ft/s) | | Конечное значение диапазона измерения скорости протока | | | | 0.15 ... 12 м/сек (0.49 ... 39.4 ft/s) | | Эталонные условия | - симметричный профиль протока
- калибровка с соответствующим измерительным преобразователем
| | Допуск измерения вкл. измерительный преобразователь | См. измерительный преобразователь Transmag 2 Предельное значение погрешности относится к скорости протока в месте монтажа, при соблюдении указаний по монтажу и условий измерения (см. информацию о системе). | | Температура процесса | 25 °C ±5 °C (77 °F ±9 °F) | | Окружающая температура | 25 °C ±5 °C (77 °F ±9 °F) | | Время нагрева | 30 мин | | Условия монтажа | Участок впускной трубы > 10 x DN, Участок выпускной трубы > 5 x DN; Монтаж вертикально к оси протока | | Вещество | чистая вода без газов и примесей | | Проводимость вещества | > 200 µS/cм | Указания по руководству по приборам давления Приборы расчитаны для жидкостей группы опасности “Газы флюидной группы 1". Категории варьируются в зависимости от исполнения и перечислены в таблице ниже. Мин. температура для материалов фланца C22.8 (1.0460) и ST52-5(1.0570) определена как -10 °C. Для материала фланца 1.4571/315 Ti мин. температура установлена на -20 °C. | Классификация согласно руководству по приборам давления (DGRL 97/23 EC) | | Ном . диаметр DN (дюймов) | Ном. давление PN (MWP psi) | Допустимые вещества | Категория | | 15 ... 25 (½" ... 1") | 10 ... 40 (145 ... 580) | Газы флюидной группы 1 и жидкости флюидной группы 1 | Статья 3.3 | | 32 ... 100 (1¼" ... 4") | 10 (145) | Газы флюидной группы 1 и жидкости флюидной группы 1 | I | | 32 ... 50 (1¼" ... 2") | 16 (232) | Газы флюидной группы 1 и жидкости флюидной группы 1 | I | | 32 ... 40 (1¼" ... 1½") | 25 (363) | Газы флюидной группы 1 и жидкости флюидной группы 1 | I | | 100 ... 350 (4" ... 12") | 10 (145) | Газы флюидной группы 1 и жидкости флюидной группы 1 | II | | 65 ... 200 (2½" ... 8") | 16 (232) | Газы флюидной группы 1 и жидкости флюидной группы 1 | II | | 50 ... 125 (2" ... 5") | 25 (363) | Газы флюидной группы 1 и жидкости флюидной группы 1 | II | | 32 ... 80 (1¼" ... 3") | 40 (580) | Газы флюидной группы 1 и жидкости флюидной группы 1 | II | | 350 ... 600 (14" ... 24") | 10 (145) | Газы флюидной группы 1 и жидкости флюидной группы 1 | III | | 250 ... 600 (10" ... 24") | 16 (232) | Газы флюидной группы 1 и жидкости флюидной группы 1 | III | | 150 ... 600 (6" ... 24") | 25 (363) | Газы флюидной группы 1 и жидкости флюидной группы 1 | III | | 100 ... 600 (4" ... 24") | 40 (580) | Газы флюидной группы 1 и жидкости флюидной группы 1 | III | |
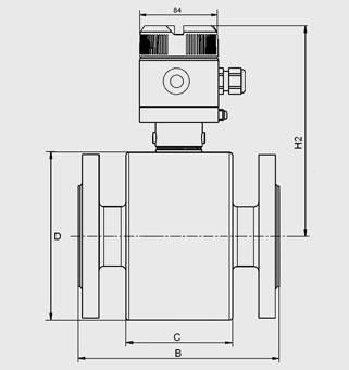
Чертеж SITRANS F M Измерительный датчик 911/E, раздельная конструкция, размеры в мм (дюймах) SITRANS F M Измерительный датчик 911/E, компактная конструкция, размеры в мм (дюймах) | Ном. диаметр | DN15 | DN20 | DN25 | DN32 | DN40 | DN50 | DN65 | DN80 | DN100 | DN125 | DN150 | DN200 | DN250 | DN300 | DN350 | DN400 | DN500 | DN600 | | | ½“ | ¾“ | 1“ | 1 ¼“ | 1 ½“ | 2“ | 2 ½“ | 3“ | 4“ | 5“ | 6“ | 8“ | 10“ | 12“ | 14“ | 16“ | 20“ | 24“ | | | Монтажная длина BI) | | Версия с эбонитом Версия с мягкой резиной /Neopren Футеровка из PTFE без защитных дисков | 270 (10.63) | 280 (11.02) | 330 (12.99) | 340 (13.39) | 370 (14.57) | 410 (16.14) | 470 (18.50) | 500 (19.68) | 550 (21.65) | 600 (23.62) | 650 (25.59) | 780 (30.71) | | Футеровка из PTFE с защитными дисками | 276 (10.86) | 286 (11.26) | 336 (13.23) | 346 (13.62) | 376 (14.80) | 416 (16.38) | 476 (18.74) | 510 (20.08) | 560 (22.05) | 610 (24.02) | 660 (25.98) | 790 (31.10) | | Версия Novolak | - | 275 (10.83) | 325 (12.79) | 335 (13.19) | 333 (13.11) | 363 (14.29) | 403 (15.87) | 461 (18.15) | 489 (19.25) | 543 (21.38) | 593 (23.35) | 643 (25.32) | 773 (30.43) | | | Размеры преобразователя расхода | | Ширина корпуса C | 170 (6.69) | 240 (9.45) | 306 (12.05) | 360 (14.17) | 412 (16.22) | 552 (21.73) | | Высота H для компактной версии | 281 (11.06) | 285 (11.22) | 291 (11.46) | 298 (11.73) | 314 (12.36) | 326 (12.83) | 345 (13.58) | 371 (14.61) | 408 (16.06) | 441 (17.36) | 553 (21.77) | 578 (22.76) | 633 (24.92) | 688 (27.09) | | Высота H2 для раздельной версии | 175 (6.89) | 180 (7.08) | 187.5 (7.38) | 195 (7.68) | 215 (8.46) | 230 (9.06) | 252.5 (9.94) | 285 (11.22) | 330 (12.99) | 370 (14.57) | 347 (13.66) | 372 (14.65) | 424 (16.69) | 477 (18.78) | | Диаметр корпуса D | 135 (5.315) | 169 (6.654) | 184 (7.244) | 249 (9.803) | 274 (10.79) | 298 (11.73) | 324 (12.76) | 394 (15.51) | 442 (17.40) | 492 (19.37) | 469 (18.46) | 536 (21.10) | 631 (24.84) | 746 (29.37) | | Вес версии PN 10 в кг (MWP 145 psi версия в lbs) | 8.0 (17.6) | 8.5 (18.7) | 11.0 (24.3) | 11.5 (25.4) | 25.0 (55.1) | 26 (57.3) | 28 (61.7) | 34 (75.0) | 38 (83.8) | 68 (149.9) | 80 (176.4) | 90 (198.4) | 110 | 150 | 210 (463) | 370 (860) | ²) Допуск для монтажной длины: B + 0,0 мм (0.00 дюймов) /- 4,0 мм (-0.157 дюймов). С защитными кольцами или дисками при >DN 25+6,0, > DN 200 + 10,0 мм (> 1" + 0.236 дюймов. > 8" + 0.394 дюймов) |
Заказные данные | Заказной № | Описание | Вес (кг) | Доставка | Мин. зак. (шт) | | 7ME511.-.....-.... | SITRANS F M, СЕНСОР 711/911/E ФУТЕРОВКА ТВЕРДОЙ РЕЗИНОЙ, PN10, | 9 | по запросу (D) | 1 | | 7ME512.-.....-.... | SITRANS F M, СЕНСОР 711/911/E ФУТЕРОВКА ТВЕРДОЙ РЕЗИНОЙ, PN16, | 9 | по запросу (X) | 1 | | 7ME513.-.....-.... | SITRANS F M, СЕНСОР 711/911/E ФУТЕРОВКА ТВЕРДОЙ РЕЗИНОЙ, PN25, | 9 | по запросу (X) | 1 | | 7ME514.-.....-.... | SITRANS F M, СЕНСОР 711/911/E ФУТЕРОВКА ТВЕРДОЙ РЕЗИНОЙ, PN40, | 9 | по запросу (X) | 1 | | 7ME521.-0....-.... | SITRANS F M,СЕНСОР МАГНИТНО-ИНДУКЦИОННОГО РАСХОДОМЕРА 711/911/E PN10, ФУТЕРОВКА NOVOLAK, | 9 | по запросу (X) | 1 | | 7ME522.-0....-.... | SITRANS F M,СЕНСОР МАГНИТНО-ИНДУКЦИОННОГО РАСХОДОМЕРА 711/911/E ФУТЕРОВКА NOVOLAK, PN16, | 9 | по запросу (X) | 1 | | 7ME523.-0....-.... | SITRANS F M,СЕНСОР МАГНИТНО-ИНДУКЦИОННОГО РАСХОДОМЕРА 711/911/E PN25, ФУТЕРОВКА NOVOLAK, | 9 | по запросу (X) | 1 | | 7ME524.-0....-.... | SITRANS F M,СЕНСОР МАГНИТНО-ИНДУКЦИОННОГО РАСХОДОМЕРА 711/911/E PN40, ФУТЕРОВКА NOVOLAK, | 9 | по запросу (X) | 1 | | 7ME531.-.....-.... | SITRANS F M,СЕНСОР МАГНИТНО-ИНДУКЦИОННОГО РАСХОДОМЕРА 711/911/E PN10, MIT ФУТЕРОВКА PTFE (С ЗАЩИТНЫМИ ШАЙБАМИ), | 9 | по запросу (X) | 1 | | 7ME532.-.....-.... | SITRANS F M,СЕНСОР МАГНИТНО-ИНДУКЦИОННОГО РАСХОДОМЕРА 711/911/E PN16, MIT ФУТЕРОВКА PTFE (С ЗАЩИТНЫМИ ШАЙБАМИ), | 9 | по запросу (X) | 1 | | 7ME533.-.....-.... | SITRANS F M,СЕНСОР МАГНИТНО-ИНДУКЦИОННОГО РАСХОДОМЕРА 711/911/E PN25, MIT ФУТЕРОВКА PTFE (С ЗАЩИТНЫМИ ШАЙБАМИ), | 9 | по запросу (X) | 1 | | 7ME534.-.....-.... | SITRANS F M,СЕНСОР МАГНИТНО-ИНДУКЦИОННОГО РАСХОДОМЕРА 711/911/E PN40, ФУТЕРОВКА PTFE (С ЗАЩИТНЫМИ ШАЙБАМИ), | 9 | по запросу (X) | 1 | |
Аксессуары | Заказной № | Описание | Вес (кг) | Доставка | Мин. зак. (шт) | | 7ME590.-.... | ЗАЗЕМЛЯЮЩИЕ ФЛАНЦЫ ДЛЯ РАСХОДОМЕРА SITRANS F M, (ЦЕНА ЗА 1 ШТУКУ) | 0.5 | 6 - 8 недель (C) | 1 | | 7ME591.-.... | ЗАЩИТНЫЕ ФЛАНЦЫ ДЛЯ SITRANS F M (ЦЕНА ЗА ПАРУ) | 0.5 | 4 - 6 недель (B) | 1 | | 7ME592.-.... | ЗАЩИТНЫЕ ШАЙБЫ ДЛЯ ДАТЧИКА SITRANS F M | 0.5 | 6 - 8 недель (C) | 1 | | 7ME5930-0....-.... | SITRANS F M, ЭЛЕКТРОМАГНИТНЫЙ РАСХОДОМЕР, АКСЕССУАРЫ | 2.5 | 4 - 6 недель (B) | 1 | | 7ME5930-2....-.... | SITRANS F M, ЭЛЕКТРОМАГНИТНЫЙ РАСХОДОМЕР, АКСЕССУАРЫ | 2.5 | 4 - 6 недель (B) | 1 | | 7ME5930-5....-.... | SITRANS F M, ЭЛЕКТРОМАГНИТНЫЙ РАСХОДОМЕР, АКСЕССУАРЫ | 2.5 | 4 - 6 недель (B) | 1 | |
|