0

Разделы

Отборное устройство - Барабанный счетчик

Отборное устройство - Барабанный счетчик

Sample cock

The sample cock is used to take samples from pipelines for monitoring operation, with simultaneous metering of the sampled quantities for taxing purposes.

The sample cock is approved for tax monitoring in Germany.

Дизайн

Sample cock, housing (left) and function unit

The sample cock is a 2-way cock with a sealable housing. The vessel is fitted in the body of the cock.

Assembly is carried out in horizontal pipelines, with the sample outlet pointing downwards. Otherwise the regulations of the German monopoly administration apply.

Функции

The sample cock has two positions - one for filling and one for emptying the vessel. The quantity of the samples is exactly proportioned: 20 cm³ (1.22 cu.in). The number of samples taken is indicated by a 6-digit drum-type counter.

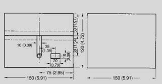
Чертеж

Sample cock, housing, dimensions in mm (inch)

Sample cock without housing, dimensions in mm (inch)

Заказные данные

Заказной №ОписаниеВес (кг)ДоставкаМин. зак. (шт)
7MS9003-8.A00ПРОБООТБОРНИК, ОБЪЕМ 20 CM33по запросу (X)1

Заказные данные [PDF]

Загрузить PDF-файл.

Для просмотра информации в формате PDF необходимо установить Adobe Acrobat Reader.
Adobe Acrobat Reader