Область примененияСиловые модули предназначены для использования в составе станций распределенного ввода-вывода ET 200S и выполняют функции коммутации и защиты силовых цепей потребителей трехфазного переменного тока. В сочетании с соответствующими терминальными модулями они позволяют производить быстрое и простое подключение нагрузки и обеспечивают минимальные габариты силовых коммутационных узлов. В составе станции ET 200S могут использоваться силовые модули следующих видов: - Нереверсивные силовые модули DS, DS-x и DS1-x стандартного исполнения
- Нереверсивные силовые модули DS1e-x с улучшенным набором характеристик
- Нереверсивные программируемые силовые модули DSS1e-x с улучшенным набором характеристик и выполнением функций устройств плавного пуска
- Реверсивные силовые модули RS, RS-x и RS1-x стандартного исполнения
- Реверсивные силовые модули RS1e-x с улучшенным набором характеристик
Модули с улучшенным набором характеристик имеют целый ряд преимуществ по сравнению с модулями стандартного исполнения: - Коммутационная способность модулей увеличена до 7.5 кВт
- Дистанционное изменение параметров настройки
- Отдельные сообщения о перегрузке и коротком замыкании
- Дистанционное квитирование сообщений о перегрузке
- Контроль асимметрии токов
- Прекращение пуска при перегрузке
- Считывание текущих значений тока нагрузки в ведущее DP-устройство
- Контроль граничных значений тока
- Настройка на класс отключения 10 или 20
- Вид координации 2 (способность к функционированию после отключения короткого замыкания с ударным током 50 кА)
- Очень высокий срок службы контактных групп
При необходимости все силовые модули за исключением DSS1e-x могут комплектоваться модулями управления электромагнитным тормозом. Модули управления электромагнитным тормозом имеют два исполнения, использующие для управления тормозом внешний источник питания =24В (xB1, xB3) или =500В (xB2, xB4). Модуль управления электромагнитным тормозом устанавливается справа от соответствующего силового модуля. Подключение к силовому модулю осуществляется через терминальный модуль модуля управления электромагнитным тормозом. Тормоза =24 В получают питание от внешнего блока питания и способны функционировать даже при отключенном силовом модуле. Тормоза =500 В получают питание через выпрямитель, подключенный к выходным цепям силового модуля. Поэтому при отключении силового модуля управлять работой тормоза невозможно. Модули управления электромагнитным тормозом не могут использоваться в сочетании с силовыми модулями DSS1e-x, обеспечивающими плавный пуск двигателя. Выходы модулей управления тормозами могут быть альтернативно использованы и для других целей. Например, для управления соленоидными вентилями постоянного тока. С помощью двух дополнительных локально действующих входов, имеющихся на модулях управления тормозами (xB3, xB4), и еще двух на модуле управления пускателем типа High Feature можно реализовать автономные специальные функции, работающие независимо от шины и вышестоящего контроллера, например, быстрый останов при управлении золотниками. Состояния этих входов параллельно сообщаются контроллеру. Силовые терминальные модули Терминальные модули являются механической основой для построения станции распределенного ввода-вывода ET 200S. С их помощью формируется требуемое количество посадочных мест для размещения силовых модулей и модулей контроля питания, формируются внутренние шины станции, что позволяет экономить место для ее размещения и получать надежные электрические соединения. В составе станций распределенного ввода-вывода ET 200S может быть использовано несколько видов силовых терминальных модулей: - Силовые терминальные модули TM-DS и TM-RS
- Терминальные модули TM-DS и TM-RS предназначены для установки силовых модулей. TM-DS служит для размещения нереверсивных, TM-RS - для размещения реверсивных модулей. Для питания фидеров нагрузки в станции ET 200S используется отдельная силовая 3-фазная шина. Терминальные модули TM-DS/RS оснащены встроенными участками трехфазной шины питания цепей нагрузки. В зависимости от типа используемых терминальных модулей ток нагрузки встроенной трехфазной силовой шины питания может достигать 40 или 50А.
- Силовые терминальные модули TM-DS и TM-RS, имеющие в конце обозначения типа маркировку "-S32“, снабжены шестью соединительными клеммами. Три из них используются для подключения нагрузки, еще три - для подключения внутренней силовой шины к источнику 3-фазного переменного тока. Такие модули устанавливаются в начале (с левой стороны) сегмента силовой шины.
- Силовые терминальные модули TM-DS и TM-RS, имеющие в конце обозначения типа маркировку "-S31“, снабжены только тремя клеммами для подключения нагрузки и содержат сквозные участки встроенной силовой шины станции. В комплект поставки силовых терминальных модулей "-S32“ входят три пробки для изоляции гнезд силовой шины на последнем силовом терминальном модуле сегмента.
- Терминальные модули TM-xB
- Терминальные модули TM-xB используются для установки модулей управления электромагнитным тормозом xB1, xB2, xB3 и xB4. Они устанавливаются справа от терминального модуля TM-DS или TM-RS с силовыми модулями DS-x, DS1-x, DS1e-x, DSS1e-x, RS-x, RS1-x, RS1e-x или RSS1e-x. Терминальный модульxB215 дополнительно снабжены клеммами для подключения внешних цепей двух дискретных входов.
Дополнительные принадлежности: - Разделительный модуль DM-V15
- Разделительный модуль используется совместно с терминальными модулями TM-DS/ TM-RS или TM-xB15. Он позволяет увеличить зазор между соседними силовыми модулями для улучшения условий их охлаждения. DM-V15 устанавливается рядом с силовыми модулями, коммутирующими большие токи нагрузки. DM-V15 является пассивным модулем и не требует для своей установки терминального модуля.
- При необходимости с терминальными модулями TM-DS/ TM-RS могут использоваться терминальные блоки PE/N. Модули PE/N монтируются в нижней части терминальных модулей TM-DS/ TM-RS и позволяют формировать шину нейтрального провода N и шину защитного заземления PE.
- Модули-перемычки PE/N служат для соединения разрыва шины PE/N, вызванного, например, использованием модуля управления электромагнитным тормозом, силового модуля PM-D(F) или соединительного модуля PM-X. Модули-перемычки PE/N выпускаются в корпусах шириной 15 и 30 мм.
- Модуль-перемычка L1/L2/L3
- Модули-перемычки L1/L2/L3 служат для соединения участков встроенной силовой 3-фазной шины станции. Модули выпускаются в корпусах шириной 15 и 30 мм.
|
ДизайнПри монтаже групп силовых модулей должны соблюдаться следующие правила. В начале группы (слева) устанавливается терминальный модуль с модулем питания PM-D или PM-D Fx. С их помощью формируются шины питания электроники силовых модулей, выполняется мониторинг и защита этих цепей. Следом за терминальным модулем TM-P устанавливается терминальный модуль TM-xxxxS32, через который внутренняя 3-фазная шина подключается к источнику 3-фазного переменного тока. Следующие далее терминальные модули TM-xxxxS31 силовой группы получают питание автоматически через встроенную силовую шину. Количество силовых модулей в группе ограничивается нагрузочной способностью внутренней силовой шины (40 или 50А). Принадлежности для силовых модулей стандартного исполнения Модуль управления Позволяет формировать автономные цепи управления =24В, работающие независимо от ведущего DP-устройства. Замечание: модуль управления не может использоваться с компонентами автоматики безопасности SIGUARD или с модулем управления электромагнитным тормозом. Комплект управления Используется для выполнения пуско-наладочных работ. Позволяет выполнять механическую фиксацию контактора силового модуля во включенном состоянии.
Принадлежности для силовых модулей с улучшенным набором характеристик Модуль управления 2DI Опциональный модуль управления 2DI устанавливается на фронтальной панели силового модуля DS1e-x, DSS1e-x или RS1e-x и позволяет получать два дополнительных дискретных входа =24 В для управления контактором силового модуля. Функции входов задаются программным способом, что позволяет использовать эти входы для управления силовым модулем с пульта местного управления, прекращения пуска, экстренного отключения питания и т.д. Состояния дискретных входов модуля 2DI могут считываться ведущим DP-устройством. Применение модуля 2DI позволяет существенно повысить время реакции на поступающие входные сигналы благодаря обработке информации на уровне силового модуля.
Модуль управления 2DI COM Модуль управления 2DI COM дополнительно оснащен интерфейсом для связи с персональным компьютером, на котором установлено программное обеспечение настройки параметров и диагностики Switch ES Motorstarter (от версии 2.0). 2DI COM может устанавливаться только на силовые модули с улучшенным набором характеристик и интерфейсом Switch ES (3RK1301-.....-0AA3). Подключение компьютера к силовому модулю с модулем управления 2 DI COM выполняется соединительным кабелем Logo!-PC. Программное обеспечение Switch ES Motorstarter версии 2.0  Программное обеспечение Switch ES Motorstarter предназначено для выполнения операций настройки параметров, диагностики, документирования и профилактического обслуживания силовых модулей с улучшенным набором характеристик для станций распределенного ввода-вывода SIMATIC ET200S и ECOFAST. Связь осуществляется через последовательный интерфейс или через PROFIBUS DP-V1. Switch ES Motorstarter позволяет контролировать коммутационные состояния силовых модулей, упрощает выполнение операций настройки параметров силовых модулей и их расширенной диагностики. Для выполнения профилактических работ пакет поддерживает множество статистических функций и оснащен мощным набором функций интерактивной помощи. Пакет Switch ES Motorstarter может использоваться в виде автономного программного продукта или интегрироваться в среду STEP 7 от V5.1 SP3. Силовые терминальные модули TM-DS, TM-RS - Вариант “-S32“ с клеммами для подключения питания: 2 x 3 контактных точки для подключения к источнику питания и подключения нагрузки, подключение кабелей с сечением жил до 10 мм2
- Вариант “-S31“ без клемм для подключения питания: 1 x 3 контактных точки для подключения нагрузки, сквозная встроенная силовая шина, подключение кабелей с сечением жил до 10 мм2
- Возможность установки опционального клеммного блока PE/N (см. описание принадлежностей)
- Только для силовых модулей стандартного исполнения: при больших токах нагрузки (более 6,3 A) или при температуре окружающего воздуха более 40 °C между силовыми модулями DS1-x/RS1-x рекомендуется устанавливать разделительный модуль DM-V15 (см. описание принадлежностей)
TM-xB - Работа в сочетании с силовыми модулями стандартного исполнения или с силовыми модулями с улучшенным набором характеристик
- Подключение внешних цепей через контакты под винт
- Установка справа от соответствующего силового модуля TM-DS/TM-RS
DM-V15 - Опциональное использование с силовыми модулями стандартного исполнения
- Пассивный модуль без силовой шины и без клемм
- Устанавливается без терминального модуля
- Устанавливается следом за TM-DS45/ TM-RS90/ TM-xB
- Не должен учитываться при конфигурировании станции
|
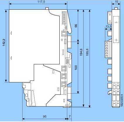
Технические данные | DS, DS-x, DS1-x | RS, RS-x, RS1-x | DS1e-x | RS1e-x | DSS1e-x | Габариты и масса | Габариты, мм: | | | | | | - силового и терминального модуля
| 45х264х120 | 90х264х120 | 65х290х150 | 130х290х 150 | 65х290х150 | - высота с терминальным блоком PE/N
| 306 | 306 | 332 | 332 | 332 | - глубина с комплектом автоматики безопасности SIGUARD
| 144.5 | 144.5 | - | - | - | | - | - | 173 | 173 | 173 | Масса: | | | | | | - силового и терминального модуля
| 1.0 кг | 1.6 кг | 1.6 кг | 2.2 кг | 1.0 кг | - силового, терминального модуля и терминального блока PE/N
| 1.1 кг | 1.8 кг | 1.7 кг | 2.3 кг | 1.1 кг | Общие технические данные | Назначение | Тип 1 для Ie ≤ 12А, IEC 60947-4-1, DIN VDE 0660, часть 102 Тип 2 для Ie ≤ 1.6А | Тип 2 для Ie ≤ 16А | Тип 1 для Ie ≤ 16А, IEC 60947-4-1, DIN VDE 0660, часть 102 | Степень загрязнения: | | | | | | | 3, IEC 60664 (IEC 61131) | 3, IEC 60664 (IEC 61131) | | 2, IEC 60664 (IEC 61131) | 2, IEC 60664 (IEC 61131) | - | Класс безопасности | I, IEC 60536 (VDE 0106, часть 1) | I, IEC 60536 (VDE 0106, часть 1) | Степень защиты | IP 20, IEC 60529 | IP 20, IEC 60529 | Защита от поражения электрическим током | | | | | | Тепловые потери: | | | | | | | 9 Вт | 9 Вт | - | - | - | | 10 Вт | 10 Вт | - | - | - | | 11 Вт | 11 Вт | - | - | - | | - | - | 9 Вт | 9 Вт | 12 Вт | | - | - | 10 Вт | 10 Вт | 9 Вт | | - | - | 18 Вт | 18 Вт | 16 Вт | Цепи управления | Напряжение питания электронных компонентов U1: | | | | | | | =24 В | =24 В | =24 В | =24 В | =24 В | - допустимый диапазон изменений
| 20.4 … 28.8 В | 20.4 … 28.8 В | 20.4 … 28.8 В | 20.4 … 28.8 В | 20.4 … 28.8 В | - защита от неправильной полярности напряжения
| Есть | Есть | Есть | Есть | Есть | Напряжение питания обмотки контактора U2: | | | | | | | =24 В | =24 В | =24 В | =24 В | =24 В | - допустимый диапазон изменений
| 20.4 … 28.8 В | 20.4 … 28.8 В | 20.4 … 28.8 В | 20.4 … 28.8 В | 20.4 … 28.8 В | - защита от неправильной полярности напряжения
| Есть | Есть | Есть | Есть | Есть | Потребляемый ток: | | | | | | | 20 мА | 20 мА | 40 мА | 40 мА | 40 мА | | 100 мА | 100 мА | 1.7 А в течение 80 мс; 100 мА длительно | 30 мА | - от внутренней шины станции, не более
| 10 мА | 10 мА | 10 мА | 10 мА | 10 мА | Силовые цепи | Номинальное рабочее напряжение Ue: | | | | | | - в соответствии с DIN VDE 0106, часть 1014; IEC 60947-1; EN 60947-1
| ~500 В | ~500 В | ~500 В | ~500 В | ~480 В | - защитная изоляция между главными и вспомогательными цепями
| 400 В | 400 В | 400 В | 400 В | - | UL, CSA | ~600 В | ~600 В | ~600 В | ~600 В | ~480 В | Номинальное испытательное напряжение изоляции | ~500 В | ~500 В | ~500 В | ~500 В | ~500 В | Номинальные импульсное напряжение изоляции | 6 кВ | 6 кВ | 6 кВ | 6 кВ | 4 кВ | Номинальная частота переменного тока | 50/ 60 Гц | 50/ 60 Гц | 50/ 60 Гц | 50/ 60 Гц | 50/ 60 Гц | Автоматический выключатель | Класс отключения | 10 | 10 | - | - | - | Максимальный номинальный ток | 12 А | 12 А | 3/ 8/ 16 А | 3/ 8/ 16 А | 3/ 8/ 16 А | Диапазоны настройки: | | | | | | - тепловой защиты от перегрузки
| От 0.14 … 0.2А до 9 … 12А | - | - | - | - электромагнитный расцепитель
| Фиксированная настройка: 12 х Ie | Фиксированная настройка: 13 х Ie | Минимальный ток отключения в случае обрыва фазы (100%-я несимметрия) | 0.85 х Ie | - | - | - | - | Номинальный отключаемый ток короткого замыкания при Ie=12А | 50кА при 400В | 50кА при 400В | 50кА при 400В | 50кА при 400В | 50кА при 400В | Количество циклов срабатывания: | | | | | | | 100000 | 100000 | 100000 | 100000 | 100000 | | 100000 | 100000 | 100000 | 100000 | 100000 | Контактор | Номинальный ток Ie при +60ºC: | | | | | | | 12А | 12А | 16 А | 16 А | - | | 12А/400В; 9А/500В | 16А/400В; 11А/500В | - | | 4.1А | 4.1А | 9 А | 9 А | - | | - | - | - | - | 3 А | | - | - | - | - | 8/ 16 А | Максимальная мощность подключаемого 3-фазного двигателя при напряжении 500 В | 5.5кВт | 5.5кВт | 7.5кВт | 7.5кВт | 7.5 кВт | Количество механических циклов срабатывания: | | | | | | | 30000000 | 30000000 | 10000000 | 10000000 | - | - контактора с функциями автоматики безопасности
| 10000000 | 10000000 | - | - | - | Количество электрических циклов срабатывания | См. график | См. график | См. график | См. график | - | Ограничение коммутационных перенапряжений | Встроенный диод Зеннера | Встроенный диод Зеннера | - | Время срабатывания (время срабатывания = время движения контактов + время горения дуги): | | | | | | | | | | | | | - время замыкания | 25 … 100 мс | 25 … 100 мс | 25 … 100 мс | 25 … 100 мс | - | | - время движения контактов | 20 … 50 мс | 20 … 50 мс | 20 … 50 мс | 20 … 50 мс | - | | 10 … 15 мс | 10 … 15 мс | 10 … 15 мс | 10 … 15 мс | 10 … 15 мс | | | | | | | | - время замыкания, типовое значение | 25 мс | 25 мс | 25 мс | 25 мс | - | | - время движения контактов, типовое значение | 20 мс | 20 мс | 20 мс | 20 мс | - | | xB1 | xB3 | xB2 | xB4 | Общие технические данные | Диапазон температур: | | | | | | 0 … +60ºC | 0 … +60ºC | 0 … +60ºC | 0 … +60ºC | - хранения и транспортировки
| -40 … +80ºC | -40 … +80ºC | -40 … +80ºC | -40 … +80ºC | Степень защиты | IP 20 по IEC 60529 | IP 20 по IEC 60529 | IP 20 по IEC 60529 | IP 20 по IEC 60529 | Дискретные входы (клеммы 2 и 6 терминального блока) | Входной ток: | | | | | - высокого уровня, не менее
| - | 5 мА | - | 5 мА | | - | 1.5 мА | - | 1.5 мА | | - | 10 мА | - | 10 мА | Задержка распространения входного сигнала | - | 10 мс | - | 10 мс | Цепь питания датчиков (клеммы 1 и 5 терминального блока): | | | | | - защита от короткого замыкания
| - | Есть | - | Есть | | - | Есть | - | Есть | Допустимый диапазон изменения рабочего напряжения по отношению к U1- | - | 20.4 … 28.8 В | - | 20.4 … 28.8 В | Ограничение тока при коротком замыкании на U1- | - | 1 А | - | 1 А | Изоляция | Между цепями привода и электромагнитного тормоза | ~500 В | ~500 В | ~500 В | ~500 В | Допустимое импульсное напряжение | 8 кВ | 8 кВ | 8 кВ | 8 кВ | Выключатель электромагнитного тормоза (клеммы 4 и 8 терминального блока) | Номинальное рабочее напряжение | =24 В | =24 В | =500 В | =500 В | Периодическое импульсное напряжение, не более | = 35В | = 35В | 710 Vs | 710 Vs | Длительно допустимый ток, не более | 4 А | 4 А | 0.7 А | 0.7 А | Ток включения, не более | 8 А, до 120 мс | 8 А, до 120 мс | 5 А, до 120 мс | 5 А, до 120 мс | Ток отключения, DC 13 при =24 В (с внешней защитной цепью), не более | 4 А | 4 А | 0.7 А | 0.7 А | Ток в отключенном состоянии, не более | 100 мА | 100 мА | 1 мА | 1 мА | Падение напряжения, не более | 0.3 В при 4 А | 0.3 В при 4 А | 1.4 В при 0.7 А | 1.4 В при 0.7 А | Мощность электромагнитного тормоза, не более | 95 Вт при =24 В | 95 Вт при =24 В | 70 Вт при ~230 В 100 Вт при ~400 В 135 Вт при ~500 В | 70 Вт при ~230 В 100 Вт при ~400 В 135 Вт при ~500 В | Светодиодная индикация (желтый светодиод): | | | | | | Светодиод отключен | Светодиод отключен | | Светодиод включен | Светодиод включен | Аварийное сообщение в случае отказа электромагнитного тормоза | Нет | Нет | Нет | Нет | Набор защит | Защита от перегрузки | Встроенная схема ограничения тока | Защита от короткого замыкания по EN 60497-5-1 | Есть, =24 В/1 кА | Есть, =24 В/1 кА | Есть, 230 В/1 кА | Есть, 230 В/1 кА | Защита от неправильной полярности напряжения | Есть | Есть | Нет | Нет | Защита от коммутационных перенапряжений | Есть, встроенным диодом | Есть, встроенным варистором | Внешняя защита от коммутационных перенапряжений при мощности электромагнитного тормоза: | | | | | | Рекомендуется | Рекомендуется | Рекомендуется | Рекомендуется | | Необходима | Необходима | Необходима | Необходима | |
Заказные данные Заказной № | Описание | Вес (кг) | Доставка | Мин. зак. (шт) | 3RK1301-0AB10-0AA4 | DS1E-X FOR ET200S HIGH FEATURE DIRECT STARTER SETTING RANGE 0.3...3A MECHANICAL SWITCHING ELEKTRONIC CONTACTOR AC-3/TO 1.1KW/400V EXPANDABLE FOR BRAKE CONTROL MODULE 2DI MODULE MOTORSTARTER ES SIGNAL FROM CIRCUIT-BREAKER PARAMETERIZABLE | 1.34 | 3 - 5 недель (A) | 1 | 3RK1301-0AB10-1AA4 | RS1E-X FUER ET200S HIGH FEATURE REVERSING STARTER SETTING RANGE 0.3...3A MECHANICAL SWITCHING ELECTRONIC PROTECTION AC-3/TO 1.1KW/400V EXPANDABLE FOR BRAKE CONTROL MODULE 2DI MODULE 2DI MODULE SIGNAL FROM CIRCUIT-BREAKER PARAMETERIZABLE | 1.95 | 3 - 5 недель (A) | 1 | 3RK1301-0AB20-0AA4 | DSS1E-X FOR ET200S HIGH FEATURE DIRECT SOFT STARTER SETTING RANGE 0.3...3A MECHANICAL SWITCHING ELECTRONIC PROTECTION AC-3/TO 1.1KW/400V EXPANDABLE FOR BRAKE CONTROL MODULE 2DI MODULE MOTORSTARTER ES SIGNAL FROM CIRCUIT-BREAKER PARAMETERIZABLE | 1.168 | 3 - 5 недель (A) | 1 | 3RK1301-0BB00-0AA2 | SIMATIC DP, ET 200S, МОДУЛЬ DS1-X: АВТОМАТ + НЕРЕВЕР. Э/М КОНТАКТОР, AC3, 0.06КВТ/~400В, ДИАПАЗОН НАСТРОЙКИ ЗАЩИТЫ 0.14 … 0.2А, РАСШИРЕНИЕ МОДУЛЕМ УПР. Э/М ТОРМОЗОМ, ШИРИНА 45ММ | 0.922 | 3 - 5 недель (A) | 1 | 3RK1301-0BB00-1AA2 | SIMATIC DP, ET 200S, МОДУЛЬ RS1-X: АВТОМАТ + РЕВЕРС. Э/М КОНТАКТОР, AC3, 0.06КВТ/~400В, ДИАПАЗОН НАСТРОЙКИ ЗАЩИТЫ 0.14 … 0.2А, РАСШИРЕНИЕ МОДУЛЕМ УПР. Э/М ТОРМОЗОМ, ШИРИНА 90ММ | 1.342 | 4 - 6 недель (B) | 1 | 3RK1301-0BB10-0AA4 | DS1E-X FOR ET200S HIGH FEATURE DIRECT STARTER SETTING RANGE 2,4...8A MECHANICAL SWITCHING ELECTRONIC PROTECTION AC-3/TO 3KW/400V EXPANDABLE FOR BRAKE CONTROL MODULE 2DI MODULE 2DI MODULE MOTORSTARTER ES SIGNAL FROM CIRCUIT-BREAKER PARAMETERIZABLE | 1.327 | 3 - 5 недель (A) | 1 | 3RK1301-0BB10-1AA4 | RS1E-X FOR ET200S HIGH FEATURE REVERSING STARTER SETTING RANGE 2.4...8A MECHANICAL SWITCHING ELECTRONIC PROTECTION AC-3/BIS 3KW/400V EXPANDABLE FOR BRAKE CONTROL MODULE 2DI MODULE 2DI MODULE MOTORSTARTER ES SIGNAL FROM CIRCUIT-BREAKER PARAMETERIZABLE | 1.94 | 3 - 5 недель (A) | 1 | 3RK1301-0BB20-0AA4 | DSS1E-X FOR ET200S HIGH FEATURE DIRECT SOFT STARTER SETTING RANGE 2.4...8A ELECTRONIC SWITCHING ELECTRONIC PROTECTION AC-3/TO 3KW/400V EXPANDABLE FOR BRAKE CONTROL MODULE 2DI MODULE MOTORSTARTER ES SIGNAL FROM CIRCUIT-BREAKER PARAMETERIZABLE | 1.195 | 4 - 6 недель (B) | 1 | 3RK1301-0CB00-0AA2 | SIMATIC DP, ET 200S, МОДУЛЬ DS1-X: АВТОМАТ + НЕРЕВЕР. Э/М КОНТАКТОР, AC3, 0.06КВТ/~400В, ДИАПАЗОН НАСТРОЙКИ ЗАЩИТЫ 0.18 … 0.25А, РАСШИРЕНИЕ МОДУЛЕМ УПР. Э/М ТОРМОЗОМ, ШИРИНА 45ММ | 0.923 | 3 - 5 недель (A) | 1 | 3RK1301-0CB00-1AA2 | SIMATIC DP, ET 200S, МОДУЛЬ RS1-X: АВТОМАТ + РЕВЕРС. Э/М КОНТАКТОР, AC3, 0.06КВТ/~400В, ДИАПАЗОН НАСТРОЙКИ ЗАЩИТЫ 0.18 … 0.25А, РАСШИРЕНИЕ МОДУЛЕМ УПР. Э/М ТОРМОЗОМ, ШИРИНА 90ММ | 1.36 | 4 - 6 недель (B) | 1 | 3RK1301-0CB10-0AA4 | DS1E-X FOR ET200S HIGH FEATURE DIRECT STARTER SETTING RANGE 2.4...16A MECHANICAL SWITCHING ELECTRONIC PROTECTION AC-3/TO 7.5KW/400V EXPANDABLE FOR BRAKE CONTROL MODULE 2DI MODULE 2DI MODULE MOTORSTARTER ES SIGNAL FROM CIRCUIT-BREAKER PARAMETERIZABLE | 1.33 | 3 - 5 недель (A) | 1 | 3RK1301-0CB10-1AA4 | RS1E-X FOR ET200S HIGH FEATURE REVERSING STARTER SETTING RANGE 2.4...16A MECHANICAL SWITCHING ELECTRONIC PROTECTION AC-3/TO 7.5KW/400V EXPANDABLE FOR BRAKE CONTROL MODULE 2DI MODULE 2DI MODULE MOTORSTARTER ES SIGNAL FROM CIRCUIT-BREAKER PARAMETERIZABLE | 1.943 | 3 - 5 недель (A) | 1 | 3RK1301-0CB20-0AA4 | DSS1E-X FOR ET200S HIGH FEATURE DIRECT SOFT STARTER SETTING RANGE 2.4...16A ELECTRONIC SWITCHING ELECTRONIC PROTECTION AC-3/TO 7.5KW/400V EXPANDABLE FOR BRAKE CONTROL MODULE 2DI MODULE MOTORSTARTER ES SIGNAL FROM CIRCUIT-BREAKER PARAMETERIZABLE | 1.198 | 3 - 5 недель (A) | 1 | 3RK1301-0DB00-0AA2 | SIMATIC DP, ET 200S, МОДУЛЬ DS1-X: АВТОМАТ + НЕРЕВЕР. Э/М КОНТАКТОР, AC3, 0.09КВТ/~400В, ДИАПАЗОН НАСТРОЙКИ ЗАЩИТЫ 0.22 … 0.32А, РАСШИРЕНИЕ МОДУЛЕМ УПР. Э/М ТОРМОЗОМ, ШИРИНА 45ММ | 0.919 | 3 - 5 недель (A) | 1 | 3RK1301-0DB00-1AA2 | SIMATIC DP, ET 200S, МОДУЛЬ RS1-X: АВТОМАТ + РЕВЕРС. Э/М КОНТАКТОР, AC3, 0.09КВТ/~400В, ДИАПАЗОН НАСТРОЙКИ ЗАЩИТЫ 0.22 … 0.32А, РАСШИРЕНИЕ МОДУЛЕМ УПР. Э/М ТОРМОЗОМ, ШИРИНА 90ММ | 1.365 | 4 - 6 недель (B) | 1 | 3RK1301-0EB00-0AA2 | SIMATIC DP, ET 200S, МОДУЛЬ DS1-X: АВТОМАТ + НЕРЕВЕР. Э/М КОНТАКТОР, AC3, 0.1КВТ/~400В, ДИАПАЗОН НАСТРОЙКИ ЗАЩИТЫ 0.28 … 0.4А, РАСШИРЕНИЕ МОДУЛЕМ УПР. Э/М ТОРМОЗОМ, ШИРИНА 45ММ | 0.925 | 3 - 5 недель (A) | 1 | 3RK1301-0EB00-1AA2 | SIMATIC DP, ET 200S, МОДУЛЬ RS1-X: АВТОМАТ + РЕВЕРС. Э/М КОНТАКТОР, AC3, 0.1КВТ/~400В, ДИАПАЗОН НАСТРОЙКИ ЗАЩИТЫ 0.28 … 0.4А, РАСШИРЕНИЕ МОДУЛЕМ УПР. Э/М ТОРМОЗОМ, ШИРИНА 90ММ | 1.32 | 4 - 6 недель (B) | 1 | 3RK1301-0FB00-0AA2 | SIMATIC DP, ET 200S, МОДУЛЬ DS1-X: АВТОМАТ + НЕРЕВЕР. Э/М КОНТАКТОР, AC3, 0.12КВТ/~400В, ДИАПАЗОН НАСТРОЙКИ ЗАЩИТЫ 0.35 … 0.5А, РАСШИРЕНИЕ МОДУЛЕМ УПР. Э/М ТОРМОЗОМ, ШИРИНА 45ММ | 0.929 | 3 - 5 недель (A) | 1 | 3RK1301-0FB00-1AA2 | SIMATIC DP, ET 200S, МОДУЛЬ RS1-X: АВТОМАТ + РЕВЕРС. Э/М КОНТАКТОР, AC3, 0.12КВТ/~400В, ДИАПАЗОН НАСТРОЙКИ ЗАЩИТЫ 0.35 … 0.5А, РАСШИРЕНИЕ МОДУЛЕМ УПР. Э/М ТОРМОЗОМ, ШИРИНА 90ММ | 1.326 | 3 - 5 недель (A) | 1 | 3RK1301-0GB00-0AA2 | SIMATIC DP, ET 200S, МОДУЛЬ DS1-X: АВТОМАТ + НЕРЕВЕР. Э/М КОНТАКТОР, AC3, 0.18КВТ/~400В, ДИАПАЗОН НАСТРОЙКИ ЗАЩИТЫ 0.45 … 0.63А, РАСШИРЕНИЕ МОДУЛЕМ УПР. Э/М ТОРМОЗОМ, ШИРИНА 45ММ | 0.922 | 3 - 5 недель (A) | 1 | 3RK1301-0GB00-1AA2 | SIMATIC DP, ET 200S, МОДУЛЬ RS1-X: АВТОМАТ + РЕВЕРС. Э/М КОНТАКТОР, AC3, 0.18КВТ/~400В, ДИАПАЗОН НАСТРОЙКИ ЗАЩИТЫ 0.45 … 0.63А, РАСШИРЕНИЕ МОДУЛЕМ УПР. Э/М ТОРМОЗОМ, ШИРИНА 90ММ | 1.318 | 3 - 5 недель (A) | 1 | 3RK1301-0HB00-0AA2 | SIMATIC DP, ET 200S, МОДУЛЬ DS1-X: АВТОМАТ + НЕРЕВЕР. Э/М КОНТАКТОР, AC3, 0.21КВТ/~400В, ДИАПАЗОН НАСТРОЙКИ ЗАЩИТЫ 0.55 … 0.8А, РАСШИРЕНИЕ МОДУЛЕМ УПР. Э/М ТОРМОЗОМ, ШИРИНА 45ММ | 0.928 | 3 - 5 недель (A) | 1 | 3RK1301-0HB00-1AA2 | SIMATIC DP, ET 200S, МОДУЛЬ RS1-X: АВТОМАТ + РЕВЕРС. Э/М КОНТАКТОР, AC3, 0.21КВТ/~400В, ДИАПАЗОН НАСТРОЙКИ ЗАЩИТЫ 0.55 … 0.8А, РАСШИРЕНИЕ МОДУЛЕМ УПР. Э/М ТОРМОЗОМ, ШИРИНА 90ММ | 1.341 | 3 - 5 недель (A) | 1 | 3RK1301-0JB00-0AA2 | SIMATIC DP, ET 200S, МОДУЛЬ DS1-X: АВТОМАТ + НЕРЕВЕР. Э/М КОНТАКТОР, AC3, 0.25КВТ/~400В, ДИАПАЗОН НАСТРОЙКИ ЗАЩИТЫ 0.7 … 1.0А, РАСШИРЕНИЕ МОДУЛЕМ УПР. Э/М ТОРМОЗОМ, ШИРИНА 45ММ | 0.923 | 3 - 5 недель (A) | 1 | 3RK1301-0JB00-1AA2 | SIMATIC DP, ET 200S, МОДУЛЬ RS1-X: АВТОМАТ + РЕВЕРС. Э/М КОНТАКТОР, AC3, 0.25КВТ/~400В, ДИАПАЗОН НАСТРОЙКИ ЗАЩИТЫ 0.7 … 1.0А, РАСШИРЕНИЕ МОДУЛЕМ УПР. Э/М ТОРМОЗОМ, ШИРИНА 90ММ | 1.336 | 3 - 5 недель (A) | 1 | 3RK1301-0KB00-0AA2 | SIMATIC DP, ET 200S, МОДУЛЬ DS1-X: АВТОМАТ + НЕРЕВЕР. Э/М КОНТАКТОР, AC3, 0.37КВТ/~400В, ДИАПАЗОН НАСТРОЙКИ ЗАЩИТЫ 0.9 … 1.25А, РАСШИРЕНИЕ МОДУЛЕМ УПР. Э/М ТОРМОЗОМ, ШИРИНА 45ММ | 0.971 | 3 - 5 недель (A) | 1 | 3RK1301-0KB00-1AA2 | SIMATIC DP, ET 200S, МОДУЛЬ RS1-X: АВТОМАТ + РЕВЕРС. Э/М КОНТАКТОР, AC3, 0.37КВТ/~400В, ДИАПАЗОН НАСТРОЙКИ ЗАЩИТЫ 0.9 … 1.25А, РАСШИРЕНИЕ МОДУЛЕМ УПР. Э/М ТОРМОЗОМ, ШИРИНА 90ММ | 1.39 | 3 - 5 недель (A) | 1 | 3RK1301-1AB00-0AA2 | SIMATIC DP, ET 200S, МОДУЛЬ DS1-X: АВТОМАТ + НЕРЕВЕР. Э/М КОНТАКТОР, AC3, 0.55КВТ/~400В, ДИАПАЗОН НАСТРОЙКИ ЗАЩИТЫ 1.1 … 1.6А, РАСШИРЕНИЕ МОДУЛЕМ УПР. Э/М ТОРМОЗОМ, ШИРИНА 45ММ | 0.97 | 3 - 5 недель (A) | 1 | 3RK1301-1AB00-1AA2 | SIMATIC DP, ET 200S, МОДУЛЬ RS1-X: АВТОМАТ + РЕВЕРС. Э/М КОНТАКТОР, AC3, 0.55КВТ/~400В, ДИАПАЗОН НАСТРОЙКИ ЗАЩИТЫ 1.1 … 1.6А, РАСШИРЕНИЕ МОДУЛЕМ УПР. Э/М ТОРМОЗОМ, ШИРИНА 90ММ | 1.39 | 3 - 5 недель (A) | 1 | 3RK1301-1BB00-0AA2 | SIMATIC DP, ET 200S, МОДУЛЬ DS1-X: АВТОМАТ + НЕРЕВЕР. Э/М КОНТАКТОР, AC3, 0.75КВТ/~400В, ДИАПАЗОН НАСТРОЙКИ ЗАЩИТЫ 1.4 … 2.0А, РАСШИРЕНИЕ МОДУЛЕМ УПР. Э/М ТОРМОЗОМ, ШИРИНА 45ММ | 0.968 | 3 - 5 недель (A) | 1 | 3RK1301-1BB00-1AA2 | SIMATIC DP, ET 200S, МОДУЛЬ RS1-X: АВТОМАТ + РЕВЕРС. Э/М КОНТАКТОР, AC3, 0.75КВТ/~400В, ДИАПАЗОН НАСТРОЙКИ ЗАЩИТЫ 1.4 … 2.0А, РАСШИРЕНИЕ МОДУЛЕМ УПР. Э/М ТОРМОЗОМ, ШИРИНА 90ММ | 1.388 | 3 - 5 недель (A) | 1 | 3RK1301-1CB00-0AA2 | SIMATIC DP, ET 200S, МОДУЛЬ DS1-X: АВТОМАТ + НЕРЕВЕР. Э/М КОНТАКТОР, AC3, 0.9КВТ/~400В, ДИАПАЗОН НАСТРОЙКИ ЗАЩИТЫ 1.8 … 2.5А, РАСШИРЕНИЕ МОДУЛЕМ УПР. Э/М ТОРМОЗОМ, ШИРИНА 45ММ | 0.972 | 3 - 5 недель (A) | 1 | 3RK1301-1CB00-1AA2 | SIMATIC DP, ET 200S, МОДУЛЬ RS1-X: АВТОМАТ + РЕВЕРС. Э/М КОНТАКТОР, AC3, 0.9КВТ/~400В, ДИАПАЗОН НАСТРОЙКИ ЗАЩИТЫ 1.8 … 2.5А, РАСШИРЕНИЕ МОДУЛЕМ УПР. Э/М ТОРМОЗОМ, ШИРИНА 90ММ | 1.37 | 3 - 5 недель (A) | 1 | 3RK1301-1DB00-0AA2 | SIMATIC DP, ET 200S, МОДУЛЬ DS1-X: АВТОМАТ + НЕРЕВЕР. Э/М КОНТАКТОР, AC3, 1.1КВТ/~400В, ДИАПАЗОН НАСТРОЙКИ ЗАЩИТЫ 2.2 … 3.2А, РАСШИРЕНИЕ МОДУЛЕМ УПР. Э/М ТОРМОЗОМ, ШИРИНА 45ММ | 0.976 | 3 - 5 недель (A) | 1 | 3RK1301-1DB00-1AA2 | SIMATIC DP, ET 200S, МОДУЛЬ RS1-X: АВТОМАТ + РЕВЕРС. Э/М КОНТАКТОР, AC3, 1.1КВТ/~400В, ДИАПАЗОН НАСТРОЙКИ ЗАЩИТЫ 2.2 … 3.2А, РАСШИРЕНИЕ МОДУЛЕМ УПР. Э/М ТОРМОЗОМ, ШИРИНА 90ММ | 1.372 | 3 - 5 недель (A) | 1 | 3RK1301-1EB00-0AA2 | SIMATIC DP, ET 200S, МОДУЛЬ DS1-X: АВТОМАТ + НЕРЕВЕР. Э/М КОНТАКТОР, AC3, 1.5КВТ/~400В, ДИАПАЗОН НАСТРОЙКИ ЗАЩИТЫ 2.8 … 4.0А, РАСШИРЕНИЕ МОДУЛЕМ УПР. Э/М ТОРМОЗОМ, ШИРИНА 45ММ | 0.974 | 3 - 5 недель (A) | 1 | 3RK1301-1EB00-1AA2 | SIMATIC DP, ET 200S, МОДУЛЬ RS1-X: АВТОМАТ + РЕВЕРС. Э/М КОНТАКТОР, AC3, 1.5КВТ/~400В, ДИАПАЗОН НАСТРОЙКИ ЗАЩИТЫ 2.8 … 4.0А, РАСШИРЕНИЕ МОДУЛЕМ УПР. Э/М ТОРМОЗОМ, ШИРИНА 90ММ | 1.384 | 3 - 5 недель (A) | 1 | 3RK1301-1FB00-0AA2 | SIMATIC DP, ET 200S, МОДУЛЬ DS1-X: АВТОМАТ + НЕРЕВЕР. Э/М КОНТАКТОР, AC3, 1.9КВТ/~400В, ДИАПАЗОН НАСТРОЙКИ ЗАЩИТЫ 3.5 … 5.0А, РАСШИРЕНИЕ МОДУЛЕМ УПР. Э/М ТОРМОЗОМ, ШИРИНА 45ММ | 0.973 | 3 - 5 недель (A) | 1 | 3RK1301-1FB00-1AA2 | SIMATIC DP, ET 200S, МОДУЛЬ RS1-X: АВТОМАТ + РЕВЕРС. Э/М КОНТАКТОР, AC3, 1.9КВТ/~400В, ДИАПАЗОН НАСТРОЙКИ ЗАЩИТЫ 3.5 … 5.0А, РАСШИРЕНИЕ МОДУЛЕМ УПР. Э/М ТОРМОЗОМ, ШИРИНА 90ММ | 1.37 | 3 - 5 недель (A) | 1 | 3RK1301-1GB00-0AA2 | SIMATIC DP, ET 200S, МОДУЛЬ DS1-X: АВТОМАТ + НЕРЕВЕР. Э/М КОНТАКТОР, AC3, 2.2КВТ/~400В, ДИАПАЗОН НАСТРОЙКИ ЗАЩИТЫ 4.5 … 6.3А, РАСШИРЕНИЕ МОДУЛЕМ УПР. Э/М ТОРМОЗОМ, ШИРИНА 45ММ | 0.989 | 3 - 5 недель (A) | 1 | 3RK1301-1GB00-1AA2 | SIMATIC DP, ET 200S, МОДУЛЬ RS1-X: АВТОМАТ + РЕВЕРС. Э/М КОНТАКТОР, AC3, 2.2КВТ/~400В, ДИАПАЗОН НАСТРОЙКИ ЗАЩИТЫ 4.5 … 6.3А, РАСШИРЕНИЕ МОДУЛЕМ УПР. Э/М ТОРМОЗОМ, ШИРИНА 90ММ | 1.394 | 3 - 5 недель (A) | 1 | 3RK1301-1HB00-0AA2 | SIMATIC DP, ET 200S, МОДУЛЬ DS1-X: АВТОМАТ + НЕРЕВЕР. Э/М КОНТАКТОР, AC3, 3.0КВТ/~400В, ДИАПАЗОН НАСТРОЙКИ ЗАЩИТЫ 5.5 … 8.0А, РАСШИРЕНИЕ МОДУЛЕМ УПР. Э/М ТОРМОЗОМ, ШИРИНА 45ММ | 0.969 | 3 - 5 недель (A) | 1 | 3RK1301-1HB00-1AA2 | SIMATIC DP, ET 200S, МОДУЛЬ RS1-X: АВТОМАТ + РЕВЕРС. Э/М КОНТАКТОР, AC3, 3.0КВТ/~400В, ДИАПАЗОН НАСТРОЙКИ ЗАЩИТЫ 5.5 … 8.0А, РАСШИРЕНИЕ МОДУЛЕМ УПР. Э/М ТОРМОЗОМ, ШИРИНА 90ММ | 1.374 | 3 - 5 недель (A) | 1 | 3RK1301-1JB00-0AA2 | SIMATIC DP, ET 200S, МОДУЛЬ DS1-X: АВТОМАТ + НЕРЕВЕР. Э/М КОНТАКТОР, AC3, 4.0КВТ/~400В, ДИАПАЗОН НАСТРОЙКИ ЗАЩИТЫ 7.0 … 10.0А, РАСШИРЕНИЕ МОДУЛЕМ УПР. Э/М ТОРМОЗОМ, ШИРИНА 45ММ | 0.971 | 3 - 5 недель (A) | 1 | 3RK1301-1JB00-1AA2 | SIMATIC DP, ET 200S, МОДУЛЬ RS1-X: АВТОМАТ + РЕВЕРС. Э/М КОНТАКТОР, AC3, 4.0КВТ/~400В, ДИАПАЗОН НАСТРОЙКИ ЗАЩИТЫ 7.0 … 10.0А, РАСШИРЕНИЕ МОДУЛЕМ УПР. Э/М ТОРМОЗОМ, ШИРИНА 90ММ | 1.37 | 4 - 6 недель (B) | 1 | 3RK1301-1KB00-0AA2 | SIMATIC DP, ET 200S, МОДУЛЬ DS1-X: АВТОМАТ + НЕРЕВЕР. Э/М КОНТАКТОР, AC3, 5.5КВТ/~400В, ДИАПАЗОН НАСТРОЙКИ ЗАЩИТЫ 9.0 … 12.0А, РАСШИРЕНИЕ МОДУЛЕМ УПР. Э/М ТОРМОЗОМ, ШИРИНА 45ММ | 0.966 | 3 - 5 недель (A) | 1 | 3RK1301-1KB00-1AA2 | SIMATIC DP, ET 200S, МОДУЛЬ RS1-X: АВТОМАТ + РЕВЕРС. Э/М КОНТАКТОР, AC3, 5.5КВТ/~400В, ДИАПАЗОН НАСТРОЙКИ ЗАЩИТЫ 9.0 … 12.0А, РАСШИРЕНИЕ МОДУЛЕМ УПР. Э/М ТОРМОЗОМ, ШИРИНА 90ММ | 1.39 | 4 - 6 недель (B) | 1 | |