0

Разделы

Milltronics RBSS

Milltronics RBSS - датчик скорости с высоким разрешением, с рабочим колесом, для монтажа на обратную ленту конвейера.

 


Особенности

Milltronics RBSS
  • Прочная конструкция
  • Класс защиты IP65
  • Простой, недорогой монтаж
  • Точное измерение скорости ленты

 


Область применения

Milltronics RBSS

При работе в составе конвейерных весов, датчик скорости выдаёт на измерительный преобразователь импульсы, которые используются для расчёта массового расхода материала. С помощью датчика скорости измеряется скорость движения ленты конвейера.

RBSS устанавливается вблизи места установки конвейерных весов на обратной ветви конвейера.Датчик скорости генерирует сигналы за счет вращении колеса при движении ленты. За один оборот колеса генерируется 150,4 импульсов, которые подаются на измерительный преобразователь. Собственный вес RBSS гарантирует постоянный контакт с лентой и, тем самым, гарантирует вращение рабочего колеса. Импульсы формируются за счет вращения шестерни с 60 зубьями, приводимой в движение рабочим колесом.

Датчик скорости RBSS может быть подключен к любому измерительному преобразователю Milltronics для конвейерных весов.

 

 


Дизайн

Milltronics RBSS
Монтаж

Монтаж RBSS

 


Технические данные

Milltronics RBSS

Milltronics RBSS

 

Приницп работы

 

Принцип измерения

Специальный бесконтактный датчик выдает импульсы на интегратор

Типичное приложение

Различные ленточные конвейеры

Вход

Вращение колеса от 2 до 450 оборотов в минуту, в 2-х направлениях

Выход

  • 60 импульсов на оборот, от 2 до 450 Гц, 150,4 импульсов/м
  • RBSS: открытый коллектор, макс. 17 мА
  • RBSS IS: ток нагрузки, от 0 до 15 мА

Условия использования

 

Рабочая температура

  • RBSS: -40 ... +105 °C 
  • RBSS IS: -25 ... +100 °C

Степень защиты

IP65

Конструкция

 

Направляющий шток

Лакированная, нелегированная сталь

Колесо

Диаметр 127 мм, полиуретановый обод

Питание

  • RBSS: от 5 до 18 ВDC, 10 мА
  • RBSS IS: от 5 до 25 В DC от искробезопасного разделительного барьера

Кабель

  • RBSS: 3 м, 3-х жильный, экранированный кабель, 0,3 мм2 (22 AWG)
    • макс. длина 300 м
  • RBSS IS: 2 м, 2-х жильный, кабель с покрытием PVC, 0,1 мм2 (26 AWG)
  • макс. длина до разделительного барьера 300 м
  • макс. длина от разделительного барьера и измерительного преобразователя 300 м

Допуски

 

RBSS

CE1)

RBSS IS (с подходящим, искробезопасным разделительным усилителем)1)

  • ATEX II 2 G EEx ia IIC T6
  • CSA/FM Class I, Div. 1, Groups A, B, C, and D, Class II, Div. 1, Groups E, F, и G (системный допуск)
  • CE2)

Ном. допуски датчика приближения (Pepperl+Fuchs #NJ0.8-5GM-N)

  • ATEX II 2 G EEx ia IIC T6
  • CSA/FM Class I, Div. 1, Groups A, B, C, и D, Class II, Div. 1, Groups E, F, и G (системный допуск)

Опционный разделительный барьер (необходим для RBSS IS)3)

 

  • Pepperl+Fuchs #KFA5-SOT2-Ex2 или #KFA6-SOT2-Ex2
  • ATEX II (1) G [EEX ia] IIC
  • CSA/FM: Class 1, Div. 1, Groups A, B, C, и D. Class II, Div. 1, Groups E, F, и G

1)  Свидетельство ЭМС по запросу.

2) Допуски для RBSS IS основываются на встроенном бесконтактном датчике NAMUR (Pepperl+Fuchs № NJ0.8-5GM-N) и использовании подходящего разделительного барьера IS. Прочую информацию см. руководство по эксплуатации RBSS.

3) Параметры допуска для датчика приближения и разделительного барьера являются собственностью Pepperl+Fuchs. Копии этого допуска можно получить на http://www.siemens.com/processautomation.

 


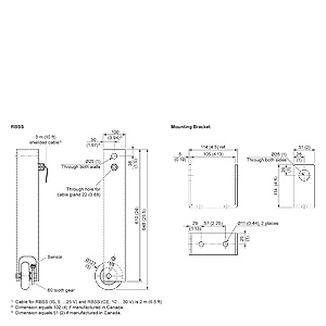
Чертеж

Milltronics RBSS

Размеры RBSS

 


Заказные данные

Цена на сайте указана розничная в ЕВРО без учета НДС.Для уточнения цены и размера предоставляемой скидки - звоните или присылайте заявки

Заказной номерPGОписание продуктаЦена
7MH7134-.....854SIEMENS MILLTRONICS RBSS ДАТЧИК СКОРОСТИ 1045.16

 


Аксессуары

Цена на сайте указана розничная в ЕВРО без учета НДС.Для уточнения цены и размера предоставляемой скидки - звоните или присылайте заявки

Заказной номерPGОписание продуктаЦена
7MH7723-1AS8ZMЗАПЧАСТЬ ДЛЯ ДАТЧИКА СКОРОСТИ RBSS 233.20
7MH7723-1AU8ZMRBSS,MOUNT KIT,SPARE 76.32
7MH7723-1EB8ZMSWITCH ISOLATOR BARRIER,115 V AC, SPARE 642.36
7MH7723-1EC8ZMSWITCH ISOLATOR BARRIER, 230 VAC,SPARE 642.36
7MH7723-1EN8ZMRBSS, WHEEL AND SHAFT, 152MM DIAMETER, SPARE 115.54
7MH7723-1EQ8ZMRBSS,60 TOOTH GEAR, SPARE 72.08
7MH7723-1ER8ZMBEARINGS, RBSS, SPARE 54.06