0

Разделы

Milltronics MUS

Milltronics MUS - это модульные конвейерные весы, предназначенные для средних нагрузок.

 

 


Особенности

Milltronics MUS
  • Уникальный модульный дизайн
  • Простая установка
  • Низкая стоимость
  • Простая модификация

 


Область применения

Milltronics MUS

Milltronics MUS - это модульные конвеерные весы, предназначеные для средних нагрузок. Весы применяются для измерения различных продуктов: различные присадки, песок, минералы, которые обеспечиваются непрерывным взвешиванием с минимальными расходами.  Не имея поперечного соединения, они универсально подходят для  конвеерных лент большой ширины, а также для стандартных роликов, уменьшается образование отложений материала.

Благодаря простой конструкции и легкому монтажу, весы  MUS могут быть установлены в короткие сроки пуска и введены в эксплуатацию. Когда необходимо переставить ленточные весы с одного ленточного транспортера на другой, весы MUS предлагают максимальную гибкость. В комбинации с Milltronics BW 100 или BW 500 с микропроцессорным управлением, весы MUS обеспечивают индикацию мгновенного массового расхода, суммарного количества, значение величины нагрузки на ленту и скорости транспортируемых продуктов на конвеерных весах. Датчик скорости ленты встроен в интегратор.

 


Технические данные

Milltronics MUS

 

Технические параметры

 

Принцип измерения

Тензоизмерительные весоизмерительные ячейки измеряют нагрузку на роликовых опорах ленточного транспортера.

Типичные применения

  • Контроль для погрузочных и разгрузочных транспортеров
  • Измерение и хранение суточных данных

Характеристики

 

Тточность

± 0.5 ... 1 % от суммарного значения при рабочем диапазоне

Неповторяемость

0.01 % от номинального выхода

Нелинейность

0.02 % от номинального выхода

Условия

 

Максимальная температура материала

65 °C

Дизайн ленты

 

Ширина ленты

  • Стандартное исполнение от 1000 мм
  • Усиленное исполнение  1200 мм, подходит и для более узких лент
  • см. раздел Размеры

Скорость ленты

До 3 м/с

Мощность

До 5000 т/ч примаксимальной скорости ленты

Наклон ленточного транспортера

  • ± 20° от горизонтали, фиксированный наклон
  • До ± 30° с уменьшенной точностью

Роликовые опоры

 

Профиль роликовых опор

  • Плоский до 35°
  • До 45° с уменьшенной точностью

Диаметр роликовых опор

До 45° с уменьшенной точностью50 .. 180 мм

Расстояние между роликовыми опорами

0.6 .. 1.5 м

Весоизмерительная ячейка

 

Конструкция

Алюминий

Активизация

10 В DC ном., 15 В DC мах.

Выход

2 мВ/В  возбуждение с помощью весоиз. ячейки

Нелинейность и гистерезис

0.02 % от номинального выхода

Ненадежность

0.01 % от номинального выхода

Мощность

 

  • Стандартные обязательные диапазоны

20, 30, 50, 75, 100 кг

  • Усиленное исполнение

50, 100, 150, 200, 500 кг

Перегрузка

150 % ном. мощности,  300 % ном. мощности

Температура

  • -40 ... +65 °C  (рабочий диапазон)
  • -10... 40 °C  (компенс.)

Вес

Стандартное исполнение до  44  (20 кг), 22  (10 кг) усиленное исполнение до 64 l (30 кг), 32 l(15 кг)

Подключение

  • <150 м  18 AWG (0.75 мм2) 6- ти провод. экран. кабель
  • >150 м  до 300 м 18 до 22 AWG (0.75 до 0.34 мм2) 8- ти провод. экран. кабель

Взрывоопасные зоны

С использованием искробезопасных барьеров

Допуски

CE

 

 


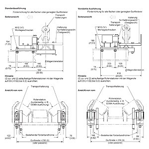
Чертеж

Milltronics MUS

 Размеры MUS

 


Схема подключения

Milltronics MUS

 Подключение MUS

 


Заказные данные

Цена на сайте указана розничная в ЕВРО без учета НДС.Для уточнения цены и размера предоставляемой скидки - звоните или присылайте заявки

Заказной номерPGОписание продуктаЦена
7MH7123-.....854MILLTRONICS MUS BELT SCALE MODULAR DESIGN MEDIUM-DUTY SCALE FOR PROCESS INDICATION 2082.90

 


Аксессуары

Цена на сайте указана розничная в ЕВРО без учета НДС.Для уточнения цены и размера предоставляемой скидки - звоните или присылайте заявки

Заказной номерPGОписание продуктаЦена
7MH7723-1DM8ZMMUS,STD,ROCK GUARD,SPARE 59.36
7ML1998-1CQ118ZMИНСТРУКЦИЯ ПО ЭКСПЛУАТАЦИИ MUS BELT SCALE НА ФРАНЦУЗСКОМ 12.72
7ML1998-1CQ218ZMИНСТРУКЦИЯ ПО ЭКСПЛУАТАЦИИ ДЛЯ MUS BELT SCALE НА ИСПАНСКОМ 12.72
7ML1998-5CQ028ZMинструкция по эксплуатации, ленточные весы MUS, английский 23.32
7ML1998-5GA018ZMленточные весы, инструкция по эксплуатации, английский 12.72
7ML1998-5GA118ZMленточные весы, инструкция по эксплуатации, французский 12.72
7ML1998-5GA218ZMленточные весы, инструкция по эксплуатации, испанский 12.72
7ML1998-5GA318ZMленточные весы, инструкция по эксплуатации, немецкий 12.72