0

Разделы

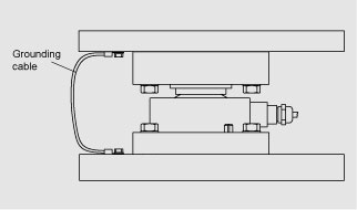
Кабель для заземления

Гибкий кабель служит для отвода паразитных токов, возникающих, например, в процессе сварки или из-за перенапряжения.

Пример использования