0

Разделы

Эластомерный механизм - Серия RN

Эластомерный механизм - Серия RN

Эластомерная опора для весоизмерительных ячеек SIWAREX R серии RN, 60 ... 280 кг

Эластомерная опора для весоизмерительных ячеек SIWAREX R серии RN, 0,5 ... 13 т

Самоцентрирующаяся эластомерная опора для весоизмерительных ячеек серии RN в комбинации с нижней частью качающейся опоры - это идеальных элемент распределения нагрузки для весов без соединений. Используется в резервуарных, платформенных и рольганговых весах для гашения вибрации и ударов.

Дизайн

Эластомерные опоры - это резинометаллические соединения, из неопрена и нержавеющей стали, обеспечивающие большой пружинящий ход и, таким образом, высокую степень затухания даже при малых размерах.

Если несущая конструкция отклоняется по горизонтали более, чем на 4 мм (6 мм при номинальной нагрузке 10 т и 13 т), необходимо ограничить боковой ход несущей конструкции (например, с помощью упоров). Необходимо принять меры против подъема несущей конструкции, изменив ее соответствующим образом.

Весоизмерительная ячейка и нижняя часть качающейся опоры не входят в комплект поставки эластомерной опоры.

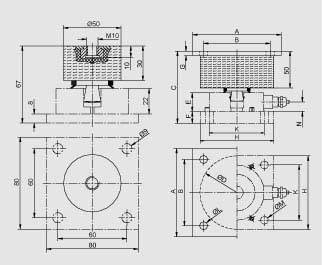
Чертеж

Исполнение от 60 до 280 кг

Исполнение от 0,5 до 13 т

 


Эластомерная опора для весоизмерительных ячеек SIWAREX R серии RN, размеры

Номинальная нагрузка

A

B

C

ØD

E

F

G

H

K

ØL

ØM

N

0,5 т, 1 т

100

75

97

85

25

15

6

100

75

11

11

9,5

2 т, 3,5 т, 5 т

120

90

102

100

30

15

6

100

75

11

11

8,5

10 т, 13 т

120

90

120

100

35

20

6

120

90

11

14

20


Заказные данные

Заказной №ОписаниеВес (кг)ДоставкаМин. зак. (шт)
7MH4130-3EE11SIWAREX R УЗЕЛ ВСТРОЙКИ ЭЛАСТОМЕРА ДЛЯ НАГРУЗОЧНЫХ ЯЧЕЕК СЕРИИ RH, RN И RS - РАСЧЕТНАЯ НАГРУЗКА 60, 130 ИЛИ 280 KG - НЕСУЩЕЕ СДЕЛАНО ИЗ ГАЛЬВАНИЗИРОВАННОЙ СТАЛИ СОСТОИТ ИЗ - НЕОПРЕНОВЫЙ ЭЛАСТОМЕР0.2по запросу (D)1
7MH4130-4AE11SIWAREX R УЗЕЛ ВСТРОЙКИ ЭЛАСТОМЕРА ДЛЯ НАГРУЗОЧНЫХ ЯЧЕЕК СЕРИИ RC - РАСЧЕТНАЯ НАГРУЗКА 500KG И 1T - НЕСУЩЕЕ СДЕЛАНО ИЗ НЕРЖАВЕЮЩЕЙ СТАЛИ. ВКЛЮЧАЕТ: - НЕОПРЕНОВЫЙ ЭЛАСТОМЕР2.333по запросу (D)1
7MH4130-4KE11SIWAREX R УЗЕЛ ВСТРОЙКИ ЭЛАСТОМЕРА ДЛЯ НАГРУЗОЧНЫХ ЯЧЕЕК СЕРИИ RC - РАСЧЕТНАЯ НАГРУЗКА 2T, 3.5T И 5T - НЕСУЩЕЕ СДЕЛАНО ИЗ НЕРЖАВЕЮЩЕЙ СТАЛИ. ВКЛЮЧАЕТ: - НЕОПРЕНОВЫЙ ЭЛАСТОМЕР2.238по запросу (D)1
7MH4130-5CE11SIWAREX R УЗЕЛ ВСТРОЙКИ ЭЛАСТОМЕРА ДЛЯ НАГРУЗОЧНЫХ ЯЧЕЕК СЕРИИ RH - РАСЧЕТНАЯ НАГРУЗКА 13T - НЕСУЩЕЕ СДЕЛАНО ИЗ НЕРЖАВЕЮЩЕЙ СТАЛИ. ВКЛЮЧАЕТ: - НЕОПРЕНОВЫЙ ЭЛАСТОМЕР2.395по запросу (D)1