Байпасные уровнемеры и магнитные указатели уровня
Применение байпасного уровнемера
Непрерывная измерение-индикация уровня без подключения к сетевому источнику питания
Индикация уровня пропорционально высоте
Индивидуальный конструктив байпасных уровнемеров и коррозионностойкие материалы обеспечивают широкий спектр применений:
Химическая отрасль промышленности, нефтеперерабатывающая отрасль, добыча нефти и газа на суше и на шельфе, судостроение, машиностроение, энергетическое оборудование, электростанции
Подготовка технологический и питьевой воды, пищевая отрасль промышленности, фармацевтическая отрасль промышленности
Обенности байпасного уровнемера
Специальные производства и технологические системы
Рабочие диапазоны:
- Рабочая температура: T = -196 ... +450 °C
- Рабочее давление: P = от вакуума до 400 бар
- Предельная плотность: ρ ≥ 340 кг/м3
Широкий ассортимент присоединений к процессу и материалов
Возможен монтаж датчиков уровня и магнитных переключателей
Взрывозащищенное исполнение

Большой популярностью у предприятий масложировой промышленности в технологиях экстракции пользуются следующие типы байпасных уровнемеров для сред измерения минеральное масло и гексан:
Байпасные преобразователи уровня.
Байпасный уровнемер модель №1 20 шт.
Среда: минеральное масло
Температура: 20-50 С
Плотность при 20° С, г/см3 не менее — 0,850—0,890
Вязкость кинематическая при 50° С, мм²/с — 26,0—38,5
Вязкость кинематическая при 40° С, мм²/с — 40,0—58,0
Присоединение: Фланец Ду 20 Рн 16
Межфланцевое 800 мм
Байпасный уровнемер модель №2 12 шт.
Среда: гексан
Температура: 20-50 С
Плотность при 20° С, ----- 0,6548 г/см³
при 50 С ----- 0,6311г/см³
Присоединение: Фланец Ду 20 Рн 16
Межфланцевое 510 мм
Преобразователи и исполнение данных байпасных уровнемеров:
Выходной сигнал 4 … 20 мА
Исполнение EEx ia
Габариты- размеры, исполнение и выходной сигнал у байпасных уровнемеров может быть различным в зависимости от задачи которую необходимо решить нашему Заказчику.
Магнитный указатель уровня Тип BNA-S00C
Разрешение: Ex h; IBExU20ATEX1066 X II 1/2G Ex h IIB T6...T1 Ga/GB, II -/2D Ex h IIIC
T68°C...T360°C -/Db (replaces: KEMA 02ATEX2106 X ll 1/2 G c T1...T6)
Дополнительные одобрения: TR.UA.113 (Украина)
Давление: 1.5 бар ; Temp.: -10°C...120°C; Плотность жидкости: 850 кг/м3
Расчетное давление: 10 бар
Размеры камеры: Наружный диаметр 60,3 x 2 мм Двойная нержавеющая сталь 316/316L (EN
1.4401/1.4404)
Присоединение к процессу: Фланец DIN EN 1092-1 DN 32 PN 16 Форма B1
Межцентровое расстояние: 1000 мм
Диапазон измерения: 1000 мм
Окончание верха камеры: Трубная заглушка
Окончание низа камеры: Фланец KSR размер наружнего диаметра 130 мм
Вентиляция: Вентиляционная пробка 1/2"BSP
Дренажное соединение: Дренажная пробка 1/2"BSP
Поплавок: ZVSS250
Индикатор уровня: BMD-SA, алюминиевый корпус с пластиковыми роликами
Демпфирующий элемент: Демпфирующая пружина, снизу и сверху, с крышкой
Прокладки: Sigraflex Universal Pro
Болтовые соединения: Серия M, нержавеющая сталь 316 (1.4404 / A4-70)
Верхняя камера (T): 100 мм
Нижняя камера (U): 225 мм
Side distance (X): 170 mm (maximal)
Табличка: Лазерная печать на алюминии
Вес: 13.1 кг
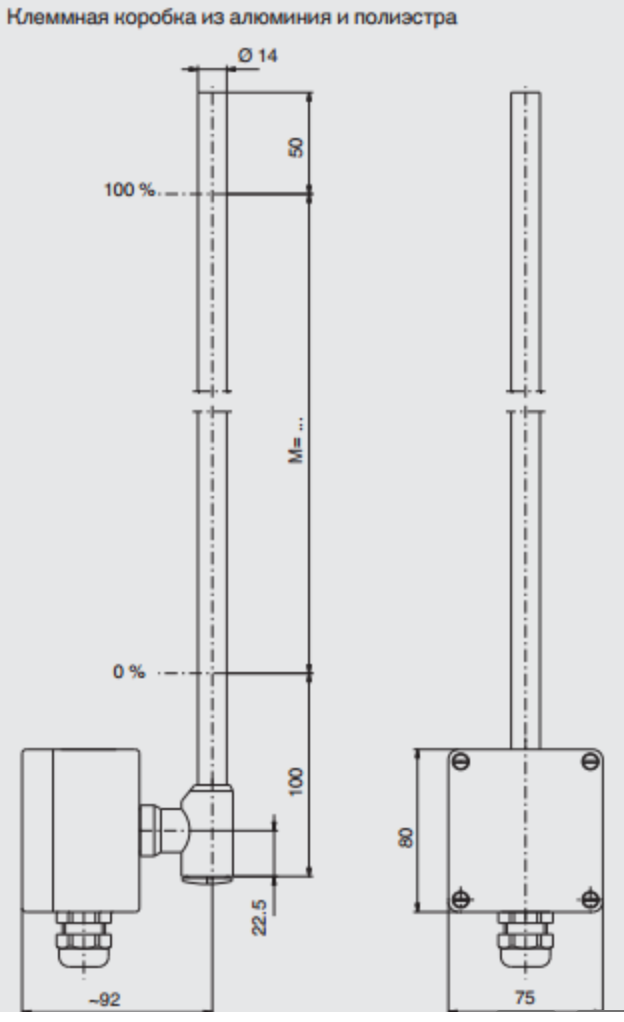
MG-AVK10/MT/T15A-L1,150/M1,000/14-Ex
Магнитный преобразователь уровня для магнитного указателя уровня Тип BLR-SBI
Одобрение: Ex i; KEMA 01ATEX1052 X II 2 G Ex ia IIC T6...T1 Gb - II 2 D Ex ib IIIC T80°C...T230°C
Db
Тепловая защита: 3 мм Microtherm
Материал: Нержавеющая сталь 316Ti (EN 1.4571)
Корпус: Алюминий IP65 M20 x 1.5 мм с кабельным вводом
Устанавливаемый в головке преобразователь: T15.HA - 2х проводной Ex i
Выходной сигнал: 4-20 мA
Расположение корпуса: Монтаж сверху под углом
100% позиция уровня (L1): 1000 мм
0% позиция уровня: 0 мм
Диапазон измерения: 1000 мм
Длина трубы датчика: 1150 мм
Расстояние между контактами: 10 мм
Удлинение корпуса: 100 мм
Дополнительные одобрения: TR.UA.113 (Украина)
BNA-EN20/16/B1-MG-M1,000-L60x2-MRAV/SAP-ZVSS 245-Ex
Магнитный указатель уровня Тип BNA-S00C
Разрешение: Ex c; KEMA 02ATEX2106 X ll 1/2 G c T1...T6
Дополнительные одобрения: TR.UA.115 (Украина)
Давление: 1 бар ; Temp.: -10°C...150°C; Плотность жидкости: 920 кг/м3
Расчетное давление: 2 бар
Размеры камеры: Наружный диаметр 60,3 x 2 мм Двойная нержавеющая сталь 316/316L (EN
1.4401/1.4404)
Присоединение к процессу: Фланец DIN EN 1092-1 DN 20 PN 16 Форма B1
Межцентровое расстояние: 1000 мм
Измерительный диапазон: 1000 мм
Окончание верха камеры: Трубная заглушка
Окончание низа камеры: Фланец KSR размер наружнего диаметра 130 мм
Вентиляция: Вентиляционная пробка 1/2"BSP
Дренажное соединение: Дренажная пробка 1/2"BSP
Поплавок: ZVSS245
Демпфирующий элемент: Демпфирующая пружина, снизу и сверху, с крышкой
Прокладки: Sigraflex Universal Pro
Болтовые соединения: Серия M, нержавеющая сталь 316 (1.4404 / A4-70)
Верхняя камера (T): 100 мм
Нижняя камера (U): 220 мм
Side distance (X): 100 mm
Табличка: Лазерная печать на алюминии
Масса: 13.6 кг
MRAV/SAP-M1,000
Индикатор уровня для магнитного указателя уровня Type BMD-SR
Измерительный диапазон: 1000 мм
Материал корпуса: Нержавеющая сталь
Элементы индикации: Ролики Красный и белый
Градуировочная шкала: Гравировка на алюминии, слева Единица градации: %
FFG-BP.20H3ON-DTK48-1,000
Магнитострикционный преобразователь уровня для магнитного датчика уровня Тип BLM-S
Разрешение: Ex d ZELM 13 ATEX 0508 X II 2G Ex d IIB T3 to T6 Gb
Материал корпуса: Нерж. сталь
Электрические подключения: M20 x 1.5 мм с кабельным вводом
Выходной сигнал: 4-20 мА - HART
Расположение корпуса: Монтаж снизу под углом
Направляющая труба: Наружный диаметр 12 мм
Измерительный диапазон: 1000 мм
Длина трубы датчика: 1150 мм
Магнитный указатель уровня Тип BNA-S00C
Разрешение: Ex c; KEMA 02ATEX2106 X ll 1/2 G c T1...T6
Дополнительные одобрения: TR.UA.115 (Украина)
Давление: 1 бар ; Temp.: -10°C...150°C; Плотность жидкости: 850 кг/м3
Расчетное давление: 2 бар
Размеры камеры: Наружный диаметр 60,3 x 2 мм Двойная нержавеющая сталь 316/316L (EN
1.4401/1.4404)
Присоединение к процессу: Фланец DIN EN 1092-1 DN 20 PN 16 Форма B1
Межцентровое расстояние: 1000 мм
Измерительный диапазон: 1000 мм
Окончание верха камеры: Трубная заглушка
Окончание низа камеры: Фланец KSR размер наружнего диаметра 130 мм
Вентиляция: Вентиляционная пробка 1/2"BSP
Дренажное соединение: Дренажная пробка 1/2"BSP
Поплавок: ZVSS250
Демпфирующий элемент: Демпфирующая пружина, снизу и сверху, с крышкой
Прокладки: Sigraflex Universal Pro
Болтовые соединения: Серия M, нержавеющая сталь 316 (1.4404 / A4-70)
Верхняя камера (T): 100 мм
Нижняя камера (U): 225 мм
Side distance (X): 100 mm (maximal)
Табличка: Лазерная печать на алюминии
MRAV/SAP-M1,000
Индикатор уровня для магнитного указателя уровня Type BMD-SR
Измерительный диапазон: 1000 мм
Материал корпуса: Нержавеющая сталь
Элементы индикации: Ролики Красный и белый
Градуировочная шкала: Гравировка на алюминии, слева Единица градации: %
AVK-ADFUVK5/MT/T15-L1,150/MT1,000/14
Магнитный преобразователь уровня для магнитного указателя уровня Тип BLR-SBD
Разрешение: Ex d - ATEX; TÜV 13 ATEX 7399 X II -40 °C <= ta <= +55 °C 2G Ex d IIC T6 Gb / II 2
D Ex tb IIIC T80°C Db
Тепловая защита: 3 мм Microtherm
Материал: Нержавеющая сталь 316Ti (EN 1.4571)
Корпус: Алюминий IP65 M20 x 1.5 мм с кабельным вводом
Встроенный преобразователь: T15.HZ - 2х проводной, стандартный
Выходной сигнал: 4-20 мA
Расположение корпуса: Монтаж снизу под углом
100% позиция уровня (L1): 0 мм
0% позиция уровня: 0 мм
Измерительный диапазон: 1000 мм
Длина трубы датчика: 1150 мм
Расстояние между контактами: 5 мм
Удлинение корпуса: 100 мм
FLR-CBMZZ003011000D4ZA2ZZGBZZ0
7500040NZZ
ARV1/2"-VK10/TS-L750/12-V52R
Магнитный преобразователь уровня Type FLR-SB
Давление: 3.0 бар
Температурный диапазон (-10°C до + 80°C)
Плотность жидкости: 1000 кг/м³
Материал: Нержавеющая сталь 316Ti (DIN 1.4571)
Корпус: Алюминий
Ingress protection: IP65
Электрические подключения: M20 x 1.5 мм с кабельным вводом
Выходной сигнал: 4-20 мA
Встроенный преобразователь: TS - 2 проводной стандартный
Присоединение к процессу: Монтажная резьба вниз 1/2"BSP
Поплавок: Нержавеющая сталь 316Ti V52R
Направляющая труба: Наружный диаметр 12 мм Длина ввода (L): 750 мм
100% позиция уровня (L1): 40 мм
Измерительный диапазон: 678 мм
Расстояние между контактами: 10 мм