0

Разделы

75 кВт - 800 кВт - Преобразователь частоты SINAMICS G150 шкафного исполнения

75 кВт - 800 кВт - Преобразователь частоты SINAMICS G150 шкафного исполнения

Особенности

Простота разработки и использования на всех этапах от фазы инжениринга до фазы применения обеспечивается:

  • Компактная модульная конструкция, оптимальность и простота обслуживания 
  • Упрощенное проектирование привода с минимумом проблем
  • Готовый к подключению шкаф, простота монтажа
  • Быстрый ввод в эксплуатацию, настойка с выбором по меню, без сложного параметрирования 
  • Удобство и простота эксплуатации с использованием комфортной графической панели оператора, запись сообщений во времени, с отображением измеряемых величин в текстовом виде или в виде  квази-аналоговой шкалы. 

Область применения

Преобразователь предназначен для приводов, которые не требуют замкнутой системы регулирования и высоких динамических характеристик. Типичные применения: насосы, вентиляторы и компрессоры.

В этом случае SINAMICS G150 предлагает экономичное решение, соответсвующее реальным потребностям.

В зависимости от необходимости в заказе тех или иных опций предлагается два варианта исполнения шкафов SINAMICSG150:

  • Вариант A
    В шкафу предусмотрена возможность встраивания всех имеющихся  сетевых коммутационных компонентов таких, как фильтр подавления радиопомех, автоматический выключатель, главный контактор, главный разъединитель с сетевыми предохранителями, или компонентов со стороны электродвигателя вместе с приборами КИП. 
  • Вариант C
    Конструкция для экономии рабочего пространства под установку. В шкафу не предусмотрены сетевые компоненты. Этот вариант может быть использован там, где у Заказчика уже имеются низковольтные коммутационные компоненты смонтированные в центральном низковольтном распределительном устройстве.

 

Универсальность

Регулятор скорости вращения SINAMICS G150 в шкафном исполнении выполнен в соответствии с современными международными стандартами и нормами (см. главу Технические характеристики).

Дизайн

Регулятор скорости вращения SINAMICSG150 в шкафном исполнении имеет компактную модульную конструкцию, оптимальную и простую в обслуживании.

Имеется широкий набор дополнительных компонентов (опций) в зависимости от варианта исполнения шкафа. Это позволяет оптимально адаптировать комплектный привод к требованиям конкретного объекта.

 

Пример исполнения А SINAMICS G150.

 

Базовая конструкция преобразователя SINAMICS G150 с дополнительными опциями на входе, которые определяют исполнение

Функции

Панель управления и настройки

В дверь шкафа регулятора скорости вращения встроена панель управления и настройки для обеспечения человеко-машинного интерфейса и для ввода в эксплуатацию:

  • Графический жидкокристаллический дисплей с подсветкой для отображения информации в текстовом режиме и квази-аналогового отображения переменных величин  
  • Светодиоды сигналов текущего состояния преобразователя 
  • Функции помощи с выдачей описания причин и способов устранения ошибок и предупреждений 
  • Клавиши для операционного управления приводом
  • Переключатель местное/дистанционное для выбора входа сигнала управления (приоретет назначен панели управления или клемной колодке Заказчика или PROFIBUS
  • Цифровые клавиши для ввода заданных и реальных значений переменных 
  • Функциональные клавиши для навигации по меню 
  • Стратегия двухуровневой безопасности для предотвращения случайного или не авторизованного изменения настроек. Управление работой привода с пульта управления может быть заблокировано с помощью пароля, и в этом случае на панели будет возможно только отображение значений параметров и переменных. Клавиша OFF (Выкл) имеет заводскую настройку «актививировано», но она также может быть заблокирована специалистом Заказчика. Пароль также может быть использован для блокировки неавторизованных изменений параметров преобразователя. 
  • Степень защиты IP54 (после монтажа). 

 

Панель оператора

 

Текстовое  сообщение на панели управления хранится на двух языках и выводится на английском или на немецком языке (назначается параметрированием). Комбинации на других языках возможны - см. данные для выбора и заказа.

Ниже приведены примеры отображения текстовой информации во время различных фаз работы преобразователя.

Панель управления используется для Первого ввода в эксплуатацию.

 

 

Для «Быстрого ввода в эксплуатацию» требуется ввести только 5 (пять) параметров электродвигателя: номинальная выходная мощность, частота вращения, номинальный ток, напряжение и частота сети. Эти данные можно получить на шильдике электродвигателя и, затем, ввести вручную с помощью краткого меню, отображаемого на дисплее.

В режиме «Работа» на дисплее отображаются такие данные, как значения уставок так и действующие значения параметров в абсолютных величинах, или до трех (параметрированием) переменных технологических величин в режиме квазианалоговой шкалы на дисплее.

 

 

 

Любые происходящие Аварийные предупреждения отображаются мигающим желтым светодиодом «ALARM»; любые происходящие Аварийные сбои/отлючения отображаются горящим красным светодиодом «FAULT». В строке состояния дисплея при этом появляется дополнительное справочное текстовое сообщение о причине.

 

 

 

Согласование с системой управления более высокого уровня и специальный интерфейсный модуль

Для подключения сигналов управления можно использовать связь по PROFIBUS DP, или через специальный интерфейсный модуль с коннекторами *).

Интерфейсный модуль позволяет соединение с системой управления более высокого уровня, как с помощью аналоговых и цифровых сигналов, так и с подключением дополнительных блоков.

Интерфейсный модуль имеет:

  • 8 цифровых входов
  • 4 двунаправленных входов/выходов
  • 2 аналоговых входа (дифференциальных) 
  • 2 аналоговых выхода
  • 2 релейных выхода (перекидывающиеся контакты) 
  • Вход для температурного датчика KTY84 или для термистора PTC 
  • Выход вспомогательного напряжения ±10 В  для аналоговой уставки
  • Выход вспомогательного напряжения ±24 В  для цифровых входов

 

Блок для подключения внешних сигналов

 

Более подробное описание интерфейсов см. в разделе «Указания по проектированию».

 

Замкнутый и разомкнутый контуры управления

Система управления регулятора скорости вращения электродвигателя использует бездатчиковое векторное управление по току и частоте вращения, а также обеспечивает защиту электродвигателя и самого привода.

 

Программное обеспечение и функции защиты

В регуляторе скорости вращения (далее регулятор с.в.) предусмотрены следующие функции:

 

Программное обеспечение и функции защиты

Описание

Ввод уставки

Уставка может быть введена как непосредственно с регулятора с.в. (изнутри), так и извне. Изнутри: уставка может быть или фиксированной, или заданной мотор-потенциометром, или в толчковом режиме (режиме наладки). Извне – через интерфейс PROFIBUS или через аналоговый вход в коммуникационном модуле. Внутренняя постоянная уставка и уставка мотор-потенциометра может быть переключена или скорректирована посредством команд управления через любой интерфейс.

Задатчик интенсивности(разгона или замедления)

Задатчик интенсивности предотвращает непреднамеренные резкие изменения в заданных значениях, и значит, повышенные механические нагрузки на двигатель и исполнительную машину. Время разгона и время замедления двигателя могут быть заданы раздельно.

Регулятор Vdc max1)

Фукция контроля максимального напряжения в звене постоянного напряжения (Vdcmax) - автоматически предотвращает появление перенапряжения в звене постоянного напряжения, например, если время замедления двигателя было задано очень коротким.

Автоматический перезапуск 1)

Функция автоматического перезапуска включает привод снова после отключения и последующего восстановления напряжения питания.

Перезапуск с подхватом 1)

Эта функция позволяет подключить привод к вращающемуся электродвигателю.

Измерение I2t  для защиты двигателя

В математической модели двигателя, хранящейся в программном обеспечении преобразователя, определяется температура двигателя в зависимости от актуальной частоты вращения. При этом получить значение температуры со 100% точностью невозможно, так как, напр., не учитывается температура окружающей среды. Для точного измерения температуры на клеммной коробке заказчика предусмотрен вход для подключения температурного датчика KTY84 или терморезистора PTC контроля t-ры обмотки двигателя.

Контроль температуры двигателя

Защита двигателя с помощью температурного датчика KTY84 или терморезистора PTC. Тип температурного датчика можно выбрать (указать) на панели оператора.  Если подключен датчик KTY84, то на панели оператора можно задать граничные значения для выдачи предупреждения или отключения. Если подключен терморезистор PTC, то можно определить ответ на срабатывание (сигнал предупреждения или отключение).

Защита от блокировки ротора двигателя

Двигатель защищается от перегрева в заблокированном состоянии с помощью отключения. Защита работает при работе двигателя с частотой вращения от 10% от номинальной и выше.

Защита силовых цепей 

 

Защита от замыкания на землю в выходных силовых цепях

Устройство контроля утечки на землю в выходных силовых цепях представляет из себя трансформатор суммарного тока и контролирует ток замыкания на землю в сетях с заземленной нейтралью, с отключением регулятора с.в.

Защита от короткого замыкания в выходных силовых цепях

Определяется короткое замыкание в цепи между двигателем и регулятором с.в. (на выходных клеммах регулятора с.в. или в силовом кабеле двигателя или в клеммной коробке двигателя), с отключением регулятора с.в.

Температурная защита двигателя

При достижении максимальной температуры происходит или отключение или автоматическое снижение характеристик (частоты ШИМ-модуляции, выходного тока) для уменьшения тепловой нагрузки. Если необходимо, то уменьшается частота вращения электродвигателя (вплоть до нуля – в зависимости от характеристики нагрузки).

После устранения причины сбоя (например, восстановление или улучшение вентиляции), возобнавляется работа с первоначальными рабочими характеристиками.


1) Значение по умолчанию (Заводская установка)

Технические данные

 

Электрические храктеристики

Диапазон напряжения питания и выходной мощности

380 В до 480 В 3 AC, ±10% (-15% < 1 мин.) 110 кВт до 560 кВт

660 В до 690 В 3 AC , ±10% (-15% < 1 мин.) 75 кВт до 800 кВт

Тип питающей сети

TN- или TT-сети или сети без нейтрали (IT-сети)

Частота питания

47 Hz до 63 Hz

Выходная частота

0 Hz до 83 Hz

Коэффициент мощности

 

  • по первой гармонике

> 0.98

  • полный 

0.93 до 0.96

КПД

> 98%

Вид управления

Векторное управление без датчика скорости или скалярное (U/f) управление

Фиксированные частоты

3 фиксированных - плюс 1 минимальная частота , параметрируемые

Пропускаемые частоты

4, параметрируемые

Шаг задания частоты

0,001 об/мин цифровое

12 бит аналоговое

Работа в тормозном режиме

Возможно с помощью тормозного блока со встроенным резистором (опционально)

Механические характеристики

Степень защиты

IP20 – в базовой комплектации (или выше до IP54 - опционально)

Класс защиты

согласно EN 50 178, часть 1

Метод охлаждения

принудительная вентиляция (см. данные по выбору и заказу, а также чертежи)

Уровень шума LpA (1 m)

<= 72 dB(A) при частоте сети 50 Гц;   <= 75 dB(A) при частоте сети 60 Гц

Защита от ударов

согласно BGV A2

Тип шкафа

Rittal TS 8, двери с двойным запорным механизмом, трёхсекционная базовая плита для сквозной прокладки силовых кабелей.

Покраска

цвет RAL 7035, спецификация для установки внутри помещения

Соответствие стандартам

Стандарты

EN 60 146‑1, EN 61 800‑2, EN 61 800‑3, EN 50 178, EN 60 204‑1, EN 60 529

Обозначение по СЕ

согласно директиве Nr. 89/336/EC и директивы для низкого напряжения Nr. 73/23/EC

Электромагнитная совместимость

Помехоподавляющий фильтр для Класса А1 согласно EN 55 011, для работы в заземленных сетях (TN-, TT-сети), дополнительный, т.е. не входит в базовую комплектацию.

Уровень подавления помех

согласно стандарту ЭМС для приводов переменной скорости вращения согласно EN61800-3 (ограниченное распространение)

 

 

 

при работе

при хранении

при транспортировке

Воздействие окруж. среды

Температура окружающей среды

0 °C до +40 °C

до +50 °C (с уменьшением мощности (см. Указания по проектированию)

-25 °C до +55 °C

-25 °C до +70 °C

до -40 °C в течении 24 часов

Допустимая относит. влажность
(конденсация влаги не допустима )

5% до 95%

5% до 95%

5% до 95% при 40 °C

 

Класc 3K3 согл. IEC 60 721-3‑3

Класс 1K4 согл. IEC 60 721-3‑1

Класс 2K3 согл. IEC 60 721-3‑2

Высота установки

до 2000 м над У.М. (100% нагрузки), и >2000 м - с уменьшением нагрузки, см. Указания по проектированию

Стойкость к мех. воздействиям

Динамическая нагрузка

  • прогиб 

0.075 мм при 10 Hz до 58 Hz

1.5 мм при 5 Hz до 9 Hz

3.5 мм при 5 Hz до 9 Hz

  • ускорение

9.8 м/сек2 при > 58 Hz до 200 Hz

5 м/сек² при > 9 Hz до 200 Hz

10 м/сек² при > 9 Hz до 200 Hz

 

-

Класс 1M2 согл.  IEC 60  721‑3‑1

Класс 2M2 согл. IEC 60  721‑3‑2

Ударная нагрузка

  • ускорение 

100 м/сек2 в течение 11 ms

40 м/сек2 в течение 22 ms

100 м/сек2 в течение 11 ms

 

Класс 3M4 согл. IEC 60  721‑3‑3

Класс 1M2 согл. IEC 60  721‑3‑1

Класс 2M2 согл. IEC 60  721‑3‑2


Отклонения от требований указанных стандартнов и классов выделены жирным шрифтом.

 

Требования к снижению рабочих характеристик

Зависимость снижения выходного тока от высоты над У.М. и окружающей температуры

Если привода SINAMICS G150 эксплуатируются на площадке с высотой >2000м над У.М., то максимально допустимый выходной ток может быть рассчитан по прилагаемым ниже таблицам в соответствии с выбранной степенью защиты шкафа привода. Данные в таблице приведены с учетом наложения условий по высоте над У.М. и по температуре окружающей среды.

 

Высота над уровнем моря

Снижение выходного тока при температуре окружающей среды:

 

20 °C

25 °C

30 °C

35 °C

40 °C

45 °C

50 °C

0-2000

100%

100%

100%

100%

100%

95.0%

90.0%

2001-2500

100%

100%

100%

100%

96.3%

91.4%

86.6%

2501-3000

100%

100%

100%

96.2%

92.5%

87.9%

83.3%

3001-3500

100%

100%

96.7%

92.3%

88.8%

84.3%

79.9%

3501-4000

100%

97.8%

92.7%

88.4%

85.0%

80.8%

76.5%


 Зависимость снижения выходного тока от высоты над У.М. и окружающей температуры 

 для приводов SINAMICS G150 в шкафном исполнении со степенью защиты IP20, IP21 и IP23

 

Высота над уровнем моря

Снижение выходного тока при температуре окружающей среды:

 

20 °C

25 °C

30 °C

35 °C

40 °C

45 °C

50 °C

0-2000

100%

100%

98%

93%

90%

85%

81%

2001-2500

100%

99%

94%

90%

86%

82%

77%

2501-3000

100%

95%

90%

86%

83%

79%

74%

3001-3500

96%

91%

87%

83%

80%

75%

71%

3501-4000

92%

87%

83%

79%

76%

72%

68%


Зависимость снижения выходного тока от высоты над У.М. и окружающей температуры для приводов SINAMICS G150 в шкафном исполнении со степенью защиты IP54 

 

Зависимость снижения выходного тока от высоты над У.М.

В дополнение к снижению выходного тока необходимо учитывать необходимость в снижении напряжения в соответствие с таблицей ниже, если привода SINAMICS G150 эксплуатируются на площадке с высотой >2000м над У.М.

 

Высота над уровнем моря

Макс. напряж. сети, В  

Снижение напряжения при значения номинального напряжения

Макс. напряжение сети, В

Снижение напряжения при номинал. напряжении

m

V

380 V

400 V

420 V

440 V

460 V

480 V

V

660 V

690 V

0-2000

480

100%

100%

100%

100%

100%

100%

690

100%

100%

2001-2250

461

100%

100%

100%

100%

100%

96%

660

100%

96%

2251-2500

451

100%

100%

100%

100%

98%

94%

648

98%

94%

2501-2750

432

100%

100%

100%

98%

94%

90%

621

95%

90%

2751-3000

422

100%

100%

100%

95%

91%

88%

607

92%

88%

3001-3250

408

100%

100%

97%

93%

89%

85%

586

89%

85%

3251-3500

394

100%

98%

93%

89%

85%

82%

565

85%

82%

3501-3750

380

100%

95%

91%

87%

83%

79%

545

83%

79%

3751-4000

365

96%

92%

87%

83%

80%

76%

524

80%

76%


Зависимость снижения выходного напряжения от высоты над У.М.

 

Информация по ЭМС

Электромагнитная совместимость в соответствии с положениями директивы ЭМС, трактуется следующим образом: “способность устройства успешно функционировать в электромагнитной обстановке без генерации электромагнитных помех, которые неприемлены для других устройств в этой среде”. Чтобы подтвердить требования стандартов по ЭМС, устройства должны демонстрировать определённо высоких уровень устойчивости к помехам, с одной стороны и, с другой стороны, излучение помех также должно быть ограничено до соответствующего уровня. Стандарт EN 61 800-3, касающийся "приводов с регулируемой частотой вращения", описывает требования к общественным и промышленным сетям.

Устойчивость

Устройства выполняют требования стандарта ЭМС EN 61 800-3 для промышленных сетей и, поскольку требования для общественных сетей менее жёсткие, то естественно выполняют и требования для общественных сетей тоже.

Излучение помех и подавление Радио-помех

Директива ЭМС требует чтобы промышленная система как целое была электромагнитно совместима с окружающей её средой.

Для ограничения излучения помех должны быть предприняты следующие меры:

  • фильтры подавления радио-помех, включая сетевые дроссели для уменьшения кондуктивных помех
  • Экранированные моторные и сигнальные кабели для уменьшения электромагнитноизлучаемых помех
  • Соответствие руководствам по установке.

В системах с SINAMICS G130 используются преобразователи и другие компоненты, такие как контакторы, выключатели, блоки обработки сигналов, компоненты автоматизации и т.д.  Необходима уверенность, что никаких помех не излучается за пределы шкафов и что отдельные устройства не излучают помех.

Наиболее важными связанными мерами являются:

  • Компоненты системы должны быть размещены в шкафу, который действует как клетка Фарадея.
  • Сигнальные и моторные кабели должны быть экранированы и экраны заземлены на обоих концах.
  • Сигнальные кабели должны быть проложены на расстоянии от силовых (не менее 200 мм). Если необходимо, могут быть установлены экранирующие панели.

Пожалуйста внимательно ознакомьтесь с документацией по устройству для получения подробных интсрукций.

Заземление

Требуемые сечение проводника PE:

Сечение проводника PE выбирается по следующим данным:

IВ случае короткого замыкания не должно возникать значительных контактных напряжений (< AC 50 В или  < DC 120 В, EN 50178 Раздел 5.3.2.2, IEC 60364, IEC 60543) как результат падения напряжения от тока короткого замыкания в заземляющем проводнике PE.
Ток короткого замыкания не должен вызывать недопустимой нагрузки на проводник PE.
Если возможна ситуация, что в случае отказа по EN 50178 Section 8.3.3.4 возможен длительный ток по проводнику PE, то сечение проводника PE должно быть выбрано по этому длительному току.
Сечение проводника должно быть выбрано по EN 60204‑1, EN 60439‑1, IEC 60364. 
  

Сечение внешнего проводника

Минимальное сечение внутреннего проводника PE

До 16 мм2

не менее сечения внешнего проводника

От 16 мм2 до 35 мм2

16 мм2

Свыше 35 мм2

 не менее половины сечения внешнего проводника


 

  • Распределительные устройства и двигатели как правило заземляются отдельно местным заземлением. В этом случае аварийные токи текут по параллельному соединению и разделяются. При этом недопустимые перенапряжения при выборе сечения проводника по данной таблице не возникают. Однако, основываясь на собранном опыте по различным видам заземления, мы рекомендуем непосредственный возврат заземляющего проводника от мотора в преобразователь. В целях электромагнитной совместимости и во избежание токов вала, используются симметричные и/или не 4х проводные кабели должны использоваться. Заземляющий проводник (PE) должен быть проложен отдельно или размещён в моторном кабеле симметрично. Симметрия заземляющего проводника PE достигается применением проводника, окружающего все фазные проводники  или использованием кабеля с симметричным расположением 3х заземляющих проводников и 3х фазных проводников.
  • Благодаря системе управления, преобразователи ограничивают ток нагрузки (токи двигателя и заземления) до действующего значения соответсвующего номинальному току. По этой причине, мы рекомендуем применение сечения внешнего проводника аналогичное внешнемцу проводнику заземления проводника заземления шкафа.

 

Дополнительно

Номинальная мощность регулятора (при 400В или 690В)

Регулятор скорости вращения

Предохранители для защиты кабелей (с имеющимся разъединителем с держателями)

Предохранители для защиты кабелей и полупроводниковых приборов (без держателей и разъединителя) 1)

(при 400 V 
или 690 V)

(при 460 V,
60 Hz)

 

Заказной номер 

Номинальный ток

Типо размер по DIN 43 620‑1

Заказной номер 

Номинальный ток

Типо размер по DIN 43 620‑1

кВт

л.с.

Тип 

 

A

 

 

A

 

Напряжение питания от 380 В до 480 В AC

110

150

6SL3710‑1GE32‑1 . A0

3NA3 252

315

2

3NE1 230‑2

315

1

132

200

6SL3710‑1GE32‑6 . A0

3NA3 254

355

2

3NE1 331‑2

350

2

160

250

6SL3710‑1GE33‑1 . A0

3NA3 365

500

3

3NE1 334‑2

500

2

200

300

6SL3710‑1GE33‑8 . A0

3NA3 365

500

3

3NE1 334‑2

500

2

250

400

6SL3710‑1GE35‑0 . A0

3NA3 372

630

3

3NE1 436‑2

630

3

315

500

6SL3710‑1GE36‑1 . A0

3NA3 475

800

4

3NE1 438‑2

800

3

400

600

6SL3710‑1GE37‑5 . A0

3NA3 475

800

4

3NE1 448‑2

850

3

450

700

6SL3710‑1GE38‑4 . A0

Автоматич. выключатель

-

-

Автоматич. выключатель

-

-

560

800

6SL3710‑1GE41‑0 . A0

Автоматич. выключатель

-

-

Автоматич. выключатель

-

-

Напряжение питания от 660 В до 690 В AC 

75

6SL3710‑1GH28‑5 . A0

3NA3 132‑6

125

1

3NE1 022‑2

125

00

90

6SL3710‑1GH31‑0 . A0

3NA3 132‑6

125

1

3NE1 022‑2

125

00

110

6SL3710‑1GH31‑2 . A0

3NA3 136‑6

160

1

3NE1 224‑2

160

1

132

6SL3710‑1GH31‑5 . A0

3NA3 240‑6

200

2

3NE1 225‑2

200

1

160

6SL3710‑1GH31‑8 . A0

3NA3 244‑6

250

2

3NE1 227‑2

250

1

200

6SL3710‑1GH32‑2 . A0

3NA3 252‑6

315

2

3NE1 230‑2

315

1

250

6SL3710‑1GH32‑6 . A0

3NA3 354‑6

355

3

3NE1 331‑2

350

2

315

6SL3710‑1GH33‑3 . A0

3NA3 365‑6

500

3

3NE1 334‑2

500

2

400

6SL3710‑1GH34‑1 . A0

3NA3 365‑6

500

3

3NE1 334‑2

500

2

450

6SL3710‑1GH34‑7 . A0

3NA3 352‑6

2x315

2

3NE1 435‑2

560

3

560

6SL3710‑1GH35‑8 . A0

3NA3 354‑6

2x355

3

3NE1 447‑2

670

3

710

6SL3710‑1GH37‑4 . A0

3NA3 365‑6

2x500

3

3NE1 448‑2

850

3

800

6SL3710‑1GH38‑1 . A0

Автоматич. выключатель

-

-

Автоматич. выключатель

-

-


1) Когда преобразователь ( < 800 A) используется без опции L26, пользователь должен применять дополнительные меры предосторожности по защите кабелей и полупроводниковых приборов. Для токов до 800 A мы рекомендуем использовать комбинированные предохранители 3NE1....

Опции

При заказе преобразователя с опциями необходимо к заказному номеру преобразователя добавить "-Z" с кодом(ами) необходимой(ых) опции(й).

Пример:
6SL3710-1GE32-1CA0-Z
+M07+D60+...

Также смотри примеры заказа.

 

Доступные опции

Заказной код

Для версии A

Для версии C

Опции со стороны входа

Сетевой фильтр для использования в первичной среде согласно EN 61 800-3, категория C2 (блоки питания TN/TT)

L00

    ✓

    –

Главный контактор (для токов < 800 A)

L13

    ✓

    –

Без сетевого дросселя в диапазоне мощности P < 500 кВт (скоро в наличие)

L22

    ✓

    ✓

Сетевой дроссель 2% может потребоваться для P > 500 кВт

L23

    ✓

    ✓

Главный ключ управления (включая плавкие вставки/автоматические выключатели)

L26

    ✓

    –

Экранированная шина EMC 1)
(подключение кабеля снизу)

M70

    ✓

    ✓

Шина PE 1)
(подключение кабеля снизу)

M75

    ✓

    ✓

Опции со стороны выхода

Синусоидальный фильтр (по запросу, только для преобразователей до 200 кВт, от 380 В до 480 В)

L15

    ✓

    –

Экранированная шина EMC 1)
(подключение кабеля снизу)

M70

    ✓

    ✓

Шина PE 1)
(подключение кабеля снизу)

M75

    ✓

    ✓

Защита двигателя и функции безопасности

Кнопка АВАРИЙНОГО ОСТАНОВА на двери шкафа

L45

    ✓

    –

АВАРИЙНЫЙ ОСТАНОВ категория 0, 230 В AC или 24 В DC, нерегулируемый останов

L57

    ✓

    –

АВАРИЙНЫЙ ОСТАНОВ категория 1, 230 В AC, регулируемый останов 2)

L59

    ✓

    –

АВАРИЙНЫЙ ОСТАНОВ категория 1, 24 В DC, регулируемый останов 2)

L60

    ✓

    –

Термисторное устройство защиты двигателя с утверждением PTB (аварийный сигнал)

L83

    ✓

    –

Термисторное устройство защиты двигателя с утверждением PTB (выключение)

L84

    ✓

    –

Анализирующее устройство PT100 (для шести датчиков PT100)

L86

    ✓

    –

Контроль изоляции

L87

    ✓

    –

Дополнительная защита от вибраций

M60

    ✓

    ✓

Повышение класса защиты

Класс защиты IP21

M21

    ✓

    ✓

Класс защиты IP23

M23

    ✓

    ✓

Класс защиты IP54

M54

    ✓

    ✓

Механические опции

Цоколь, высота 100 мм, RAL 7022

M06

    ✓

    ✓

Область подключения кабелей, высота 200 мм, RAL 7035

M07

    ✓

    ✓

Подключение блока питания сверху

M13

    ✓

    –

Подключение двигателя сверху

M78

    ✓

    –

Монтаж кранового транспорта, расположенный сверху, для шкафов

M90

    ✓

    ✓

Другие опции

Расширение клеммных коробок заказчика TM31

G61

    ✓

    –

Сенсорный модуль SMC30, встроенный в шкаф, для определения актуальной скорости двигателя (скоро в наличие)

K50

    ✓

    –

Подключение внешнего дополнительного оборудования (управляется макс. 10 A)

L19

    ✓

    –

Освещение шкафа со вспомогательной розеткой

L50

    ✓

    –

Система обогрева против образования конденсата для шкафа

L55

    ✓

    –

Тормозное устройство 100 кВт

L61

    ✓

    –

Тормозное устройство 200 кВт

L62

    ✓

    –

Специальная окраска шкафа 3)

Y09

    ✓

    ✓

Языки

Документация на английском/французском

D58

    ✓

    ✓

Документация на английском/испанском

D60

    ✓

    ✓

Документация на английском/итальянском

D80

    ✓

    ✓

Табличка с техническими данными и панель оператора на английском/французском

T58

    ✓

    ✓

Табличка с техническими данными и панель оператора на английском/испанском

T60

    ✓

    ✓

Табличка с техническими данными и панель оператора на английском/итальянском

T80

    ✓

    ✓

Специальные опции для химической промышленности

Клеммная коробка NAMUR

B00

    ✓

    –

Защитное разделение для питания 24 В (PELV)

B02

    ✓

    –

Отдельный выход для дополнительных внешних устройств (нерегулируемый)

B03

    ✓

    –

Приемочные проверки преобразователя в присутствие заказчика

Визуальный осмотр

F03

    ✓

    ✓

Проверка работы преобразователя без подключенного двигателя

F71

    ✓

    ✓

Проверка работы преобразователя с двигателем испытательного стенда (без нагрузки)

F75

    ✓

    ✓

Проверка изоляции преобразователя

F77

    ✓

    ✓

Особые приемочные проверки преобразователя, требуемые заказчиком (по запросу)

F97

    ✓

    ✓

   ✓

возможно

 

 

   –

невозможно

 

 


 

1) Эти опции перечислены как для входных, так и для выходных опций, но нужны только в одном случае.

2) этой опцией нужно учитывать требования к останову привода. Может потребоваться дополнительное устройство торможения.

3) Для заказного кода Y.. необходимы данные открытым текстом.

 

Необходимо соблюдать матрицу выбора относительно комбинации опций.

 

Матрица выбора опций

Некоторые опции взаимно исключают друг друга.

Электрические опции

 

 

L00

L13

L15

L19

L22

L23

L26

L45

L50

L55

L57

L59

L60

L61

L62

L83

L84

L86

L87

L00

   x

   ✓

   ✓

   ✓

   –

   1)

   ✓

   ✓

   ✓

   ✓

   ✓

   ✓

   ✓

   ✓

   ✓

   ✓

   ✓

   ✓

   –

L13

   ✓

   x

   ✓

   ✓

   ✓

   ✓

   2)

   ✓

   ✓

   ✓

   3)

   3)

   3)

   ✓

   ✓

   ✓

   ✓

   ✓

   ✓

L15

   ✓

   ✓

   x

   ✓

   ✓

   ✓

   ✓

   ✓

   ✓

   ✓

   ✓

   ✓

   ✓

   ✓

   ✓

   ✓

   ✓

   ✓

   ✓

L19

   ✓

   ✓

   ✓

   x

   ✓

   ✓

   ✓

   ✓

   ✓

   ✓

   ✓

   ✓

   ✓

   ✓

   ✓

   ✓

   ✓

   ✓

   ✓

L22

   –

   ✓

   ✓

   ✓

   x

   –

   ✓

   ✓

   ✓

   ✓

   ✓

   ✓

   ✓

   ✓

   ✓

   ✓

   ✓

   ✓

   ✓

L23

   1)

   ✓

   ✓

   ✓

   –

   x

   ✓

   ✓

   ✓

   ✓

   ✓

   ✓

   ✓

   ✓

   ✓

   ✓

   ✓

   ✓

   ✓

L26

   ✓

   2)

   ✓

   ✓

   ✓

   ✓

   x

   ✓

   ✓

   ✓

   3)

   3)

   3)

   ✓

   ✓

   ✓

   ✓

   ✓

   ✓

L45

   ✓

   ✓

   ✓

   ✓

   ✓

   ✓

   ✓

   x

   ✓

   ✓

   ✓

   ✓

   ✓

   ✓

   ✓

   ✓

   ✓

   ✓

   ✓

L50

   ✓

   ✓

   ✓

   ✓

   ✓

   ✓

   ✓

   ✓

   x

   ✓

   ✓

   ✓

   ✓

   ✓

   ✓

   ✓

   ✓

   ✓

   ✓

L55

   ✓

   ✓

   ✓

   ✓

   ✓

   ✓

   ✓

   ✓

   ✓

   x

   ✓

   ✓

   ✓

   ✓

   ✓

   ✓

   ✓

   ✓

   ✓

L57

   ✓

   3)

   ✓

   ✓

   ✓

   ✓

   3)

   ✓

   ✓

   ✓

   x

   –

   –

   ✓

   ✓

   ✓

   ✓

   ✓

   ✓

L59

   ✓

   3)

   ✓

   ✓

   ✓

   ✓

   3)

   ✓

   ✓

   ✓

   –

   x

   –

   ✓

   ✓

   ✓

   ✓

   ✓

   ✓

L60

   ✓

   3)

   ✓

   ✓

   ✓

   ✓

   3)

   ✓

   ✓

   ✓

   –

   –

   x

   ✓

   ✓

   ✓

   ✓

   ✓

   ✓

L61

   ✓

   ✓

   ✓

   ✓

   ✓

   ✓

   ✓

   ✓

   ✓

   ✓

   ✓

   ✓

   ✓

   x

   –

   ✓

   ✓

   ✓

   ✓

L62

   ✓

   ✓

   ✓

   ✓

   ✓

   ✓

   ✓

   ✓

   ✓

   ✓

   ✓

   ✓

   ✓

   –

   x

   ✓

   ✓

   ✓

   ✓

L83

   ✓

   ✓

   ✓

   ✓

   ✓

   ✓

   ✓

   ✓

   ✓

   ✓

   ✓

   ✓

   ✓

   ✓

   ✓

   x

   ✓

   ✓

   ✓

L84

   ✓

   ✓

   ✓

   ✓

   ✓

   ✓

   ✓

   ✓

   ✓

   ✓

   ✓

   ✓

   ✓

   ✓

   ✓

   ✓

   x

   ✓

   ✓

L86

   ✓

   ✓

   ✓

   ✓

   ✓

   ✓

   ✓

   ✓

   ✓

   ✓

   ✓

   ✓

   ✓

   ✓

   ✓

   ✓

   ✓

   x

   ✓

L87

   –

   ✓

   ✓

   ✓

   ✓

   ✓

   ✓

   ✓

   ✓

   ✓

   ✓

   ✓

   ✓

   ✓

   ✓

   ✓

   ✓

   ✓

   x

  ✓

Возможные комбинации

  –

Комбинация не возможна


1) Для преобразователей < 500 кВт/700 л.с., сетевой дроссель (заказной код L23)поставляется с преобразователем.

Для преобразователей > 500 кВт/700 л.с., также необходимо заказывать опцию L23, если
• преобразователи будут работать с источниками питания с высокой емкостью короткого замыкания (RSC > 20) (смотри информацию по проектированию) или

• если используется сетевой фильтр (опция L00).

2) Комбинация L13/L26 возможна только для токов < 800 A.
Начиная с 800 A, используются автоматические выключатели. Они обеспечивают ту же функцию, что и опции L13 и L26.

3) Необходима опция L13 или для токов > 800 A, опция L26 (автоматический выключатель). Тормозные устройства также могут потребоваться в зависимости от необходимого времени останова привода.

 

Механические/электрические опции

 

 

L00

M06

M07

M13

M21

M23

M54

M60

M70

M75

M78

M90

L00

   x

   ✓

   ✓

   ✓

   ✓

   ✓

   ✓

   ✓

   4)

   ✓

   –

   ✓

M06

   ✓

   x

   –

   ✓

   ✓

   ✓

   ✓

   ✓

   ✓

   ✓

   ✓

   ✓

M07

   ✓

   –

   x

   ✓

   ✓

   ✓

   ✓

   ✓

   ✓

   ✓

   ✓

   ✓

M13

   ✓

   ✓

   ✓

   x

   –

   ✓

   ✓

   –

   5)

   5)

   ✓

   ✓

M21

   ✓

   ✓

   ✓

   –

   x

   –

   –

   6)

   ✓

   ✓

   –

   ✓

M23

   ✓

   ✓

   ✓

   ✓

   –

   x

   –

   –

   ✓

   ✓

   ✓

   ✓

M54

   ✓

   ✓

   ✓

   ✓

   –

   –

   x

   –

   ✓

   ✓

   ✓

   ✓

M60

   ✓

   ✓

   ✓

   –

   6)

   –

   –

   x

   ✓

   ✓

   –

   ✓

M70

   4)

   ✓

   ✓

   5)

   ✓

   ✓

   ✓

   ✓

   x

   ✓

   5)

   ✓

M75

   ✓

   ✓

   ✓

   5)

   ✓

   ✓

   ✓

   ✓

   ✓

   x

   5)

   ✓

M78

   –

   ✓

   ✓

   ✓

   –

   ✓

   ✓

   –

   5)

   5)

   x

   ✓

M90

   ✓

   ✓

   ✓

   ✓

   ✓

   ✓

   ✓

   ✓

   ✓

   ✓

   ✓

   x

  ✓

Возможная комбинация

  –

Комбинация не возможна


4) Опция L00 включает опцию M70.

5) Если подключение сети (опция M13) ) и подключение двигателя (опция M78) находятся сверху, то экранированная шина ЭМС и шина PE не нужны в небольшом пространстве шкафа.

6) Может быть выбрана только для преобразователей в диапазоне напряжения 400 В до 250 кВт и 690 В до 315 кВт. Опция M60 поставляется как стандарт для большей выходной мощности.

 

Данные с таблички

 

 

T58

T60

T80

T58

   x

   –

   –

T60

   –

   x

   –

T80

   –

   –

   x

  –

Комбинация не возможна


 

 

Примеры заказа

Пример 1

Задача:
Преобразователь, встроенный в шкаф, необходим для управления скоростью вентилятора для привода вентилятора 380 кВт для подключения к имеющемуся выходному контуру MCC 400 В. Номинальная скорость вентилятора 975 об/мин. Вследствие окружающих условий преобразователь должен быть монтирован на плинтус шкафа 100 мм, а класс защиты должен быть IP54. Высота монтажа < 1000 м над уровнем моря, а окружающая температура 45 °C.

Решение:
Из-за имеющегося выходного контура MCC можно не использовать сетевые компоненты подключения, такие как главный выключатель, главный контактор и сетевые плавкие вставки, и можно выбрать незанимающую много места версию C. Для такой комбинации, учитывая коэффициенты снижения номинальных характеристик для класса защиты IP54 и для окружающей температуры, нужно выбрать преобразователь, встроенный в шкаф 450 кВт, 400 В с опциями
M06 (плинтус шкафа 100 мм) и
M54 (класс защиты IP54).

Заказной номер:
6SL3710-1GE38-4CA0-Z
+M06 + M54

 

Пример 2

Задача:
Насос 280 кВт для управления выравниванием давления питается через преобразователь для новой насосной станции централизованного теплоснабжения. Имеется источник питания 690 В. Высота установки 350 м над уровнем моря, а окружающая температура 40 °C. Номинальная скорость насоса 740 об/мин. блок насоса и двигатель расположены в подстанции без постоянного обслуживающего персонала, поэтому температура обмотки двигателя контролируется резистивными термометрами PT100 и анализируется преобразователем. Цвет преобразователя, встроенного в шкаф, должен быть RAL 3002.

Решение:
Выберите преобразователь, встроенный в шкаф, 315 кВт, 690 В, версия A со следующими опциями:
L26 (главный выключатель с плавкими вставками),
L13 (главный контактор),
L86 (анализирующее устройство PT100) и
Y09 (специальная окраска шкафа)

Заказной номер:
6SL3710-1GH33-3AA0-Z
+L26 + L13 + L86 + Y09
Цвет шкафа RAL 3002

 

 

Описание опций

 

B00, B02, B03
Опции в соответствие с требованиями NAMUR

Список исключений относительно других опций:

Нужно учитывать следующие ограничения и исключения вследствие использования клеммного модуля NAMUR B00 относительно других доступных опций.

 

Недопустимо с опцией

Причина

L45, L57,
L59, L60

АВАРИЙНЫЙ ОСТАНОВ категория 0 уже включен в версию NAMUR.
Доступ к принудительному размыканию электропитания на клеммах -A1-X2: 17, 18..

L83, L84

Опция B00 уже обеспечивает термисторное анализирующее устройство PTC (отключение) в качестве стандартной конфигурации.

L19

Опцию B03 можно выбрать в качестве альтернативы.
Это обеспечит уменьшение объема поставки внешних дополнительных устройств.

L87

Система контроля изоляции контролирует всю сеть, подключенную электрически. Поэтому система контроля изоляции должна быть со стороны производственного оборудования.


 

С опциями L50, L55, L86, подключение описано в стандартной конфигурации. К клеммному модулю NAMUR электропроводки нет.

 

B00
Клеммный модуль NAMUR

Клеммный модуль сконструирован в соответствие с требованиями и директивами ассоциации по вопросам стандартизации в области измерения и управления в химической промышленности (рекомендации NAMUR NE37), т.е. фиксированные клеммы назначены для определенных функций устройств. Входы и выходы, подключенные к клеммам, соответствуют требованиям "Защитное экстра-низкое напряжение PELV".

Клеммный модуль и соответствующие функции уменьшены до необходимого количества. В сравнении с рекомендациями NAMUR опционные клеммы не перечислены.

 

Клемма
‑A1‑X2:

Значение

Предварительное распределение

Комментарий

10

DI

ON (динамичный) /
ON/OFF (статичный)

Эффективный режим можно закодировать с помощью перемычки на клемме -A1-400:9; 10.

11

DI

OFF (динамичный)

 

12

DI

Быстрее

 

13

DI

Медленнее

 

14

DI

RESET

 

15

DI

Блокировка

 

16

DI

Против часовой стрелки

сигнал "0" для чередования фаз по часовой стрелке
сигнал "1" для чередования фаз против часовой стрелки

17, 18

 

Разъединение PS

Последовательность АВАРИЙНОГО ОСТАНОВА

30, 31

 

Готов к запуску

Релейный выход (нормально разомкнутый контакт)

32, 33

 

Двигатель вращается

Релейный выход (нормально разомкнутый контакт)

34

DO (NO)

Ошибка

Релейный выход (переключающий контакт)

35

DO (COM)

36

DO (NC)

50, 51

AI
0/4‑20 мA

Установка скорости

 

60, 61

AO
0/4‑20 мA

Частота двигателя

 

62, 63

AO
0/4‑20 мA

Ток двигателя

Ток двигателя является установкой по умолчанию; его можно перепрограммировать на другие переменные


 

Питание 24 В обеспечивается со стороны пользователя через клеммы -A1-X2:1-3 (замкнут накоротко внутри преобразователя при 1 A). Нужно проверить, чтобы выполнялись требования к безопасности "Защитное экстра-низкое напряжение PELV.

 

Клемма
‑A1‑X2:

Значение

 

1

M

Базовая жила

2

P24

Входное питание DC 24 В

3

P24

Выходной контур DC 24 В


 

Для контроля температуры взрывозащищенных двигателей опция B00 содержит термистор PTC с допуском PTB. Отключение производится при достижении предела. Соответствующий датчик PTC подключен к клемме -A1-X3:90, 91.

 

Клемма
‑A1‑X3:

Значение

 

90, 91

AI

Подключение датчика PTC


 

B02
Защитное разъединение для питания 24 В (PELV)

Если защитное разъединение для питания 24 В (PELV) отсутствует со стороны пользователя, то эта опция используется для установки второго блока питания для обеспечения PELV (распределение клемм как для опции B00, питание 24 В на клеммах -A1-X1:1, 2 , пропущенные).

Внимание: Опция B02 возможна только с опцией B00.

 

B03
Отдельный выход для дополнительных внешних устройств (нерегулируемый)

Если вентилятор двигателя питается со стороны производственного оборудования, то опция B03 обеспечивает нерегулируемый внешний выход, замкнутый накоротко при 10 A. Пока питающее напряжение присутствует на входе преобразователя, напряжение также подается на эти клеммы в соответствие с входным напряжением преобразователя (VPS). Это необходимо учитывать при проектировании внешних вентиляторов.

 

Клемма
‑A1‑X1:

Значение

1, 2, 3, PE

Выход для двигателя внешнего вентилятора


 

Внимание: Опция B03 возможна только с опцией B00.

 

F03, F71, F75, F77, F97
Приемочные проверки преобразователя в присутствие заказчика

 

Заказной код

Описание

F03

Визуальный осмотр

В объем приемочной проверки входят:

  • Проверка класса защиты
  • Проверка оборудования (компонентов)
  • Проверка идентификатора оборудования
  • Проверка безопасного расстояния и длины пути утечки
  • Проверка кабелей
  • Проверка документации заказчика
  • Предоставление отчета о приемке

Проверки осуществляются при отключенном от питания преобразователе.

F71

Функциональная проверка преобразователя  без подключенного двигателя

В объем приемочной проверки входят:

  • Визуальный осмотр, как описано для опции F03
  • Проверка электропитания
  • Проверка устройств защиты контроля (моделирование)
  • Проверка вентиляторов
  • Проверка предварительной зарядки
  • Функциональная проверка без подключенного двигателя
  • Предоставление отчета о приемке

После визуального осмотра выключенного преобразователя  он подключается к номинальному напряжению. На выходе преобразователя тока нет.

F75

Функциональная проверка преобразователя с двигателем испытательного стенда (без нагрузки)

В объем приемочной проверки входят:

  • Визуальный осмотр, как описано для опции F03
  • Проверка электропитания
  • Проверка устройств защиты контроля (моделирование)
  • Проверка вентиляторов
  • Проверка предварительной зарядки
  • Функциональная проверка с двигателем испытательного стенда (без нагрузки)
  • Предоставление отчета о приемке

После визуального осмотра выключенного преобразователя  он подключается к номинальному напряжению. На выходе преобразователя подается низкий ток для работы двигателя испытательного стенда (без нагрузки).

F77

Проверка изоляции преобразователя

В объем приемочной проверки входят:

  • Испытание высоким напряжением
  • Измерение сопротивления изоляции

F97

Особые приемочные проверки преобразователя, требуемые заказчиком (по запросу)

Если нужны испытания, не входящие в опции F03, F71, F75 или F77, то можно по запросу заказать особые приемочные проверки /дополнительные испытания посредством заказного кода F97 и следующие технические пояснения.


 

G61
Расширение клеммного модуля заказчика TM31

В стандартной версии шкафы с преобразователями SINAMICS S150 уже включают в себя интерфейсный модуль (клеммный модуль TM3). С помощью второго модуля можно расширить количество имеющихся цифровых и аналоговых входов/выходов внутри системы привода.

 

K50
Сенсорный модуль SMC30, встроенный в шкаф, для определения актуальной скорости двигателя (скоро в наличии)

Модуль датчика SMC30 может использоваться для записи актуальной скорости двигателя. Здесь сигналы с импульсного датчика угловых перемещений преобразуются и становятся доступными для оценки через интерфейс DRIVE-CLiQ на контроллере.

SMC30 поддерживает следующие датчики:

  • Датчики TTL
  • Датчики HTL

 

L00
Сетевой фильтр для использования в первичной среде, категория C2 (источники питания TN/TT)

Для ограничения возникающих помех преобразователи привода оборудуются в стандартной фильтрами поглощения радиопомех, которые соответствуют лимитам категории C3. опциональные фильтры имеются для использования в первичной среде (категория C2).

Преобразователи привода соответствуют требованиям помехозащищенности согласно EN 61800 3 для вторичной среды, а значит и для меньших требований помехозащищенности в первичной среде.

Вместе с сетевым дросселем сетевые фильтры уменьшают напряжение радиопомех на преобразователе. Опция L23 должна заказываться в дополнении к выходной мощности преобразователя > 500 кВт.

Для подключения экрана силовых кабелей в соответствие с требованиями ЭМС на заводе к входу и выходу преобразователя крепится дополнительная шина экрана ЭМС (опция M70). ). В этом случае дополнительный заказ не нужен.

 

L13
Главный контактор (для токов < 800 A)

Преобразователи привода SINAMICS G150, встроенные в шкаф, в стандартной конфигурации поставляются без сетевого контактора. Опция L13 нужна, если для отключения шкафа от питания (необходимо для АВАРИЙНОГО ОСТАНОВА) необходим переключающий элемент. Контактор питается внутри преобразователя.

 

Клемма
‑X50:

Значение

4

Контакт квитирования (нормально разомкнутый контакт) Контактор замкнут

5

Контакт квитирования (нормально замкнутый контакт) Контактор замкнут

6

Соединение


 

L15
Синусоидальный фильтр (по запросу)

Синусоидальные фильтры имеются для диапазона напряжения от 380 В до 480 В для выхода преобразователя до 200 кВт.

Синусоидальный фильтр на выходе преобразователя подает почти синусоидальное напряжение на двигатель, поэтому можно использовать стандартные двигатели без специальных кабелей и без какого-либо уменьшения мощности. Можно использовать стандартные кабели. Макс. длина кабеля двигателя ограничена до 300 м.

Внимание: В связи с опцией L15 нужно увеличить частоту преобразователя. Это уменьшит выход преобразователя (коэффициент снижения номинальных параметров 0.88). Коэффициент регулирования для выходного напряжения снижается прибл. до 90%. Необходимо заменить, что уменьшенное напряжение на клеммах двигателя в сравнении с номинальным напряжением двигателя означает, что двигатель переключается на режим ослабления поля раньше.

 

L19
Подключение для дополнительных внешних устройств

Выходной контур, замкнутый накоротко макс. при 10 A, для дополнительного внешнего оборудования (например, отдельно работающий вентилятор двигателя).

Напряжение отводится на входе преобразователя до главного контактора/автоматического выключателя, и поэтому равно питающему напряжению.

Переключение выходного контура можно регулировать внутри посредством преобразователя или извне.

 

Клемма
‑X155:

Значение

Диапазон

1

L1

AC 380 В до 690 В

2

L2

AC 380 V до 690 В

3

L3

AC 380 V дo 690 В

11

Контакторное управление

AC 230 В

12

Контакторное управление

AC 230 В

13

Квитирование автоматического выключателя

AC 230 В/0.5 A;
DC 24 В/2 A

14

Квитирование автоматического выключателя

AC 230 В/0.5 A;
DC 24 В/2 A

15

Квитирование контактора

AC 230 В/6 A

16

Квитирование контактора

AC 230 В/6 A

PE

PE

 


 

L22
Без сетевого дросселя

Если преобразователь питается через отдельный трансформатор или если отношение между мощностью короткого замыкания сети в точке подключения и номинальной выходной мощностью преобразователя небольшое, то для преобразователей < 500 кВт можно обойтись без сетевого дросселя, поставляемого в стандартной конфигурации (миотри информацию по проектированию). Однако, такой сетевой дроссель необходим, если используется сетевой фильтр (опция L00).

 

L23
Сетевой дроссель uK = 2%

Преобразователи до 500 кВт в стандартной конфигурации имеют сетевой дроссель. Для выходной мощности преобразователя > 500 кВт сетевой дроссель (uK = 2%) предлагается как опция т.к. в этом диапазоне выходной мощности преобразователи часто модключаются к системе питания среднего напряжения через трансформаторы, которые подходят для выходной мощности преобразователя.

 

L26
Главный управляющий выключатель (включая плавкие вставки/автоматические выключатели)

До 800 A выключатель-разъединитель с внешне расположенными плавкими вставками используется как главный управляющий выключатель. При токах свыше 800 A автоматические выключатели как стандартные рычаги управления выполняют функцию развязки по цепи питания. Питание для автоматических выключателей подается от преобразователя.

 

Клемма
‑X50:

Значение

1

Квитирующий контакт (нормально разомкнутый контакт)
Главный управляющий выключатель/автоматический выключатель замкнут

2

Квитирующий контакт (нормально замкнутый контакт)
Главный управляющий выключатель/автоматический выключатель замкнут

3

Подключение 


 

L45
Кнопка АВАРИЙГОГО ОСТАНОВА на двери шкафа

Кнопка АВАРИЙНОГО ОСТАНОВА с защитным ободком крепится на двери шкафа преобразователя, а ее контакты подключаются к клеммной коробке. Функции АВАРИЙНОГО ОСТАНОВА категории 0 или 1 могут быть активированы вместе с опциями L57, L59 и L60.

 

Клемма
‑X120:

Значение

1

Квитирующий контакт от кнопки АВАРИЙНОГО ОСТАНОВА на двери шкафа

2

Квитирующий контакт от кнопки АВАРИЙНОГО ОСТАНОВА на двери шкафа

3

Квитирующий контакт от кнопки АВАРИЙНОГО ОСТАНОВА на двери шкафа *)

4

Квитирующий контакт от кнопки АВАРИЙНОГО ОСТАНОВА на двери шкафа **)


*) Используется внутри преобразователя с опциями от L57 дo L60

 

L50
Освещение шкафа со вспомогательной розеткой

Для каждого элемента шкафа инсталлирована универсальная лампа со встроенной вспомогательной розеткой.

Электропитание (на клеммном модуле -X390) для освещения шкафа и розетки должно обеспечиваться извне и замыкаться накоротко макс. при 10 A. Освещение шкафа включается вручную с помощью переключателя или автоматически посредством встроенного датчика движения. Режим - переключаемый.

 

Клемма
‑X390:

Значение

1

L1 (230 В AC)

2

N

3

PE


 

L55
Система обогрева против образования конденсата для шкафа

Система обогрева против образования конденсата рекомендуется при низкой окружающей температуре и высоком уровне влажности для предотвращения образования конденсата. Каждая панель шкафа оборудована одним нагревателем 100 Ватт (в случае, если панель шкафа имеет ширину от 800 мм до 1200 мм, то она оборудуется двумя обогревателями).

Электропитание для нагревателя (AC 110 В до 230 В, на клеммном модуле -X240) должно обеспечиваться извне и замыкаться накоротко макс. при 16 A.

 

Клемма
‑X240:

Значение

1

L1 (110 В дo 230 В AC )

2

N

3

PE


 

L57
АВАРИЙНЫЙ ОСТАНОВ категории 0 (AC 230 В или DC 24 В)

АВАРИЙНЫЙ ОСТАНОВ категории 0 для нерегулируемого останова согласно EN 60204.

Функция включает в себя отключение напряжения на выходе преобразователя посредством сетевого контактора с развязкой микропроцессорного контроллера с помощью безопасной комбинации согласно EN 60204 1. Двигатель вращается по инерции. При поставке контур кнопки предустановлен на AC 230 V. Перемычки нужно устанавливать при DC 24 В.

Внимание: Опция L57 всегда предполагает, что преобразователь может быть электрически изолирован от питания; т.е. опция L13 для токов преобразователя ≤ 800 A и опция L26 для токов преобразователя > 800 A.

 

Клемма
‑X120:

Значение

7

Устройство параллельных цепей на кнопке АВАРИЙНОГО ОСТАНОВА со стороны системы; удалить перемычки 7-8!

8

Устройство параллельных цепей на кнопке АВАРИЙНОГО ОСТАНОВА со стороны системы; удалить перемычки 7-8!

15

"On" для контролируемого запуска; удалить перемычки 15-16!

16

"On" для контролируемого запуска; удалить перемычки 15-16!

17

Квитирование "Запуск безопасной комбинации"

18

Квитирование "Запуск безопасной комбинации"


 

L59
АВАРИЙНЫЙ ОСТАНОВ категории 1 (AC 230 В)

АВАРИЙНЫЙ ОСТАНОВ категории 1 для регулируемого останова согласно EN 60204.

Функция включает в себя быстрое отключение привода посредством быстрого останова с использованием линейно изменяющегося сигнала торможения, который программируется пользователем. Далее следует отключение напряжения, как описано для АВАРИЙНОГО ОСТАНОВА категории 0.

Для достижения необходимого времени выключения может потребоваться тормозное устройство.

Внимание: Опция L59 всегда предполагает, что преобразователь может быть электрически изолирован от питания; т.е. опция L13 для токов преобразователя ≤ 800 A и опция L26 для токов преобразователя > 800 A.

 

Клемма
‑X120:

Значение

7

Устройство параллельных цепей на кнопке АВАРИЙНОГО ОСТАНОВА со стороны системы; удалить перемычки 7-8!

8

Устройство параллельных цепей на кнопке АВАРИЙНОГО ОСТАНОВА со стороны системы; удалить перемычки 7-8!

15

"On" для контролируемого запуска; удалить перемычки 15-16!

16

"On" для контролируемого запуска; удалить перемычки 15-16!

17

Квитирование "Запуск безопасной комбинации"

18

Квитирование "Запуск безопасной комбинации"


 

L60
АВАРИЙНЫЙ ОСТАНОВ категории 1 (DC 24 В)

АВАРИЙНЫЙ ОСТАНОВ категории 1 для регулируемого останова согласно EN 60204.

Функция включает в себя быстрый останов привода с использованием линейно изменяющегося сигнала торможения, который программируется пользователем. Далее следует отключение напряжения, как описано для АВАРИЙНОГО ОСТАНОВА категории 0.

Для достижения необходимого времени выключения может потребоваться тормозное устройство.

Внимание: Опция L60 всегда предполагает, что преобразователь может быть электрически изолирован от питания; т.е. опция L13 для токов преобразователя ≤ 800 A и опция L26 для токов преобразователя > 800 A.

 

Клемма
‑X120:

Значение

7

Устройство параллельных цепей на кнопке АВАРИЙНОГО ОСТАНОВА со стороны системы; удалить перемычки 7-8!

8

Устройство параллельных цепей на кнопке АВАРИЙНОГО ОСТАНОВА со стороны системы; удалить перемычки 7-8!

15

"On" для контролируемого запуска; удалить перемычки 15-16!

16

"On" для контролируемого запуска; удалить перемычки 15-16!

17

Квитирование "Запуск безопасной комбинации"

18

Квитирование "Запуск безопасной комбинации"


 

L61, L62
Устройства торможения

Для приводов, позволяющих рекуперативное торможение, может потребоваться использование тормозных устройств.

Устройство торможения включает в себя два компонента: тормозной модуль, встроенный в шкаф преобразователя, и тормозной резистор, который должен быть обеспечен извне (класс защиты IP20). Устройство торможения работает как автономное устройство и не требует внешнего электропитания. Во время процесса торможения кинетическая энергия преобразуется в тепло во внешне установленном тормозном резисторе. Между тормозным модулем и тормозным резистором допустима макс. длина кабеля 50 м. Поэтому возможен отвод тепла наружу помещения с преобразователем. Тормозной резистор подключен к клеммному модулю -X5 на шкафе с преобразователем:

 

Клемма
‑X5:

Значение

1

Подключение тормозного резистора

2

Подключение тормозного резистора


 

Опция

Тормозное усилие

Преобразователь привода, встроенный в шкаф

 

P 20

380 V to 480 V

660 В дo 690 В

L61

100 кВт

110 кВт дo 132 кВт

75 кВт дo 132 кВт

L62

200 кВт

160 кВт дo 560 кВт

160 кВт дo 800 кВт


P 20: Допустимая выходная мощность для периода 20 с, время цикла 90 с

Если необходимо большее тормозное усилие в дополнении к перечисленным здесь тормозным устройствам, то можно параллельно подключить тормозные устройства для большей выходной мощности преобразователя. В этом случае модуль торможения привязывается к каждому тормозному резистору. Тормозные устройства по запросу могут быть подключены праллельно.

 

L83
Термисторное устройство защиты двигателя (аварийный сигнал)

Термисторное устройство защиты двигателя (с допуском PTB) для термисторных датчиков PTC (тип A) для вывода аварийного сигнала. Электропитание для термисторного устройства защиты двигателя и оценки подается от преобразователя.

 

Клемма
‑F127:

Значение

T1

Подключение контура датчика

T2

Подключение контура датчика


 

L84
Термисторное устройство защиты двигателя (отключение)

Термисторное устройство защиты двигателя (с допуском PTB) для термисторных датчиков PTC (тип A) для отключения. Электропитание для термисторного устройства защиты двигателя и оценки подается от преобразователя.

 

Клемма
‑F125:

Значение

T1

Подключение контура датчика

T2

Подключение контура датчика


 

L86
Анализирующий модуль PT100

Анализирующий модуль PT100 может контролировать до 6 датчиков. Датчики могут быть подключены с помощью двух- или трехпроводной системы. Предельные значения могут быть запрограммированы пользователем для каждого канала.

В заводской установке каналы измерения разделены на две группы по три канала. Поэтому, например, при использовании двигателей можно контролировать три PT100 в обмотках статора и два PT100 на подшипниках двигателя. Неиспользуемые каналы можно заблокировать с помощью соответствующих установок параметров.

Выходные реле встроены во внутреннее короткое замыкание и последовательность отключения преобразователя. Сигналы также могут быть получены заказчиком посредством двух резервных аварийно-сигнальных реле. Также существуют два аналоговых выхода, программируемых пользователем. (0/4 мA до 20 мA и 0/2 В до 10 В) для интеграции в главную систему управления.

 

Клемма
‑A1‑A140:

Значение

T11 дo T13

PT100; датчик 1; группа 1

T21 дo T23

PT100; датчик 2; группа 1

T31 дo T33

PT100; датчик 3; группа 1

T41 дo T43

PT100; датчик 1; группа 2

T51 дo T53

PT100; датчик 2; группа 2

T61 дo T63

PT100; датчик 3; группа 2

Датчики могут быть подключены к анализирующему модулю PT100 с помощью двух- или трехпроводной системы.

Входы Tx1 и Tx3 нужно использовать для двухпроводной системы.
При использовании трехпроводной системы нужно дополнительно подключить вход Tx2 (x = 1, 2, ..., 6)

51, 52, 54

Релейный выход
Лимит для группы 1 достигнут; (переключающий контакт)

61, 62, 64

Релейный выход

Лимит для группы 2 достигнут; (переключающий контакт)

Ground (OUT1)

Аналоговый выход OUT1; группа датчиков 1

U1 (OUT1)

Аналоговый выход OUT1; группа датчиков 1

I1 (OUT1)

Аналоговый выход OUT1; группа датчиков 1

Ground (OUT2)

Аналоговый выход OUT2; группа датчиков 2

U2 (OUT2)

Аналоговый выход OUT2; группа датчиков 2

I2 (OUT2)

Аналоговый выход OUT2; группа датчиков 2


 

L87
Контроль изоляции

Контроль изоляции нужно использовать, если преобразователь работает в сети с изолированной нейтралью. Это устройство контролирует весь электрически подключенный контур на дефекты изоляции.

В случае неисправности система контроля изоляции выдает аварийный сигнал.

Внимание: В электрически подключенной сети можно использовать только одно устройство контроля изоляции.

Концепция реакции в случае нежелательного замыкания на землю может отличаться таким образом, что выходные реле будут доступны для связи с системой управления со стороны системы. Также можно интегрировать выходы в систему контроля преобразователя со стороны оборудования.

 

Клемма
‑A1‑A101:

Значение

11

Сигнальное реле ALARM 1 базовый контакт

12

Сигнальное реле ALARM 1 нормально замкнутый контакт

14

Сигнальное реле ALARM 1 нормально разомкнутый контакт

21

Сигнальное реле ALARM 2 базовых контакта

22

Сигнальное реле ALARM 2 нормально замкнутых контакта

24

Сигнальное реле ALARM 2 нормально разомкнутых контакта

M+

Внешний дисплей кВт 0 A до 400 мкA

M-

Внешний дисплей кВт 0 A до 400 мкA

R1

Внешняя кнопка сброса (нормально замкнутый контакт или перемычка провода, иначе код ошибки не сохраняется)

R2

Внешняя кнопка сброса (нормально замкнутый контакт или перемычка провода)

T1

Внешняя кнопка проверки

T2

Внешняя кнопка проверки


 

M06
Короб для подключения кабелей высотой 200 мм, RAL 7035

Дополнительный цоколь шкафа допускает использование больших радиусов изгиба кабелей (ввод кабеля снизу) и их прокладку внутри цоколя.

Цоколь шкафа всегда окрашен в цвет RAL 7022. Возможна окраска в другой цвет. Он поставляется полностью вмонтированным в шкаф. Высота панели оператора изменяется соответственно.

 

M07
Короб для подключения кабелей высотой 200 мм, RAL 7035

Короб для подключения кабелей сделан из прочного стального листа, увеличивает гибкость для подключения кабелей (ввод снизу) и позволяет проложить кабели внутри области проводки. Он поставляется полностью вмонтированным в шкаф. Высота панели оператора изменяется соответственно.

Внимание: Короб для подключения кабелей в стандартной конфигурации окрашен в цвет RAL . Если шкаф окрашивается в другой цвет (заказной код Y09), то и короб для подключения кабелей также окрашивается в тот же цвет.

 

M13
Подключение сети сверху

Шкаф управления оборудован дополнительным отсеком для случая, если сеть будет подключаться сверху. Этот отсек содержит клеммные соединения для силовых кабелей, а также кабельный зажимный рельс для механической поддержки кабелей, экранированную шину ЭМС и рельс PE.

В этом случае высота шкафа увеличивается на 405 мм. Шины для подключения сверху поставляются полностью собранными. В целях транспортировки отсеки поставляются отдельно и должны быть установлены на месте. Можно также использовать компоновочные узлы кранового транспорта (опция M90). Однако, на месте их нужно убрать, чтобы закрепить отсек. Использование распределителей тросов рассматривается в случае небольшой высоты крюка крана.

Сверху отсека необходимо установить монтажную плату без отверстий, изготовленную из алюминия (толщина 5 мм), для ввода кабелей. В зависимости от используемого количества кабелей и их сечения на производстве необходимо сделать отверстия в этой монтажной плате для крепления кабельных сальников для ввода в кабели.

Примечание: Контрольные кабели все еще подводятся снизу. С опцией M13 поставляются дополнительные пластиковые вентиляционные решетки и фильтровальные подушки.

Отсеки имеют класс защиты IP21. Вместе с опциями M23 и M54 поставляются дополнительные пластиковые вентиляционные решетки и фильтровальные подушки.

Внимание: Отсеки в стандартной конфигурации окрашены в цвет RAL 7035. Если шкаф окрашивается в другой цвет (заказной код Y09), то и отсеки также окрашиваются в тот же цвет. Вентиляционные решетки используются с классом защиты IP23 и IP54, окрашены в цвет RAL 7035 и не могут быть перекрашены в другой цвет.

Крышки, используемые с опцией M60, входят в объем поставки.

 

M21
Класс защиты IP21

Версия шкафа с классом защиты IP20, но с дополнительной верхней крышкой или навесом. В этом случае высота шкафа увеличивается на 250 мм.

В целях транспортировки верхние крышки и навесы поставляются отдельно и должны быть вмонтированы на месте.

Внимание: Верхние крышки или навесы в стандартной конфигурации окрашены в цвет RAL 7035. Если шкаф окрашивается в другой цвет (заказной код Y09), то и верхние крышки и навесы также окрашиваются в тот же цвет.

 

M23
Класс защиты IP23

Шкафы с преобразователями с классом защиты IP23 поставляются с дополнительными отсеками и пластиковыми вентиляционными решетками в местах подачи и вывода воздуха. В этом случае высота шкафа увеличивается на 400 мм. Крышки, используемые с опцией M60, входят в объем поставки. В целях транспортировки отсеки поставляются отдельно и должны быть вмонтированы на месте.

Внимание: Отсеки в стандартной конфигурации окрашены в цвет RAL 7035. Если шкаф окрашивается в другой цвет (заказной код Y09), то и отсеки также окрашиваются в тот же цвет. Части из литьевого пластика, например, вентиляционные решетки) окрашены в цвет RAL 7035 и не могут быть перекрашены в другой цвет.

 

M54
Класс защиты  IP54

Шкафы с преобразователями с классом защиты IP23 поставляются с дополнительными отсеками, пластиковыми вентиляционными решетками и фильтрующим материалом в местах подачи и вывода воздуха. В этом случае высота шкафа увеличивается на 400 мм. Крышки, используемые с опцией M60, входят в объем поставки. Они являются стандартной частью направляющих с поддувом внутри шкафа и адаптированы соответствующим образом. Уход за фильтрами осуществляется в соответствие с местными окружающими условиями.

В целях транспортировки отсеки поставляются отдельно и должны быть вмонтированы на месте.

Внимание: С классом защиты IP54 необходимо учитывать коэффициент снижения номинальных параметров для выходного тока.

Внимание: Отсеки в стандартной конфигурации окрашены в цвет RAL 7035. Если шкаф окрашивается в другой цвет (заказной код Y09), the то и отсеки также окрашиваются в тот же цвет. Части из литьевого пластика, например, вентиляционные решетки) окрашены в цвет RAL 7035 и не могут быть перекрашены в другой цвет.

 

M60
Дополнительная защита от вибрации

Шкафы с преобразователями в стандартной конфигурации сконструированы согласно BGV A2. Опция M60 предлагает дополнительные крышки (вне досягаемости) около рельсов AC и над силовой частью (можно выбрать только как опцию для преобразователей до 250 кВт в диапазоне 400 В и до 315 кВт в диапазоне 690 В с классом защиты IP20 и IP21; иначе присутствует как стандарт).

 

M70
Экранированная шина ЭМС (подключение кабеля снизу)

Экранированная шина ЭМС используется для подключения экранированных силовых кабелей для подачи питания и электропитания двигателя. Экранированная шина ЭМС в стандартной конфигурации поставляется с опцией L00 (сетевой фильтр).

 

M75
Шина PE (подключение кабеля снизу)

Шина PE используется для прокладки жилы PE для питающих и силовых кабелей двигателя.

Она может быть заказана как опция для преобразователей с низкой выходной мощностью и токами I < 700 A. Шина PE поставляется в стандартной конфигурации для выходных токов I > 700 A или грапп шкафов, состоящих из нескольких панелей шкафа.

 

M78
Подключение двигателя сверху

Шкаф управления поставляется с дополнительным отсеком для подключения двигателя сверху. В отсеке находятся перемычки для силовых кабелей, прижимная планка для механического крепления кабелей, экранированная шина ЭМС и шина PE.

В этом случае высота шкафа увеличивается на 405 мм. Шины для подключения сверху поставляются полностью собранными. В целях транспортировки отсеки поставляются отдельно и должны быть вмонтированы на месте. Можно также использовать компоновочные узлы кранового транспорта (опция M90). Однако, на месте их нужно убрать, чтобы закрепить отсеки.

Сверху отсека необходимо установить монтажную плату без отверстий, изготовленную из алюминия (толщина 5 мм), для ввода кабелей. В зависимости от используемого количества кабелей и их сечения на производстве необходимо сделать отверстия в этой монтажной плате для крепления кабельных сальников для ввода в кабели.

Примечание: Контрольные кабели все еще подводятся снизу. С опцией M78 перемычки, представленные как стандарт для подключения двигателя снизу, отсутствуют.

Отсеки имеют класс защиты IP21. Вместе с опциями M23 и M54 поставляются дополнительные пластиковые вентиляционные решетки и фильтровальные подушки.

Внимание: Отсеки в стандартной конфигурации окрашены в цвет RAL 7035. Если шкаф окрашивается в другой цвет (заказной код Y09), то и отсеки также окрашиваются в тот же цвет. Вентиляционные решетки используются с классом защиты IP23 и IP54, окрашены в цвет RAL 7035 и не могут быть перекрашены в другой цвет.

Крышки, используемые с опцией M60, входят в объем поставки.

 

M90
Компоновочные узлы кранового транспорта для шкафов, монтируемые сверху

В случае наличия отдельных шкафов шириной до 600 мм компоновочные узлы кранового транспорта имеют транспортные рым-болты. При наличии шкафов шириной 800 мм или более используются транспортные рельсы.

 

Y09
Специальная окраска шкафа

Шкафы с преобразователями в стандартной конфигурации окрашены в цвет RAL 7035. Специальную окраску необходимо указать открытым текстом при заказе. Можно выбрать все цвета RAL, которые являются порошковыми покрытиями. Если для шкафов с преобразователями нужны такие опции, как короб для подключения кабелей (заказной код M07), top верхние крышки или навесы (заказной код M21), отсеки (заказные коды M23/M54) или подключение кабелей сверху (заказные коды M13/M78), то они поставляются в таком же цвете, сто и шкафы. Части из литьевого пластика, например, вентиляционные решетки) окрашены в цвет RAL 7035 и не могут быть перекрашены в другой цвет.

Чертеж

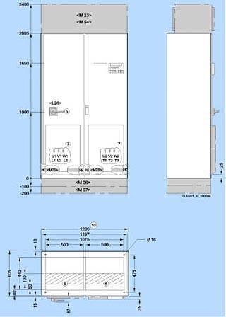
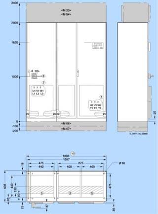
Обозначение (действительно для всех чертежей):

  • (1) Минимальная высота иотолка при установке к стене
  • (2) Вентиляционная решетка
  • (3) Выход воздуха
  • (4) Вход воздуха
  • (5) Подвод кабеля снизу возможен в заштрихованной области
  • (7) Подключение силовых кабелей
  • (8) Оции (увеличение степени защиты)
  • (9) Степень защиты
    • IP20
    • IP21 Опция M21
    • IP23 Oпция M23
    • IP54 Oпция M54
  • (10) Приспособленные для погрузки

 

Опция закрашены серым цветом.

 

Степень защиты (для всех размеров):

 

 

Регуляторы скорости вращения в шкафном исполнении вариант А

380 В до 480 В, 110 kW до 160 kW

660 В до 690 В, 75 kW до 315 kW

 

 

 

380 В до 480 В, 200 kW до 250 kW

 

 

 

380 В до 480 В, 315 kW

660 В до 690 В, 400 kW до 560 kW

 

 

 

380 В до 480 В, 400 kW до 450 kW

 

 

 

380 В до 480 В, 560 kW

660 В до 690 В, 710 kW до 800 kW

 

 

 

 

Регуляторы скорости вращения в шкафном исполнении вариант С 

380 В до 480 В, 110 kW до 250 kW

660 В до 690 В, 75 kW до 315 kW

 

 

 

380 В до 480 В, 315 kW до 450 kW

660 В до 690 В, 400 kW до 560 kW

 

 

 

380 В до 480 В, 560 kW

660 В до 690 В, 710 kW до 800 kW

 

 

 

Конструктивные особенности

В таблице внизу показаны рекомендуемые максимально возможные данные для подключения кабелей к сети и к электродвигателю.

Рекомендуемые значения поперечного сечения основаны на указанных предохранителях, а также для подключения одного трехжильного кабеля при тем-ре окруж. среды < +40оС. 

Если реальные условия отличаются от описанных (кол-во кабелей, многократное пересечение или перекрещивание кабеля, другая температура окружающей среды), то необходимо соблюдать инструкции по проводке кабеля в Указаниях по проектированию.  

Мощность 

Регулятор скорости вращения

Масса

Подключение со стороны сети 

Подключение со стороны двигателя

Заземление шкафа

 

 

(стандартная комплектация)

Рекомендуемое поперечн. сечение кабеля

Макс. поперечное сечение кабеля

Крепежный винт M12

Рекомендуемое поперечное сечение кабеля 

Макс. поперечн. сечение кабеля

Крепежный винт M12

Крепежный винт M12

Примечания 

кВт

Тип 6SL3710‑ ...

кг

DIN VDE

мм 2

AWG/ MCM

DIN VDE

мм 2

AWG/ MCM

(кол-во отверстий

DIN VDE

мм 2

AWG/ MCM

DIN VDE

мм 2

AWG/ MCM

(кол-во отверстий

(кол-во отверстий)

 

Исполнение тип A, 380 В до 480 В

110

‑1GE32‑1AA0

320

2x70

2x(000)

4x240

4x600

(2)

2x70

2x(000)

2x150

2x(400)

(2)

(2)

 

132

-1GE32-6AA0

320

2x95

2x(4/0)

4x240

4x600

(2)

2x95

2x(4/0)

2x150

2x(400)

(2)

(2)

 

160

-1GE33-1AA0

390

2x120

2x(300)

4x240

4x600

(2)

2x120

2x(300)

2x150

2x(400)

(2)

(2)

 

200

-1GE33-8AA0

480

2x120

2x(300)

4x240

4x600

(2)

2x120

2x(300)

2x150

2x(400)

(2)

(2)

 

250

-1GE35-0AA0

480

2x185

2x(500)

4x240

4x600

(2)

2x185

2x(500)

2x240

2x(600)

(2)

(2)

 

315

-1GE36-1AA0

860

2x240

2x(600)

4x240

4x600

(2)

2x240

2x(600)

4x240

4x(600)

(2)

(2)

 

400

-1GE37-5AA0

865

2x300

2x(800)

4x240

4x600

(2)

2x300

2x(800)

4x240

4x(600)

(2)

(10)

Cu rail

450

-1GE38-4AA0

1075

4x150

4x(400)

8x240

8x600

(4)

4x150

4x(400)

4x240

4x(600)

(2)

(16)

Cu rail

560

-1GE41-0AA0

1360

4x185

4x(500)

8x240

8x600

(4)

4x185

4x(500)

6x240

6x(600)

(3)

(18)

Cu rail

Исполнение тип A, 660 В до 690 В

75

‑1GH28‑5AA0

320

50

(00)

4x240

4x600

(2)

50

(00)

2x70

2x(000)

(2)

(2)

 

90

-1GH31-0AA0

320

50

(00)

4x240

4x600

(2)

50

(00)

2x150

2x(400)

(2)

(2)

 

110

-1GH31-2AA0

320

70

(000)

4x240

4x600

(2)

70

(000)

2x150

2x(400)

(2)

(2)

 

132

-1GH31-5AA0

320

95

(4/0)

4x240

4x600

(2)

95

(4/0)

2x150

2x(400)

(2)

(2)

 

160

-1GH31-8AA0

390

120

(300)

4x240

4x600

(2)

120

(300)

2x150

2x(400)

(2)

(2)

 

200

-1GH32-2AA0

390

2x70

2x(000)

4x240

4x600

(2)

2x70

2x(000)

2x150

2x(400)

(2)

(2)

 

250

-1GH32-6AA0

390

2x95

2x(4/0)

4x240

4x600

(2)

2x95

2x(4/0)

2x185

2x(500)

(2)

(2)

 

315

-1GH33-3AA0

390

2x120

2x(300)

4x240

4x600

(2)

2x120

2x(300)

2x240

2x(600)

(2)

(2)

 

400

-1GH34-1AA0

860

2x185

2x(500)

4x240

4x600

(2)

2x185

2x(500)

4x240

4x600

(2)

(2)

 

450

-1GH34-7AA0

860

2x185

2x(500)

4x240

4x600

(2)

2x185

2x(500)

4x240

4x600

(2)

(2)

 

560

-1GH35-8AA0

860

2x240

2x(600)

4x240

4x600

(2)

2x240

2x(600)

4x240

4x600

(2)

(2)

 

710

-1GH37-4AA0

1320

3x185

3x(500)

8x240

8x600

(4)

3x185

3x(500)

6x240

6x600

(3)

(18)

Cu rail

800

-1GH38-1AA0

1360

4x150

4x(400)

8x240

8x600

(4)

4x150

4x(400)

6x240

6x600

(3)

(18)

Cu rail

Исполнение тип C, 380 В до 480 В

110

‑1GE32‑1CA0

225

2x70

2x(000)

2x240

2x600

(1)

2x70

2x(000)

2x150

2x(400)

(1)

(2)

 

132

-1GE32-6CA0

225

2x95

2x(4/0)

2x240

2x600

(1)

2x95

2x(4/0)

2x150

2x(400)

(1)

(2)

 

160

-1GE33-1CA0

300

2x120

2x(300)

2x240

2x600

(1)

2x120

2x(300)

2x150

2x(400)

(1)

(2)

 

200

-1GE33-8CA0

300

2x120

2x(300)

2x240

2x600

(1)

2x120

2x(300)

2x150

2x(400)

(1)

(2)

 

250

-1GE35-0CA0

300

2x185

2x(500)

2x240

2x600

(1)

2x185

2x(500)

2x240

2x(600)

(1)

(2)

 

315

-1GE36-1CA0

670

2x240

2x(600)

8x240

8x600

(4)

2x240

2x(600)

8x240

8x(600)

(4)

(2)

 

400

-1GE37-5CA0

670

2x300

2x(800)

8x240

8x600

(4)

2x300

2x(800)

8x240

8x(600)

(4)

(8)

Cu rail

450

-1GE38-4CA0

670

4x150

4x(400)

8x240

8x600

(4)

4x150

4x(400)

8x240

8x(600)

(4)

(8)

Cu rail

560

-1GE41-0CA0

980

4x185

4x(500)

8x240

8x600

(4)

4x185

4x(500)

8x240

8x(600)

(4)

(10)

Cu rail

Исполнение тип С, 660 В до 690 В

75

‑1GH28‑5CA0

225

50

(00)

2x240

2x600

(1)

50

(00)

2x70

2x(000)

(1)

(2)

 

90

-1GH31-0CA0

225

50

(00)

2x240

2x600

(1)

50

(00)

2x150

2x(400)

(1)

(2)

 

110

-1GH31-2CA0

225

70

(000)

2x240

2x600

(1)

70

(000)

2x150

2x(400)

(1)

(2)

 

132

-1GH31-5CA0

225

95

(4/0)

2x240

2x600

(1)

95

(4/0)

2x150

2x(400)

(1)

(2)

 

160

-1GH31-8CA0

300

120

(300)

2x240

2x600

(1)

120

(300)

2x150

2x(400)

(1)

(2)

 

200

-1GH32-2CA0

300

2x70

2x(000)

2x240

2x600

(1)

2x70

2x(000)

2x150

2x(400)

(1)

(2)

 

250

-1GH32-6CA0

300

2x95

2x(4/0)

2x240

2x600

(1)

2x95

2x(4/0)

2x185

2x(500)

(1)

(2)

 

315

-1GH33-3CA0

300

2x120

2x(300)

4x240

4x600

(1)

2x120

2x(300)

2x240

2x(600)

(1)

(2)

 

400

-1GH34-1CA0

670

2x185

2x(500)

4x240

4x600

(2)

2x185

2x(500)

4x240

4x600

(2)

(2)

 

450

-1GH34-7CA0

670

2x185

2x(500)

4x240

4x600

(2)

2x185

2x(500)

4x240

4x600

(2)

(2)

 

560

-1GH35-8CA0

670

2x240

2x(600)

4x240

4x600

(2)

2x240

2x(600)

4x240

4x600

(2)

(2)

 

710

-1GH37-4CA0

940

3x185

3x(500)

8x240

8x600

(4)

3x185

3x(500)

6x240

6x600

(3)

(18)

Cu rail

800

-1GH38-1CA0

980

4x150

4x(400)

8x240

8x600

(4)

4x150

4x(400)

6x240

6x600

(3)

(18)

Cu rail


 

Заказные данные

Заказной №ОписаниеВес (кг)ДоставкаМин. зак. (шт)
6SL3710-1GE32-1AA0SINAMICS G150 ПРЕОБРАЗОВАТЕЛЬ ЧАСТОТЫ ШКАФНОГО ИСПОЛНЕНИЯ, AC/AC 3AC 380-480 V, 50/60 HZ НОМ. МОЩНОСТЬ: 110 КВТ (VT) БЕЗ РЕКУПЕРАЦИИ 6-ПУЛЬСНАЯ СХЕМА ИСПОЛНЕНИЕ А320по запросу (D)1
6SL3710-1GE32-1CA0SINAMICS G150 ПРЕОБРАЗОВАТЕЛЬ ЧАСТОТЫ ШКАФНОГО ИСПОЛНЕНИЯ, AC/AC 3AC 380-480 V, 50/60 HZ НОМ. МОЩНОСТЬ: 110 КВТ (VT) БЕЗ РЕКУПЕРАЦИИ 6-ПУЛЬСНАЯ СХЕМА ИСПОЛНЕНИЕ С225по запросу (D)1
6SL3710-1GE32-6AA0SINAMICS G150 ПРЕОБРАЗОВАТЕЛЬ ЧАСТОТЫ ШКАФНОГО ИСПОЛНЕНИЯ, AC/AC 3AC 380-480 V, 50/60 HZ НОМ. МОЩНОСТЬ: 132 КВТ (VT) БЕЗ РЕКУПЕРАЦИИ 6-ПУЛЬСНАЯ СХЕМА ИСПОЛНЕНИЕ А320по запросу (D)1
6SL3710-1GE32-6CA0SINAMICS G150 ПРЕОБРАЗОВАТЕЛЬ ЧАСТОТЫ ШКАФНОГО ИСПОЛНЕНИЯ, AC/AC 3AC 380-480 V, 50/60 HZ НОМ. МОЩНОСТЬ: 132 КВТ (VT) БЕЗ РЕКУПЕРАЦИИ 6-ПУЛЬСНАЯ СХЕМА ИСПОЛНЕНИЕ С225по запросу (D)1
6SL3710-1GE33-1AA0SINAMICS G150 ПРЕОБРАЗОВАТЕЛЬ ЧАСТОТЫ ШКАФНОГО ИСПОЛНЕНИЯ, AC/AC 3AC 380-480 V, 50/60 HZ НОМ. МОЩНОСТЬ: 160 КВТ (VT) БЕЗ РЕКУПЕРАЦИИ 6-ПУЛЬСНАЯ СХЕМА ИСПОЛНЕНИЕ А390по запросу (D)1
6SL3710-1GE33-1CA0SINAMICS G150 ПРЕОБРАЗОВАТЕЛЬ ЧАСТОТЫ ШКАФНОГО ИСПОЛНЕНИЯ, AC/AC 3AC 380-480 V, 50/60 HZ НОМ. МОЩНОСТЬ: 160 КВТ (VT) БЕЗ РЕКУПЕРАЦИИ 6-ПУЛЬСНАЯ СХЕМА ИСПОЛНЕНИЕ С300по запросу (D)1
6SL3710-1GE33-8AA0SINAMICS G150 ПРЕОБРАЗОВАТЕЛЬ ЧАСТОТЫ ШКАФНОГО ИСПОЛНЕНИЯ, AC/AC 3AC 380-480 V, 50/60 HZ НОМ. МОЩНОСТЬ: 200 КВТ (VT) БЕЗ РЕКУПЕРАЦИИ 6-ПУЛЬСНАЯ СХЕМА ИСПОЛНЕНИЕ А480по запросу (D)1
6SL3710-1GE33-8CA0SINAMICS G150 ПРЕОБРАЗОВАТЕЛЬ ЧАСТОТЫ ШКАФНОГО ИСПОЛНЕНИЯ, AC/AC 3AC 380-480 V, 50/60 HZ НОМ. МОЩНОСТЬ: 200 КВТ (VT) БЕЗ РЕКУПЕРАЦИИ 6-ПУЛЬСНАЯ СХЕМА ИСПОЛНЕНИЕ С300по запросу (D)1
6SL3710-1GE35-0AA0SINAMICS G150 ПРЕОБРАЗОВАТЕЛЬ ЧАСТОТЫ ШКАФНОГО ИСПОЛНЕНИЯ, AC/AC 3AC 380-480 V, 50/60 HZ НОМ. МОЩНОСТЬ: 250 КВТ (VT) БЕЗ РЕКУПЕРАЦИИ 6-ПУЛЬСНАЯ СХЕМА ИСПОЛНЕНИЕ А480по запросу (D)1
6SL3710-1GE35-0CA0SINAMICS G150 ПРЕОБРАЗОВАТЕЛЬ ЧАСТОТЫ ШКАФНОГО ИСПОЛНЕНИЯ, AC/AC 3AC 380-480 V, 50/60 HZ НОМ. МОЩНОСТЬ: 250 КВТ (VT) БЕЗ РЕКУПЕРАЦИИ 6-ПУЛЬСНАЯ СХЕМА ИСПОЛНЕНИЕ С300по запросу (D)1
6SL3710-1GE36-1AA0SINAMICS G150 ПРЕОБРАЗОВАТЕЛЬ ЧАСТОТЫ ШКАФНОГО ИСПОЛНЕНИЯ, AC/AC 3AC 380-480 V, 50/60 HZ НОМ. МОЩНОСТЬ: 315 КВТ (VT) БЕЗ РЕКУПЕРАЦИИ 6-ПУЛЬСНАЯ СХЕМА ИСПОЛНЕНИЕ А860по запросу (D)1
6SL3710-1GE36-1CA0SINAMICS G150 ПРЕОБРАЗОВАТЕЛЬ ЧАСТОТЫ ШКАФНОГО ИСПОЛНЕНИЯ, AC/AC 3AC 380-480 V, 50/60 HZ НОМ. МОЩНОСТЬ: 315 КВТ (VT) БЕЗ РЕКУПЕРАЦИИ 6-ПУЛЬСНАЯ СХЕМА ИСПОЛНЕНИЕ С670по запросу (D)1
6SL3710-1GE37-5AA0SINAMICS G150 ПРЕОБРАЗОВАТЕЛЬ ЧАСТОТЫ ШКАФНОГО ИСПОЛНЕНИЯ, AC/AC 3AC 380-480 V, 50/60 HZ НОМ. МОЩНОСТЬ: 400 КВТ (VT) БЕЗ РЕКУПЕРАЦИИ 6-ПУЛЬСНАЯ СХЕМА ИСПОЛНЕНИЕ А865по запросу (D)1
6SL3710-1GE37-5CA0SINAMICS G150 ПРЕОБРАЗОВАТЕЛЬ ЧАСТОТЫ ШКАФНОГО ИСПОЛНЕНИЯ, AC/AC 3AC 380-480 V, 50/60 HZ НОМ. МОЩНОСТЬ: 400 КВТ (VT) БЕЗ РЕКУПЕРАЦИИ 6-ПУЛЬСНАЯ СХЕМА ИСПОЛНЕНИЕ С670по запросу (D)1
6SL3710-1GE38-4AA0SINAMICS G150 ПРЕОБРАЗОВАТЕЛЬ ЧАСТОТЫ ШКАФНОГО ИСПОЛНЕНИЯ, AC/AC 3AC 380-480 V, 50/60 HZ НОМ. МОЩНОСТЬ: 450 КВТ (VT) БЕЗ РЕКУПЕРАЦИИ 6-ПУЛЬСНАЯ СХЕМА ИСПОЛНЕНИЕ А1075по запросу (D)1
6SL3710-1GE38-4CA0SINAMICS G150 ПРЕОБРАЗОВАТЕЛЬ ЧАСТОТЫ ШКАФНОГО ИСПОЛНЕНИЯ, AC/AC 3AC 380-480 V, 50/60 HZ НОМ. МОЩНОСТЬ: 450 КВТ (VT) БЕЗ РЕКУПЕРАЦИИ 6-ПУЛЬСНАЯ СХЕМА ИСПОЛНЕНИЕ С670по запросу (D)1
6SL3710-1GE41-0AA0SINAMICS G150 ПРЕОБРАЗОВАТЕЛЬ ЧАСТОТЫ ШКАФНОГО ИСПОЛНЕНИЯ, AC/AC 3AC 380-480 V, 50/60 HZ НОМ. МОЩНОСТЬ: 560 КВТ (VT) БЕЗ РЕКУПЕРАЦИИ 6-ПУЛЬСНАЯ СХЕМА ИСПОЛНЕНИЕ А1360по запросу (D)1
6SL3710-1GE41-0CA0SINAMICS G150 ПРЕОБРАЗОВАТЕЛЬ ЧАСТОТЫ ШКАФНОГО ИСПОЛНЕНИЯ, AC/AC 3AC 380-480 V, 50/60 HZ НОМ. МОЩНОСТЬ: 560 КВТ (VT) БЕЗ РЕКУПЕРАЦИИ 6-ПУЛЬСНАЯ СХЕМА ИСПОЛНЕНИЕ С980по запросу (D)1
6SL3710-1GH28-5AA0SINAMICS G150 ПРЕОБРАЗОВАТЕЛЬ ЧАСТОТЫ ШКАФНОГО ИСПОЛНЕНИЯ, AC/AC 3AC 660-690 V, 50/60 HZ НОМ. МОЩНОСТЬ: 75 КВТ (VT) БЕЗ РЕКУПЕРАЦИИ 6-ПУЛЬСНАЯ СХЕМА ИСПОЛНЕНИЕ A320по запросу (D)1
6SL3710-1GH28-5CA0SINAMICS G150 ПРЕОБРАЗОВАТЕЛЬ ЧАСТОТЫ ШКАФНОГО ИСПОЛНЕНИЯ, AC/AC 3AC 660-690 V, 50/60 HZ НОМ. МОЩНОСТЬ: 75 КВТ (VT) БЕЗ РЕКУПЕРАЦИИ 6-ПУЛЬСНАЯ СХЕМА ИСПОЛНЕНИЕ С225по запросу (D)1
6SL3710-1GH31-0AA0SINAMICS G150 ПРЕОБРАЗОВАТЕЛЬ ЧАСТОТЫ ШКАФНОГО ИСПОЛНЕНИЯ, AC/AC 3AC 660-690 V, 50/60 HZ НОМ. МОЩНОСТЬ: 90 КВТ (VT) БЕЗ РЕКУПЕРАЦИИ 6-ПУЛЬСНАЯ СХЕМА ИСПОЛНЕНИЕ A320по запросу (D)1
6SL3710-1GH31-0CA0SINAMICS G150 ПРЕОБРАЗОВАТЕЛЬ ЧАСТОТЫ ШКАФНОГО ИСПОЛНЕНИЯ, AC/AC 3AC 660-690 V, 50/60 HZ НОМ. МОЩНОСТЬ: 90 КВТ (VT) БЕЗ РЕКУПЕРАЦИИ 6-ПУЛЬСНАЯ СХЕМА ИСПОЛНЕНИЕ С225по запросу (D)1
6SL3710-1GH31-2AA0SINAMICS G150 ПРЕОБРАЗОВАТЕЛЬ ЧАСТОТЫ ШКАФНОГО ИСПОЛНЕНИЯ, AC/AC 3AC 660-690 V, 50/60 HZ НОМ. МОЩНОСТЬ: 110 КВТ (VT) БЕЗ РЕКУПЕРАЦИИ 6-ПУЛЬСНАЯ СХЕМА ИСПОЛНЕНИЕ A320по запросу (D)1
6SL3710-1GH31-2CA0SINAMICS G150 ПРЕОБРАЗОВАТЕЛЬ ЧАСТОТЫ ШКАФНОГО ИСПОЛНЕНИЯ, AC/AC 3AC 660-690 V, 50/60 HZ НОМ. МОЩНОСТЬ: 110 КВТ (VT) БЕЗ РЕКУПЕРАЦИИ 6-ПУЛЬСНАЯ СХЕМА ИСПОЛНЕНИЕ С225по запросу (D)1
6SL3710-1GH31-5AA0SINAMICS G150 ПРЕОБРАЗОВАТЕЛЬ ЧАСТОТЫ ШКАФНОГО ИСПОЛНЕНИЯ, AC/AC 3AC 660-690 V, 50/60 HZ НОМ. МОЩНОСТЬ: 132 КВТ (VT) БЕЗ РЕКУПЕРАЦИИ 6-ПУЛЬСНАЯ СХЕМА ИСПОЛНЕНИЕ A320по запросу (D)1
6SL3710-1GH31-5CA0SINAMICS G150 ПРЕОБРАЗОВАТЕЛЬ ЧАСТОТЫ ШКАФНОГО ИСПОЛНЕНИЯ, AC/AC 3AC 660-690 V, 50/60 HZ НОМ. МОЩНОСТЬ: 132 КВТ (VT) БЕЗ РЕКУПЕРАЦИИ 6-ПУЛЬСНАЯ СХЕМА ИСПОЛНЕНИЕ С225по запросу (D)1
6SL3710-1GH31-8AA0SINAMICS G150 ПРЕОБРАЗОВАТЕЛЬ ЧАСТОТЫ ШКАФНОГО ИСПОЛНЕНИЯ, AC/AC 3AC 660-690 V, 50/60 HZ НОМ. МОЩНОСТЬ: 160 КВТ (VT) БЕЗ РЕКУПЕРАЦИИ 6-ПУЛЬСНАЯ СХЕМА ИСПОЛНЕНИЕ A390по запросу (D)1
6SL3710-1GH31-8CA0SINAMICS G150 ПРЕОБРАЗОВАТЕЛЬ ЧАСТОТЫ ШКАФНОГО ИСПОЛНЕНИЯ, AC/AC 3AC 660-690 V, 50/60 HZ НОМ. МОЩНОСТЬ: 160 КВТ (VT) БЕЗ РЕКУПЕРАЦИИ 6-ПУЛЬСНАЯ СХЕМА ИСПОЛНЕНИЕ С300по запросу (D)1
6SL3710-1GH32-2AA0SINAMICS G150 ПРЕОБРАЗОВАТЕЛЬ ЧАСТОТЫ ШКАФНОГО ИСПОЛНЕНИЯ, AC/AC 3AC 660-690 V, 50/60 HZ НОМ. МОЩНОСТЬ: 200 КВТ (VT) БЕЗ РЕКУПЕРАЦИИ 6-ПУЛЬСНАЯ СХЕМА ИСПОЛНЕНИЕ A390по запросу (D)1
6SL3710-1GH32-2CA0SINAMICS G150 ПРЕОБРАЗОВАТЕЛЬ ЧАСТОТЫ ШКАФНОГО ИСПОЛНЕНИЯ, AC/AC 3AC 660-690 V, 50/60 HZ НОМ. МОЩНОСТЬ: 200 КВТ (VT) БЕЗ РЕКУПЕРАЦИИ 6-ПУЛЬСНАЯ СХЕМА ИСПОЛНЕНИЕ С300по запросу (D)1
6SL3710-1GH32-6AA0SINAMICS G150 ПРЕОБРАЗОВАТЕЛЬ ЧАСТОТЫ ШКАФНОГО ИСПОЛНЕНИЯ, AC/AC 3AC 660-690 В, 50/60 Гц . МОЩНОСТЬ: 250 KВт (VT) БЕЗ РЕКУПЕРАЦИИ 6-ПУЛЬСНАЯ СХЕМА ИСПОЛНЕНИЕ А390по запросу (D)1
6SL3710-1GH32-6CA0SINAMICS G150 ПРЕОБРАЗОВАТЕЛЬ ЧАСТОТЫ ШКАФНОГО ИСПОЛНЕНИЯ, AC/AC 3AC 660-690 V, 50/60 HZ НОМ. МОЩНОСТЬ: 250 КВТ (VT) БЕЗ РЕКУПЕРАЦИИ 6-ПУЛЬСНАЯ СХЕМА ИСПОЛНЕНИЕ С300по запросу (D)1
6SL3710-1GH33-3AA0SINAMICS G150 ПРЕОБРАЗОВАТЕЛЬ ЧАСТОТЫ ШКАФНОГО ИСПОЛНЕНИЯ, AC/AC 3AC 660-690 V, 50/60 HZ НОМ. МОЩНОСТЬ: 315 КВТ (VT) БЕЗ РЕКУПЕРАЦИИ 6-ПУЛЬСНАЯ СХЕМА ИСПОЛНЕНИЕ А390по запросу (D)1
6SL3710-1GH33-3CA0SINAMICS G150 ПРЕОБРАЗОВАТЕЛЬ ЧАСТОТЫ ШКАФНОГО ИСПОЛНЕНИЯ, AC/AC 3AC 660-690 V, 50/60 HZ НОМ. МОЩНОСТЬ: 315 КВТ (VT) БЕЗ РЕКУПЕРАЦИИ 6-ПУЛЬСНАЯ СХЕМА ИСПОЛНЕНИЕ С300по запросу (D)1
6SL3710-1GH34-1AA0SINAMICS G150 ПРЕОБРАЗОВАТЕЛЬ ЧАСТОТЫ ШКАФНОГО, AC/AC 3AC 660-690V, 50/60HZ НОМ. МОЩНОСТЬ: 400KW (VT) БЕЗ РЕКУПЕРАЦИИ 6-ПУЛЬСНАЯ СХЕМА ИСПОЛНЕНИЕ А860по запросу (D)1
6SL3710-1GH34-1CA0SINAMICS G150 ПРЕОБРАЗОВАТЕЛЬ ЧАСТОТЫ ШКАФНОГО, AC/AC 3AC 660-690V, 50/60HZ НОМ. МОЩНОСТЬ: 400KW (VT) БЕЗ РЕКУПЕРАЦИИ 6-ПУЛЬСНАЯ СХЕМА ИСПОЛНЕНИЕ С670по запросу (D)1
6SL3710-1GH34-7AA0SINAMICS G150 ПРЕОБРАЗОВАТЕЛЬ ЧАСТОТЫ ШКАФНОГО, AC/AC 3AC 660-690V, 50/60HZ НОМ. МОЩНОСТЬ: 450KW (VT) БЕЗ РЕКУПЕРАЦИИ 6-ПУЛЬСНАЯ СХЕМА ИСПОЛНЕНИЕ А860по запросу (D)1
6SL3710-1GH34-7CA0SINAMICS G150 ПРЕОБРАЗОВАТЕЛЬ ЧАСТОТЫ ШКАФНОГО, AC/AC 3AC 660-690V, 50/60HZ НОМ. МОЩНОСТЬ: 450KW (VT) БЕЗ РЕКУПЕРАЦИИ 6-ПУЛЬСНАЯ СХЕМА ИСПОЛНЕНИЕ С670по запросу (D)1
6SL3710-1GH35-8AA0SINAMICS G150 ПРЕОБРАЗОВАТЕЛЬ ЧАСТОТЫ ШКАФНОГО, AC/AC 3AC 660-690V, 50/60HZ НОМ. МОЩНОСТЬ: 560KW (VT) БЕЗ РЕКУПЕРАЦИИ 6-ПУЛЬСНАЯ СХЕМА ИСПОЛНЕНИЕ А860по запросу (D)1
6SL3710-1GH35-8CA0SINAMICS G150 ПРЕОБРАЗОВАТЕЛЬ ЧАСТОТЫ ШКАФНОГО, AC/AC 3AC 660-690V, 50/60HZ НОМ. МОЩНОСТЬ: 560KW (VT) БЕЗ РЕКУПЕРАЦИИ 6-ПУЛЬСНАЯ СХЕМА ИСПОЛНЕНИЕ С670по запросу (D)1
6SL3710-1GH37-4AA0SINAMICS G150 ПРЕОБРАЗОВАТЕЛЬ ЧАСТОТЫ ШКАФНОГО, AC/AC 3AC 660-690V, 50/60HZ НОМ. МОЩНОСТЬ: 710KW (VT) БЕЗ РЕКУПЕРАЦИИ 6-ПУЛЬСНАЯ СХЕМА ИСПОЛНЕНИЕ А1320по запросу (D)1
6SL3710-1GH37-4CA0SINAMICS G150 ПРЕОБРАЗОВАТЕЛЬ ЧАСТОТЫ ШКАФНОГО, AC/AC 3AC 660-690V, 50/60HZ НОМ. МОЩНОСТЬ: 710KW (VT) БЕЗ РЕКУПЕРАЦИИ 6-ПУЛЬСНАЯ СХЕМА ИСПОЛНЕНИЕ С940по запросу (D)1
6SL3710-1GH38-1AA0SINAMICS G150 ПРЕОБРАЗОВАТЕЛЬ ЧАСТОТЫ ШКАФНОГО, AC/AC 3AC 660-690V, 50/60HZ НОМ. МОЩНОСТЬ: 800KW (VT) БЕЗ РЕКУПЕРАЦИИ 6-ПУЛЬСНАЯ СХЕМА ИСПОЛНЕНИЕ А1360по запросу (D)1
6SL3710-1GH38-1CA0SINAMICS G150 ПРЕОБРАЗОВАТЕЛЬ ЧАСТОТЫ ШКАФНОГО, AC/AC 3AC 660-690V, 50/60HZ НОМ. МОЩНОСТЬ: 800KW (VT) БЕЗ РЕКУПЕРАЦИИ 6-ПУЛЬСНАЯ СХЕМА ИСПОЛНЕНИЕ С980по запросу (D)1

Аксессуары

Заказной №ОписаниеВес (кг)ДоставкаМин. зак. (шт)
3NA3132-6ПЛАВКАЯ ВСТАВКА НИЗКОВОЛЬТНАЯ GL/GG С НЕИЗОЛИРОВАННЫМИ ВЫСТУПАМИ ДЛЯ МОНТ./ДЕМОНТ. ТИПОРАЗМЕР 1, Iном.=125A, Uном.=690В0.293 - 5 недель (P)3
3NA3136-6ПЛАВКАЯ ВСТАВКА НИЗКОВОЛЬТНАЯ GL/GG С НЕИЗОЛИРОВАННЫМИ ВЫСТУПАМИ ДЛЯ МОНТ./ДЕМОНТ. ТИПОРАЗМЕР 1, Iном.=160A, Uном.=690В0.293 - 5 недель (P)3
3NA3240-6ПЛАВКАЯ ВСТАВКА НИЗКОВОЛЬТНАЯ GL/GG С НЕИЗОЛИРОВАННЫМИ ВЫСТУПАМИ ДЛЯ МОНТ./ДЕМОНТ. ТИПОРАЗМЕР 2, Iном.=200A, Uном.=690В0.4263 - 5 недель (P)3
3NA3244-6ПЛАВКАЯ ВСТАВКА НИЗКОВОЛЬТНАЯ GL/GG С НЕИЗОЛИРОВАННЫМИ ВЫСТУПАМИ ДЛЯ МОНТ./ДЕМОНТ. ТИПОРАЗМЕР 2, Iном.=250A, Uном.=690В0.683 - 5 недель (P)3
3NA3252ПЛАВКАЯ ВСТАВКА НИЗКОВОЛЬТНАЯ GL/GG С НЕИЗОЛИРОВАННЫМИ ВЫСТУПАМИ ДЛЯ МОНТ./ДЕМОНТ. ТИПОРАЗМЕР 2, Iном.=315A, Uном.=500В0.6473 - 5 недель (P)3
3NA3252-6ПЛАВКАЯ ВСТАВКА НИЗКОВОЛЬТНАЯ GL/GG С НЕИЗОЛИРОВАННЫМИ ВЫСТУПАМИ ДЛЯ МОНТ./ДЕМОНТ. ТИПОРАЗМЕР 2, Iном.=315A, Uном.=690В0.683 - 5 недель (P)3
3NA3254ПЛАВКАЯ ВСТАВКА НИЗКОВОЛЬТНАЯ GL/GG С НЕИЗОЛИРОВАННЫМИ ВЫСТУПАМИ ДЛЯ МОНТ./ДЕМОНТ. ТИПОРАЗМЕР 2, Iном.=335A, Uном.=500В0.6473 - 5 недель (P)3
3NA3354-6ПЛАВКАЯ ВСТАВКА НИЗКОВОЛЬТНАЯ GL/GG С НЕИЗОЛИРОВАННЫМИ ВЫСТУПАМИ ДЛЯ МОНТ./ДЕМОНТ. ТИПОРАЗМЕР 3, Iном.=335A, Uном.=690В14 - 6 недель (B)3
3NA3365ПЛАВКАЯ ВСТАВКА НИЗКОВОЛЬТНАЯ GL/GG С НЕИЗОЛИРОВАННЫМИ ВЫСТУПАМИ ДЛЯ МОНТ./ДЕМОНТ. ТИПОРАЗМЕР 3, Iном.=500A, Uном.=500В13 - 5 недель (P)3
3NA3365-6ПЛАВКАЯ ВСТАВКА НИЗКОВОЛЬТНАЯ GL/GG С НЕИЗОЛИРОВАННЫМИ ВЫСТУПАМИ ДЛЯ МОНТ./ДЕМОНТ. ТИПОРАЗМЕР 3, Iном.=500A, Uном.=690В13 - 5 недель (P)3
3NA3372ПЛАВКАЯ ВСТАВКА НИЗКОВОЛЬТНАЯ GL/GG С НЕИЗОЛИРОВАННЫМИ ВЫСТУПАМИ ДЛЯ МОНТ./ДЕМОНТ. ТИПОРАЗМЕР 3, Iном.=630A, Uном.=500В13 - 5 недель (P)3
3NA3475ПЛАВКАЯ ВСТАВКА НИЗКОВОЛЬТНАЯ GL/GG С НЕИЗОЛИРОВАННЫМИ ВЫСТУПАМИ ДЛЯ МОНТ./ДЕМОНТ. ТИПОРАЗМЕР 4, Iном.=800A, Uном.=500В2.53 - 5 недель (A)1
3NE1022-2ПЛАВКАЯ ВСТАВКА SITOR CATEGORY GR, DIN 43620 125A , AC 690 V ,(SIZE 00)0.2033 - 5 недель (A)3
3NE1224-2ПЛАВКАЯ ВСТАВКА SITOR CATEGORY GR, DIN 43620 160A , AC 690 V ,(SIZE 1)0.6133 - 5 недель (A)3
3NE1225-2ПЛАВКАЯ ВСТАВКА SITOR CATEGORY GR, DIN 43620 200A , AC 690 V ,(SIZE 1)0.6123 - 5 недель (A)3
3NE1227-2ПЛАВКАЯ ВСТАВКА SITOR CATEGORY GR, DIN 43620 250A , AC 690 V ,(SIZE 1)0.6263 - 5 недель (A)3
3NE1230-2ПЛАВКАЯ ВСТАВКА SITOR CATEGORY GR, DIN 43620 315A , AC 690 V ,(SIZE 1)0.6153 - 5 недель (A)3
3NE1331-2ПЛАВКАЯ ВСТАВКА SITOR CATEGORY GR, DIN 43620 350A , AC 690 V ,(SIZE 2)0.7543 - 5 недель (A)3
3NE1334-2ПЛАВКАЯ ВСТАВКА SITOR CATEGORY GR, DIN 43620 500A , AC 690 V ,(SIZE 2)0.7683 - 5 недель (A)3
3NE1435-2ПЛАВКАЯ ВСТАВКА SITOR CATEGORY GR, DIN 43620 560A , AC 690 V ,(SIZE 3)1.1493 - 5 недель (A)3
3NE1436-2ПЛАВКАЯ ВСТАВКА SITOR CATEGORY GR, DIN 43620 630A , AC 690 V ,(SIZE 3)1.1793 - 5 недель (A)3
3NE1438-2ПЛАВКАЯ ВСТАВКА SITOR CATEGORY GR, DIN 43620 800A , AC 500 V ,(SIZE 3)1.1843 - 5 недель (A)3
3NE1447-2ПЛАВКАЯ ВСТАВКА SITOR CATEGORY GR, DIN 43620 670A , AC 690 V ,(SIZE 3)1.173 - 5 недель (A)3
3NE1448-2ПЛАВКАЯ ВСТАВКА SITOR CATEGORY GR, DIN 43620 800A , AC 400 V ,(SIZE 3)1.2073 - 5 недель (A)3