0

Разделы

75 кВт - 1200 кВт

Автономный блок выпрямления/рекуперации, основанный на технологии  IGBT,  фильтр Clean Power Filter (Чистая энергия) , всё это предъявляет минимальные требования к питанию и характеризуется следующими особенностями :

  • Инновационный фильтр Clean Power Filter минимизирует гармоники
  • Рекуперация (четырёхквадрантная работа)
  • Устойчив к колебаниям питающего напряжения
  • Высокая стабильность напряжения в сети (высокая доступность)
  • Работа на слабых источниках питания
  • Возможна компенсация реативной мощности (индуктивной или ёмкостной)
  • Высокие динамические характеристики.

Простая и интуитивная работа с приводом от настойки до эксплуатации, как результат:

  • Компактного модульного, доступного для обслуживания исполнения
  • Единая система планирования и разработки
  • Готовность к подключению упрощает установку
  • Быстрая, по меню с подсказками, наладка без сложного параметризования
  • Ясное и удобное управление благодаря графической панели оператора с числовыми величинами, отображаемыми в квази-аналоговом виде.

 


Область применения

75 кВт - 1200 кВт

Типичные применения SINAMICS S150 включают:

  • Тестовые стенды
  • Центрифуги
  • Подъёмники и краны
  • Бумажные и прокатные станы
  • Механические ножницы
  • Ленточные конвейеры
  • Прессы
  • Канатные лебёдки.

 

Повсеместное применение

Преобразователи SINAMICS S150 производятся в соответствии с международными нормами и стандартами, и, таким образом, может быть использован в любой точке земного шара.  (см. технические характеристики).

 


Дизайн

75 кВт - 1200 кВт

 SINAMICS S150 характеризуется компактным исполнением, модульным дизайном и удобностью в эксплуатации .

 

Пример исполнения шкафа преобразователя SINAMICS S150

 

Базовое исполнение шкафа SINAMICS S150 с некоторыми дополнительными опциями

 


Функции

75 кВт - 1200 кВт
Панель управления и настройки

В дверь шкафа регулятора скорости вращения встроена панель управления и настройки для обеспечения человеко-машинного интерфейса и для ввода в эксплуатацию. Она снабжена:

Графический жидкокристаллический дисплей с подсветкой для отображения информации в текстовом режиме и квази-аналогового отображения переменных величин.

  • Светодиоды сигналов текущего состояния преобразователя
  • Функции помощи с выдачей описания причин и способов устранения ошибок и предупреждений
  • Клавиши для операционного управления приводом
  • Переключатель местное/дистанционное для выбора входа сигнала управления (приоритет назначен панели управления или блоку подключения внешних сигналов или PROFIBUS)
  • Цифровые клавиши для ввода уставок и параметров
  • Функциональные клавиши для навигации по меню
  • Стратегия двухуровневой безопасности для предотвращения случайного или не авторизованного изменения настроек. Управление работой привода с пульта управления может быть заблокировано с помощью пароля, и в этом случае на панели будет возможно только отображение значений параметров и переменных. Клавиша OFF (Выкл) имеет заводскую настройку «актививировано», но она также может быть заблокирована специалистом Заказчика. Пароль также может быть использован для блокировки неавторизованных изменений параметров преобразователя.
  • Степень защиты IP54 (после монтажа).

 

Operator panel

 

Текстовое  сообщение на панели управления хранится на двух языках и выводится на английском или на немецком языке (назначается параметрированием). Комбинации на других языках возможны - см. данные для выбора и заказа..

Ниже приведены примеры отображения текстовой информации во время различных фаз работы преобразователя.

Панель управления используется для ввода в эксплуатацию. Готовые меню для 

  • Питания 
  • Данных двигателя
  • Данных энкодера
  • Параметров 

приведут Вас к успеху.

 

Ввод параметров источника питания

 

 

Для «Быстрого ввода в эксплуатацию» требуется ввести только 5 (пять) параметров электродвигателя: номинальная выходная мощность, частота вращения, номинальный ток, напряжение и частота сети. Эти данные можно получить на шильдике электродвигателя и, затем, ввести вручную с помощью краткого меню, отображаемого на дисплее.

Тип охлаждения двигателя должен быть в дополнение.

 

 

Данные и обозначение двигателя сохраняются после ввода, затем происходит автоматическиая оптимизация замкнутой системы управления.

Во время  работы, текущие данные отображаются на дисплее в абсолютных величинах, таких как уставка и текущее значение, возможно также отображение до 3х параметров в виде квази-аналоговых значений.

 

 

Любые происходящие Аварийные предупреждения отображаются мигающим желтым светодиодом «ALARM»; любые происходящие Аварийные сбои/отлючения отображаются горящим красным светодиодом «FAULT». В строке состояния дисплея при этом появляется дополнительное справочное текстовое сообщение о причине.

 

 

 

Согласование с системой управления более высокого уровня и интерфейсный модуль TM31

Для подключения сигналов управления можно использовать связь по PROFIBUS DP, или интерфейсный модуль TM31.

Интерфейсный модуль позволяет организовать как соединение с системой управления более высокого уровня,  с помощью аналоговых и цифровых сигналов, так и подключение дополнительных блоков.

Интерфейсный модуль имеет:

  • 8 цифровых входов
  • 4 двунаправленных цифровых входов/выходов
  • 2 выхода реле с переключаемыми контактами
  • 2 аналоговых входа (дифференциальные)
  • 2 аналоговых выхода
  • 1 вход датчика температуры (KTY84-130/PTC)
  • Вспомогательный выход напряжения ±10 В для входа установки аналогового нуля
  • Вспомогательное питание +24 В для цифровых входов.

 

Блок для подключения внешних сигналов TM31

 

Более подробное описание интерфейсов см. в разделе «Указания по проектированию».

Замкнутый и разомкнутый контуры управления

 Система управления регулятора скорости вращения электродвигателя использует бездатчиковое векторное управление по току и частоте вращения, а также обеспечивает защиту электродвигателя и самого привода, кроме того есть возможность подключить датчик скорости  (см. Указания по проектированию).

Программное обеспечение и функции защиты

В программном обеспечении регулятора предусмотрены следующие функции:

Программные и защитные функции

Описание

Ввод уставки

 Уставка может быть введена как непосредственно с регулятора с.в. (изнутри), так и извне. Изнутри: уставка может быть или фиксированной, или заданной мотор-потенциометром, или в толчковом режиме (режиме наладки). Извне – через интерфейс PROFIBUS или через аналоговый вход в коммуникационном модуле. Внутренняя постоянная уставка и уставка мотор-потенциометра может быть переключена или скорректирована посредством команд управления через любой интерфейс. В дополнение, есть возможность устанавливать дополнительные уставки, направление вращения и ограничение скорости, смену направления вращения и указание диапазонов частот пропуска.

Автоматическое определение параметров двигателя

Автоматическое определение двигателя обеспечивает быстрый и лёгкий запуск и оптимизацию управления приводом.

Генератор функции задания

Удобный генератор функции задания с возможностью задания времён разгона и торможения, вместе с заданием времени сглаживания в верхнем и нижнем диапазоне скоростей, улучшая время реакции системы и предотвращая механическую перегрузку всего привода. Кривая торможения настраивается отдельно для случая аварийной остановки.

Использование накопленной кинетической энергии - Kinetic buffering (KIP)

Отказ по питанию может быть преодолён за счёт использования кинетической энергии, накопленной в приводе и механизме. Скорость вращения уменьшается на величину, зависящую от момента инерции и момента на валу. При возобновлении подачи питания уставка скорости восстанавливается.

Плавный подхват 1)

"Плавный подхват" позволяет подключать преобразователь к вращающемуся двигателю.

I2 t  тепловая защита двигателя

Температура двигателя рассчитывается по программной модели, по текущей скорости и нагрузке . Более точное определение температуры, с учётом температуры окружающей среды, может быть произведено с помощью прямого измерения температуры датчиком KTY84 в обмотках двигателя.

Определение температуры двигателя

Защита мотора обеспечивается датчиками KTY84 или PTC термистор. В случае KTY84, превышение граничных величин может быть запрограммировано на сигнал тревоги или остановку. Когда подключен PTC термистор, реакция на него также может быть настроена.

Защита от блокировки вала двигателя

Распознаётся блокировка вала, производится защита от перегрева двигателя вплоть до отключения.

Защита силовых цепей

 

Защита от замыкания на землю (по выходу)

Замыкание на землю распознаётся по суммарному току двигателя и вызывает отключение в незаземлённой системе.

Электронная защита от короткого замыкания по выходу

Короткое замыкание в цепях между мотором и преобразователем (на выходных клеммах преобразователя, в кабеле, в клеммной коробке) обнаруживается и производится отключение.

Тепловая защита от перегрузки

При превышении порога температуры вырабатывается сообщение. Если рост температуры продолжается, производится уменьшение тока или уменьшение несущей частоты ШИМ или отключение привода, обеспечивая нормализацию теплового состояния. При восстановлении нормальных условий (например при улучшении вентиляции) нормальное функционирование восстанавливается автоматически.

1) Заводская уставка - не включено(может быть настроено)

 


Технические данные

75 кВт - 1200 кВт

Электрические характеристики

Питающее напряжение и выходная мощность

  • 3 AC 380 V to 480 V, ±10% (‑15% < 1 мин)110 kW to 800 kW
  • 3 AC 660 V to 690 V, ±10% (‑15% < 1 мин)75 kW to 1200 kW

Тип сети

TN/TT сеть или изолированная сеть (IT сети)

Частота сети

от 47 Hz до 63 Hz

Выходная частота

от 0 Hz до 300 Hz

Фактор мощности

Настраиваемый (заводская установка cos phi = 1)

Метод управления

Векторное управление с или без обратной связи, или V/f характеристика

Фиксированные скорости

15 фиксированных скоростей плюс  1 минимальная скорость, программируемые (по умолчанию, 3 фиксированных точки плюс одна минимальная скорость выбираются посредством блока внешних сигналов или PROFIBUS)

Диапазоны прокпуска скоростей

4, настраиваемые

Разрешение уставки

0.001 min-1 цифровых (14 bit + VZ)

12 bit аналоговые

Торможение

Четырёх-квадрантное управление как штатная опция (возможно использование тормозного блока, если требуется торможение или в случае сбоя по питанию)

Механические параметры

Степень защиты

IP20 (опционально до IP54)

Класс защиты

по EN 50178 часть 1

Тип охлаждения

Принудительное воздушное

Shock-protection

BGV A2

Тип шкафа

Rittal TS 8, двери с двух-штыревым замком, трёх-секционный дном для ввода кабелей

Окраска

RAL 7035 (для внутреннего применения)

Соответсвует стандартам  

Стандарты

EN 60146‑1, EN 61800‑2, EN 61800‑3, EN 50178, EN 60204‑1, EN 60529

CE маркировка

по EMC  No. 89/336/EC и требованиям с низким напряжением No. 73/23/EC

RI подавление

по EMC стандарту для приводов с регулируемой частотой вращения EN 61800‑3, промышленные сети. Для общественных сетей по запросу.

 

 

 

Работа

Хранение

Транспортировка

Внешние условия  

Температура окружающей среды

от 0 °C до +40 °Cдо +50 °C: см. понижение мощности

от -25 °C до +55 °C

от -25 °C до +70 °Cменее –40 °C:на 24 часа

Относительная влажность

(без конденсации)

5% to 95%corr. to 3K3 to IEC 60721‑3‑3

5% to 95% corr. to 1K4 to IEC 60721‑3‑1

5% to 95%at 40 °Ccorr. to 2K3 to IEC 60721‑3‑2

Высота установки

До 2000 м над уровнем моря без понижения мощности, > 2000 m: см. понижение мощности

Механическая прочность

Вибрационная нагрузка

  • Искривление 

0.075 mmat 10 Hz to 58 Hz

1.5 mmat 5 Hz to 9 Hz

3.5 mmот  5 Hz до 9 Hz

  • Ускорение 

9.8 m/s2at> 58 Hz to 200 Hz-

5 m/s2at > 9 Hz to 200 Hzcorr. to 1M2 to IEC 60721‑3‑1

10 m/s2at > 9 Hz to 200 Hzcorr. to 2M2 to IEC 60721‑3‑2

Ударная нагрузка

  • Ускорение

100 m/s2at 11 mscorr. to 3M4 to IEC 60721‑3‑3

40 m/s2at 22 mscorr. to 1M2 to IEC 60721‑3‑1

100 m/s2at 11 mscorr. to 2M2 to IEC 60721‑3‑2

Оклонения от определённыхх классов помечены подчёркиванием. 

 

Малая перегрузка

Большая перегрузка

Потери

Требуемый поток воздуха охл.

Уровень звукового давления

Преобразователи

SINAMICS S150

Мощность

Номинальный входной ток1)

Номинальный выходной токIN

Базовый ток нагрузкиIL2)

Мощность по  IH

Базовый ток нагрузкиIH3)

при 400 V (50 Hz)

при 460 V (60 Hz)

при 690 V (50 Hz)

 

L pA (1 m) at 50 Hz

L pA (1 m) at 60 Hz

при 400 V

при 460 V (60 Hz)

при 690 V

кВт

л.с.  

кВт

A

A

A

кВт  

л.с.  

A

кВт  

кВт  

кВт  

m 3 /s

dB

dB

Заказной номер.

Напряжение питания 3 AC 50 Hz от 380 V до 440 V / 3 AC 60 Hz от 460 V до 480 V

110

150

-

197

210

205

90

125

178

5.6

6.1

-

0.58

71

73

6SL3710‑7LE32‑1AA0

132

200

-

242

260

250

110

150

233

6.6

7.3

-

0.70

71

73

6SL3710-7LE32-6AA0

160

250

-

286

310

302

132

200

277

8.5

9.4

-

1.19

72

74

6SL3710-7LE33-1AA0

200

300

-

349

380

370

160

250

340

9.3

10.2

-

1.19

72

74

6SL3710-7LE33-8AA0

250

400

-

447

490

477

200

350

438

11.7

13.0

-

1.19

72

74

6SL3710-7LE35-0AA0

315

500

-

549

605

590

250

400

460

15.9

17.5

-

1.96

77

79

6SL3710-7LE36-1AA0

400

600

-

674

745

725

315

500

570

18.0

20.0

-

1.96

77

79

6SL3710-7LE37-5AA0

450

700

-

759

840

820

400

600

700

18.4

20.4

-

1.96

77

79

6SL3710-7LE38-4AA0

560

800

-

888

985

960

450

700

860

24.4

26.8

-

2.6

77

79

6SL3710-7LE41-0AA0

710

900

-

1133

1260

1230

560

800

1127

28.2

31.4

-

2.6

78

80

6SL3710-7LE41-2AA0

800

1000

-

1262

1405

1370

710

900

1257

30.3

33.8

-

2.6

78

80

6SL3710-7LE41-4AA0

Напряжение питания 3 AC 50 Hz от 660 V до 690 V

-

-

75

86

85

80

55

-

76

-

-

4.5

0.58

71

73

6SL3710‑7LH28‑5AA0

-

-

90

99

100

95

75

-

89

-

-

4.9

0.58

71

73

6SL3710-7LH31-0AA0

-

-

110

117

120

115

90

-

107

-

-

5.2

0.58

71

73

6SL3710-7LH31-2AA0

-

-

132

144

150

142

110

-

134

-

-

5.8

0.58

71

73

6SL3710-7LH31-5AA0

-

-

160

166

175

170

132

-

157

-

-

9.5

1.19

75

77

6SL3710-7LH31-8AA0

-

-

200

202

215

208

160

-

192

-

-

10.4

1.19

75

77

6SL3710-7LH32-2AA0

-

-

250

242

260

250

200

-

233

-

-

11.1

1.19

75

77

6SL3710-7LH32-6AA0

-

-

315

304

330

320

250

-

280

-

-

12.5

1.19

75

77

6SL3710-7LH33-3AA0

-

-

400

375

410

400

315

-

367

-

-

17.7

1.96

77

79

6SL3710-7LH34-1AA0

-

-

450

424

465

452

400

-

416

-

-

18.9

1.96

77

79

6SL3710-7LH34-7AA0

-

-

560

522

575

560

450

-

514

-

-

22.4

1.96

77

79

6SL3710-7LH35-8AA0

-

-

710

665

735

710

630

-

657

-

-

28.3

2.6

77

79

6SL3710-7LH37-4AA0

-

-

800

732

810

790

710

-

724

-

-

31.6

2.6

77

79

6SL3710-7LH38-1AA0

-

-

900

821

910

880

800

-

814

-

-

32.5

2.6

77

79

6SL3710-7LH38-8AA0

-

-

1000

923

1025

1000

900

-

917

-

-

35.6

2.6

77

79

6SL3710-7LH41-0AA0

-

-

1200

1142

1270

1230

1000

-

1136

-

-

40.1

2.6

77

79

6SL3710-7LH41-3AA0

1) Указанные токи основаны на факторе мощности сети сos phi = 1. Эти токи включают в себя  10 Aна внешние нужды, например для опций  L19 и B03.

2) Базовый ток нагрузки  IL расчитан по циклу нагрузки 110% на 60 с или  150% на 10 с с периодом 300 с (см.  → Технические параметры → перегрузочная способность).

3) Базовый ток нагрузки   IH  расчитан по циклу нагрузки 150% на 60 с или  160% на 10 с с периодом 300 с (см.  → Технические параметры → перегрузочная способность).

  

Требования к снижению рабочих характеристик

Зависимость снижения выходного тока от высоты над У.М. и окружающей температуры

Если привода SINAMICS S150 эксплуатируются на площадке с высотой > 2000 m над У.М., то максимально допустимый выходной ток может быть рассчитан по прилагаемым ниже таблицам в соответствии с выбранной степенью защиты шкафа привода. Данные в таблице приведены с учетом наложения условий по высоте над У.М. и по температуре окружающей среды.

 

Высота установки над уровнем моря

Понижение тока

При температуре окружающей среды

м  

20 °C

25 °C

30 °C

35 °C

40 °C

45 °C

50 °C

0-2000

100%

100%

100%

100%

100%

95.0%

87.0%

2001-2500

100%

100%

100%

100%

96.3%

91.4%

83.7%

2501-3000

100%

100%

100%

96.2%

92.5%

87.9%

80.5%

3001-3500

100%

100%

96.7%

92.3%

88.8%

84.3%

77.3%

3501-4000

100%

97.8%

92.7%

88.4%

85.0%

80.8%

74.0%

Зависимость снижения выходного тока от высоты над У.М. и окружающей температуры для приводов в шкафном исполнении со степенью защиты IP20, IP21 и IP23

 

Высота установки над уровнем моря

Понижение тока

При температуре окружающей среды

м  

20 °C

25 °C

30 °C

35 °C

40 °C

45 °C

50 °C

0-2000

100%

100%

100%

100%

95.0%

87.5%

80.0%

2001-2500

100%

100%

100%

96.3%

91.4%

84.2%

77.0%

2501-3000

100%

100%

96.2%

92.5%

87.9%

81.0%

74.1%

3001-3500

100%

97.7%

92.3%

88.8%

84.3%

77.7%

71.1%

3501-4000

97.8%

92.7%

88.4%

85.0%

80.8%

74.7%

68.0%

Зависимость снижения выходного тока от высоты над У.М. и окружающей температуры для приводов SINAMICS S150 в шкафном исполнении со степенью защиты IP54

 

Зависимость снижения выходного напряжения от высоты над У.М.

В дополнение к снижению выходного тока необходимо учитывать необходимость в снижении напряжения в соответствие с таблицей ниже, если привода эксплуатируются на площадке с высотой >2000м над У.М..

 

Высота установки над уровнем моря

Понижение напряжения

при номинальном значении

Понижение напряжения

при номинальном значении

м  

380 В

400 В

420 В

440 В

460 В

480 В

660 В

690 В

0-2000

100%

100%

100%

100%

100%

100%

100%

100%

2001-2250

100%

100%

100%

100%

100%

96%

100%

96%

2251-2500

100%

100%

100%

100%

98%

94%

98%

94%

2501-2750

100%

100%

100%

98%

94%

90%

95%

90%

2751-3000

100%

100%

100%

95%

91%

88%

92%

88%

3001-3250

100%

100%

97%

93%

89%

85%

89%

85%

3251-3500

100%

98%

93%

89%

85%

82%

85%

82%

3501-3750

100%

95%

91%

87%

83%

79%

-

-

3751-4000

96%

92%

87%

83%

80%

76%

-

-

Зависимость снижения выходного напряжения от высоты над У.М.

 

Перегрузочная способность

SINAMICS S150 имеют резерв по нагрузке для обеспечения, например, токов отключения. Вероятность наличия больших токов должна быть принята во внимание при конфигурации системы. В приводах с режимом перегрузки, основной расчёт должен быть произведён по базовому току нагрузки.

Критерий для расчёта перегрузки - это работа на базовом токе до и после перегрузки и предполагается, что длительность перегрузки 

300 с.

Базовый ток нагрузки  IL для небольшой перегрузки рассчитан исходя из цикла 110% в течение 60 с или 150% в течение 10 с.

Базовый ток нагрузки IH для большой перегрузки рассчитан исходя из цикла 150%  в течение 60 с или 160% в течение 10 с.

 

Небольшая перегрузка

 

Большая перегрузка

 

Информация по электромагнитной совместимости (ЭМС)

Электромагнитная совместимость - согласно определению ЭМС - "способность устройства успешно функционировать в электромагнитной среде без генерации помех, которые нежелательны для других устройств, присутствующих в этой среде". Чтобы гарантировать соответсвующие параметры ЭМС, устройства должны обладать высокой резистивностью по отношению к помехам и генерируемые излучения должны не превышать установленных величин.

Требования ЭМС для "Приводов с регулируемой частотой  вращения" описан в стандарте EN 61800‑3. Привода с регулируемой частотой вращения (или силовые привода) состоят из преобразователя и электрического двигателя. Механизм не является частью привода. EN 61800‑3 определяет различные ограничения, основываясь на размещении привода, обозначаемом как "Класс В"(общественные сети) и "Класс А" (промышленные сети).

Класс В соответствует жилым помещениям или системам, непосредственно подключенным к сети без разделительного трансформатора.

Класс А соответствует всем случаям расположения все жилых помещений. Как правило - это промышленные объекты, подключенные к низковольтной сети через отдельные трансформаторы.

В EN 61800‑3 Ed.2 определены 4 категории в зависимости от размещения и мощности привода:

Категория C1: Привода с напряжением питания < 1000 В для нелимитированного применения в общественных сетях.

Категория C2: Стационарные привода с напряжением питания < 1000 В для применения в промышленных сетях. Использование в общественных сетях возможно при квалифицированной установке и настройке. Должна быть изучена информация по установке и возможным неисправностям .

Категория C3: Привода с напряжением питания < 1000 В только для применения в промышленных сетях.

Категория C4: Привода с напряжением питания  ≥ 1000 В  или номинальными токами ≥ 400 A для использования в сложных системах в промышленных сетях.

График демонстрирует 4 категории и В и А классы среды. 

SINAMICS S150 в основном применяется в промышленных сетях (категории C3 и C4).

Для ограничения  излучаемых помех, преобразователи SINAMICS S150 штатно поставляются с фильтром подавления помех, который соответствует ограничениям категории C3. Доступны также фильтры для применения в общественных сетях (Категория C2).

Преобразователи SINAMICS G130 соответствуют требованиям по помехоустойчивости описанным в EN 61800‑3 для промышленных сетяй, и также требованиям помехоустойчивости для общественных сетей.

Должна быть изучена информация по возможным неисправностям  и  установке. 

Заземление

Требуемые сечение проводника PE:

Сечение проводника PE выбирается по следующим данным:

  • IВ случае короткого замыкания не должно возникать значительных контактных напряжений (< AC 50 В или  < DC 120 В, EN 50178 Раздел 5.3.2.2, IEC 60364, IEC 60543) как результат падения напряжения от тока короткого замыкания в заземляющем проводнике PE.
  • Ток короткого замыкания не должен вызывать недопустимой нагрузки на проводник PE.
  • Если возможна ситуация, что в случае отказа по EN 50178 Section 8.3.3.4 возможен длительный ток по проводнику PE, то сечение проводника PE должно быть выбрано по этому длительному току.
  • Сечение проводника должно быть выбрано по EN 60204‑1, EN 60439‑1, IEC 60364.

 

Сечение внешнего проводника

Минимальное сечение внутреннего проводника PE

До 16 mm2

не менее сечения внешнего проводника

от 16 mm2 до 35 mm2

16 mm2

свыше 35 mm2

не менее половины сечения внешнего проводника

 

  • Распределительные устройства и двигатели как правило заземляются отдельно местным заземлением. В этом случае аварийные токи текут по параллельному соединению и разделяются. При этом недопустимые перенапряжения при выборе сечения проводника по данной таблице не возникают. Однако, основываясь на собранном опыте по различным видам заземления, мы рекомендуем непосредственный возврат заземляющего проводника от мотора в преобразователь. В целях электромагнитной совместимости и во избежание токов вала, используются симметричные и/или не 4х проводные кабели должны использоваться. Заземляющий проводник (PE) должен быть проложен отдельно или размещён в моторном кабеле симметрично. Симметрия заземляющего проводника PE достигается применением проводника, окружающего все фазные проводники  или использованием кабеля с симметричным расположением 3х заземляющих проводников и 3х фазных проводников.
  • Благодаря системе управления, преобразователи ограничивают ток нагрузки (токи двигателя и заземления) до действующего значения соответсвующего номинальному току. По этой причине, мы рекомендуем применение сечения внешнего проводника аналогичное внешнемцу проводнику заземления проводника заземления шкафа.

 


Дополнительно

75 кВт - 1200 кВт

Преобразователь

Предохранитель защиты кабеля

с уже существующим плавким выключателем-разъединителем

Предохранитель защиты кабеля(включая защиту полупроводников)

без  плавкого выключателя-разъединителя1)

 

Заказной номер

Номинальный ток

Размер по DIN 43620‑1

Заказной номер

Номинальный ток

Размер по DIN 43620‑1

Тип

 

A

 

 

A

 

Напряжение питания от AC 380 V до 480 V

6SL3710‑7LE32‑1AA0

3NA3 252

315

2

3NE1 230‑2

315

1

6SL3710-7LE32-6AA0

3NA3 254

355

2

3NE1 331‑2

350

2

6SL3710-7LE33-1AA0

3NA3 365

500

3

3NE1 334‑2

500

2

6SL3710-7LE33-8AA0

3NA3 365

500

3

3NE1 334‑2

500

2

6SL3710-7LE35-0AA0

3NA3 372

630

3

3NE1 436‑2

630

3

6SL3710-7LE36-1AA0

3NA3 475

800

4

3NE1 438‑2

800

3

6SL3710-7LE37-5AA0

3NA3 475

800

4

3NE1 448‑2

850

3

6SL3710-7LE38-4AA0

автомат

-

-

автомат

-

-

6SL3710-7LE41-0AA0

автомат

-

-

автомат

-

-

6SL3710-7LE41-2AA0

автомат

-

-

автомат

-

-

6SL3710-7LE41-4AA0

автомат

-

-

автомат

-

-

Напряжение питания от AC 660 V до 690 V   

 

6SL3710‑7LH28‑5AA0

3NA3 132‑6

125

1

3NE1 022‑2

125

00

6SL3710-7LH31-0AA0

3NA3 132‑6

125

1

3NE1 022‑2

125

00

6SL3710-7LH31-2AA0

3NA3 136‑6

160

1

3NE1 224‑2

160

1

6SL3710-7LH31-5AA0

3NA3 240‑6

200

2

3NE1 225‑2

200

1

6SL3710-7LH31-8AA0

3NA3 244‑6

250

2

3NE1 227‑2

250

1

6SL3710-7LH32-2AA0

3NA3 252‑6

315

2

3NE1 230‑2

315

1

6SL3710-7LH32-6AA0

3NA3 354‑6

355

3

3NE1 331‑2

350

2

6SL3710-7LH33-3AA0

3NA3 365‑6

500

3

3NE1 334‑2

500

2

6SL3710-7LH34-1AA0

3NA3 365‑6

500

3

3NE1 334‑2

500

2

6SL3710-7LH34-7AA0

3NA3 352‑6

2x315

2

3NE1 435‑2

560

3

6SL3710-7LH35-8AA0

3NA3 354‑6

2x355

3

3NE1 447‑2

670

3

6SL3710-7LH37-4AA0

3NA3 365‑6

2x500

3

3NE1 448‑2

850

3

6SL3710-7LH38-1AA0

автомат

-

-

автомат

-

-

6SL3710-7LH38-8AA0

автомат

-

-

автомат

-

-

6SL3710-7LH41-0AA0

автомат

-

-

автомат

-

-

6SL3710-7LH41-3AA0

автомат

-

-

автомат

-

-

Если преобразватель (I < 800 A) используется без опции L26, пользователь должен быть уверен, что предприняты соответсвующие меры защиты кабеля и полупроводников на стороне механизма. Рекомендуется использование комбинированного предохранителя 3NE1... при токах до 800 A. Эти предохранители с категорией применения gS разработаны для защиты от перегрузки и короткого замыкания кабелей, проводников и шин в дополнение к защите полупроводников.

 


Опции

75 кВт - 1200 кВт

Когда  заказывается преобразователь с опциями,  добавьте  "-Z" к заказному номеру, после чего укажите коды заказа на желаемые опции.

Пример:6SL3710-7LE32-1AA0-Z+M07+D60+...

см. примеры заказов.

 

Доступные опции

Код заказа

Входная цепь  

Главный выключатель с предохранителями для токов < 800 A

L26

EMC шина подключения экранов (подключение кабеля

снизу) 1)

M70

Выходная цепь  

Синусный фильтр (только для напряжений от 380 В до 480 В, дo 200 кВт) (по запросу)

L15

EMC шина подключения экранов (подключение кабеля

снизу) 1)

M70

Защита двигателя и функции безопасности  

EMERGENCY STOP клавишу на дверь шкафа

L45

EMERGENCY STOP категория 0, AC 230 В или  DC 24 В, неконтролируемая остановка

L57

EMERGENCY STOP категории 1, AC 230 В, управляемая остановка

L59

EMERGENCY STOP категории 1, DC 24 В, управляемая остановка

L60

Блок защиты двигателя термистором с подтверждением PTB(сигнал аварии)

L83

Блок защиты двигателя термистором с подтверждением PTB (отключение)

L84

Блок обработки PT100 (для  6 PT100)

L86

Контроль изоляции

L87

Дополнительная защита от удара

M60

Увеличение степени защиты

IP21 степень защиты

M21

IP23 степень защиты

M23

IP54 степень защиты

M54

Механические компоненты

Цоколь 100 мм высота, RAL 7022

M06

Отсек для подключения кабеля 200 мм высоты, RAL 7035

M07

Подключение питания сверху

M13

Подключение двигателя сверху

M78

Транспортировочный комплект для монтажа шкафа краном (устанавливается сверху)

M90

Дополнительные опции

Расширение блока внешних сигналов

G61

SMC30 блок датчика скорости для установки в шкаф

K50

Разъём для подключения вспомогательных потребителей (управляемый макс. 10 A)

L19

Освещение шкафа и сервисная розетка

L50

Противоконденсатный обогрев для шкафа

L55

100 kW тормозной блок (по запросу)

L61

200 kW тормозной блок (по запросу)

L62

Специальная окраска шкафа2)

Y09

Надписи и документация

Документация на  английский/французский

D58

Документация на  английский/испанский

D60

Документация на  английский/итальянский

D80

Шильдик и панель оператора на  английский/французский

T58

Шильдик и панель оператора на  английский/испанский

T60

Шильдик и панель оператора на  английский/итальянский

T80

Опции, специфичные для химической промышленности

NAMUR клеммный блок

B00

Защитное разделение источника 24 В (по PELV)

B02

Отдельный выход для внешних потребителей  (неуправляемый)

B03

Приёмка преобразователя в присутствии заказчика

Визуальный осмотр

F03

Функциональный тест преобразователя без двигателя

F71

Функциональный тест преобразователя с двигателем тестового стенда (без нагрузки)

F75

Проверка изоляции преобразователя

F77

Дополнительные проверки по специфике заказчика (по запросу)

F97

1) Эта опция указана для входной и выходной цепи , но требуется только однократно.

2) Заказной номер Y.. требует указания данных простым текстом.

 

Матрица выбора показывает возможные комбинации опций

 

Матрица выбора опций

Определенные опции взаимоисключающии.

Электрические опции

 

L15

L57

L59

L60

L87

L15

   x

   ✓

   ✓

   ✓

   ✓

L57

   ✓

   x

   –

   –

   ✓

L59

   ✓

   –

   x

   –

   ✓

L60

   ✓

   –

   –

   x

   ✓

L87

   ✓

   ✓

   ✓

   ✓

   x

  ✓

Возможные комбинации

  –

Невозможное сочетание 

 

Конструктивные опции/электрические опции

 

M06

M07

M13

M21

M23

M54

M60

M70

M78

M06

   x

   –

   ✓

   ✓

   ✓

   ✓

   ✓

   ✓

   ✓

M07

   –

   x

   ✓

   ✓

   ✓

   ✓

   ✓

   ✓

   ✓

M13

   ✓

   ✓

   x

   –

   ✓

   ✓

   –

   1)

   ✓

M21

   ✓

   ✓

   –

   x

   –

   –

   2)

   ✓

   –

M23

   ✓

   ✓

   ✓

   –

   x

   –

   –

   ✓

   ✓

M54

   ✓

   ✓

   ✓

   –

   –

   x

   –

   ✓

   ✓

M60

   ✓

   ✓

   –

   2)

   –

   –

   x

   ✓

   –

M70

   ✓

   ✓

   1)

   ✓

   ✓

   ✓

   ✓

   x

   1)

M78

   ✓

   ✓

   ✓

   –

   ✓

   ✓

   –

   1)

   x

  ✓

Возможное сочетание

  –

невозможное сочетание

1) Если подключение питания (опция M13) и подключение двигателя (опция M78) производится сверху, нет необходимости в EMC экранирующей шине в нижней части шкафа.

2) Доступно только для преобразователей с питанием от 400 В  250 kW и от  690 В до 315 kW. Оция  M60 присутсвует по умолчанию для больших мощностей.

 

Шильдик

 

T58

T60

T80

T58

   x

   –

   –

T60

   –

   x

   –

T80

   –

   –

   x

  –

Не возможно

 

Примеры заказов

Пример 1

Задача:Система привода необходима для бегового барабана транспортного средства для анализа выхлопов, с помощью которой можно смоделировать профили вождения и циклы, встречающиеся в повседневном движении. Для системы привода это означает, что для загрузочного устройства необходим режим, как с механическим, так и с генераторным приводом.

Т.к. режим с генераторным приводом преобладает, и необходимы операции динамического переключения, то нужен привод с рекуперацией.

Макс. выход генератора 200 кВт. Преобразователь должен иметь класс защиты IP54 из-за окружающих условий. Высота монтажа < 1000 м, а макс. ожидаемая окружающая температура 45 °C. Обмотки должны быть оборудованы резистивными термометрами PT100 и контролироваться преобразователем для вывода аварийного сигнала и отключения. Необходим выключатель-разъединитель для отключения преобразователя от питания 400 В. Дополнительно шкаф нужно покрасить в цвет RAL 3002.

Решение: С учетом коэффициенты снижения номинальных параметров для класса защиты IP54 и увеличения окружающей температуры 45 °C нужно спроектировать преобразователь с выходом минимум 223 кВт. Выбран преобразователь с выходом 250 кВт и опциями M54 (класс защиты IP54), L26 (главный управляющий выключатель, включая плавкие вставки), L86 (анализирующий модуль PT100) и Y09 (специальная окраска).

Соответствующий заказной номер:6SL3710-7LE35-0AA0-Z+M54 +L26+L86+Y09Цвет шкафа RAL 3002

 

Пример 2

Задача: Система привода необходима для конвейерной ленты в карьере бурого угля, которая обеспечивала бы режим с механическим и генераторным приводом. Т.к. конвейерная лента должна также запускаться с наваленным на нее материалом с последующей ошибкой, или возможны пиковые нагрузки 1.5 такта, то необходим выход макс. для 60 с, система привода должна иметь конструкцию в соответствие с требованиями к перегрузке в таких случаях. В связи с окружающими условиями, встречающимися при открытом способе разработки, преобразователь должен устанавливаться в контейнер с воздушной вентиляцией. Высота монтажа 320 м над уровнем моря, а макс. окружающая температура в контейнере 35 °C. Питание привода осуществляется от сети среднего напряжения через преобразовательный трансформатор. Привод работает в изолированной сети и должен быть оборудован контролем изоляции. Т.к. на двигателе при запуске и на низкой скорости установлен высокий крутящий момент нагрузки, то нужно выбрать двигатель с отдельно работающими вентиляторами. Напряжение питания вентилятора 690 В, должно подаваться от преобразователя.

Необходимый выход двигателя 420 кВт.

Решение: Т.к. преобразователь устанавливается в контейнер с воздушной вентиляцией, то он может иметь класс защиты IP20. Окружающая температура 35 °C не требует дополнительного снижения номинальных параметров. Однако, необходимые условия перегрузки означают, что для расчета нужно использовать основной ток нагрузки IG2. Поэтому нужен выход преобразователя прибл. 52 кВт. Необходимо заказывать преобразователь с заказным номером 6SL3710-7LH35-8AA0.

Для контроля изоляции нужно выбрать опцию L87 (контроль изоляции).

Для регулируемого выходного контура к блоку питания нужно выбрать опцию L19 (подключение для дополнительных внешних устройств).

Соответствующий заказной номер:6SL3710-7LH35-8AA0-Z+L19+L87

 

 

Описание опций

 

B00, B02, B03Опции по требованиям NAMUR

Лист исключений для других опций:

Следующие ограничения возникают при использовании блока подключения NAMUR B00:

 

Не возможно с этой опцией

Причина

L45, L57, L59, L60

EMERGENCY STOP категории 0 уже входит в версию NAMUR.Доступ к принудительному отключению электропитания находится на клеммах -A1-X2: 17, 18.

L83, L84

Опция B00 уже обеспечивает подключение PTC термистора  (отключение) по умолчанию.

L19

Опция B03 должна быть выбрана в качестве альтернативы. В таком случае будет доступно ограниченное подключение внешних потребителей.

L87

Контроль изоляции проверяет всю сеть, соединённую электрически.  Тем не менее,  должен быть контроль питания также на стороне источника питания  (plant side).

 

С такими опциями, как L50, L55, L86, подключение как описано по умолчанию. Никакого подключения к блоку NAMUR нет.

 

B00блок подключения NAMUR

Блок подключения разработан согласно нормам и требованиям ассоциации стандартов для измерений и управления в химической промышленности  (NAMUR рекомендация NE37), т.е. определённые клеммы предназначены для определённых функций устройств. Входы и выходы соответствуют требованиям  "Защитное особо-низкое напряжение PELV".

Количество клемм и связанных функции уменьшено до требуемого количества.  Клеммы, дополнительные по отношению к рекомендациям NAMUR, не указаны.

 

Клемма  ‑A1‑X2:

Значение

Предопределение

Примечание

10

DI

ON (динамичный) / ON/OFF (статичный)

Эффективный режим можно закодировать с помощью перемычки на клемме -A1-400:9; 10.

11

DI

OFF (динамичный)

 

12

DI

быстрее

 

13

DI

медленнее

 

14

DI

RESET

 

15

DI

блокировка

 

16

DI

против часовой стрелки

сигнал "0" для чередования фаз по часовой стрелкесигнал "1" для чередования фаз против часовой стрелки

17, 18

 

Разъединение PS

Последовательность АВАРИЙНОГО ОСТАНОВА

30, 31

 

Готов к запуску

Релейный выход (нормально разомкнутый контакт)

32, 33

 

Двигатель вращается

Релейный выход (нормально разомкнутый контакт)

34

DO (NO)

Ошибка

Релейный выход (переключающий контакт)

35

DO (COM)

36

DO (NC)

50, 51

AI 0/4‑20 мA

Установка скорости

 

60, 61

AO0/4‑20 мA

Частота двигателя

 

62, 63

AO0/4‑20 мA

Ток двигателя

Ток двигателя является установкой по умолчанию; его можно перепрограммировать на другие переменные

 

Питание 24 В осуществляется со стороны заказчика через клеммы -A1-X2:1-3 (защищены предохранителями на 1 A). Должны также выполняться требования требования по безопасности PELV.

 

Клеммы ‑A1‑X2:

Значение  

 

1

M

Общий

2

P24

Вход питания DC 24 V

3

P24

Выходная цепь DC 24 V

 

Для теплового контроля взровозащищенных двигателей, опция B00 содержит PTC термистор с подтверждением PTB. Выполняется отключение, если происходит превышение допустимого значения. Соответствующий датчик PTC  подключен к клеммам  -A1-X3:90, 91.

 

Клеммы ‑A1‑X3:

Значение

 

90, 91

AI

Подключение датчика PTC

 

B02 Защитное разделение для источника 24 В (PELV)

Если заказчик не обеспечивает разделения источников 24 V (по PELV), то эта опция предоставляет второй источник для гарантирования PELV (Назначение клемм как для опции B00, питание 24 V на клеммах -A1-X1:1, 2 , опущены).

Внимание: Опция B02 доступна только вместе с B00.

 

B03  Отдельный выход для внешних потребителей (неуправляемый)

Если мотор вентилятора должен быть запитан от внешнего источника, опция  B03 обеспечивает неуправляемый выход  с предохранителем на 10А. Как только напряжение питания появляется на входе преобразователя, на этих клеммах также появляется напряжение, в соответствии с величиной входного напряжения (V = VPS). Это должно быть учтено при планировании внешних вентиляторов.

 

Клеммы ‑A1‑X1:

Значение

1, 2, 3, PE

Выход для подключения мотора внешнего вентилятора

 

Внимание: Опция B03 возможна только вместе с B00.

 

F03, F71, F75, F77, F97Приёмочные испытания в присутствии заказчика

Код заказа  

Описание

F03

Визуальный осмотр

Приемочные испытания включают:

  • Проверка класса защиты
  • Проверка оборудования (компонентов)
  • Проверка идентификатора оборудования
  • Проверка безопасного расстояния и длины пути утечки
  • Проверка кабелей
  • Проверка документации заказчика
  • Предоставление отчета о приемке

Проверки осуществляются при отключенном от питания преобразователе.

F71

Функциональный тест преобразователя  без подключения двигателя

Приемочные испытания включают:

  • Визуальный осмотр, как описано для опции F03
  • Проверка электропитания
  • Проверка устройств защиты контроля (моделирование)
  • Проверка вентиляторов
  • Проверка предварительной зарядки
  • Функциональная проверка без подключенного двигателя
  • Предоставление отчета о приемке

После визуального осмотра выключенного преобразователя  он подключается к номинальному напряжению. На выходе преобразователя тока нет.

F75

Функциональный тест преобразователя  с тестовым двигателем (без нагрузки)

Приемочные испытания включают:

  • Визуальный осмотр, как описано для опции F03
  • Проверка электропитания
  • Проверка устройств защиты контроля (моделирование)
  • Проверка вентиляторов
  • Проверка предварительной зарядки
  • Функциональная проверка с двигателем испытательного стенда (без нагрузки)
  • Предоставление отчета о приемке

После визуального осмотра выключенного преобразователя  он подключается к номинальному напряжению. На выходе преобразователя подается низкий ток для работы двигателя испытательного стенда (без нагрузки).

F77

Проверка изоляции преобразователя

Приемочные испытания включают:

  • Испытание высоким напряжением
  • Измерение сопротивления изоляции

F97

Тестирование преобразователя по специфичным требованиям заказчика  (по запросу)

Если нужны испытания, не входящие в опции F03, F71, F75 или F77, то можно по запросу заказать особые приемочные проверки /дополнительные испытания посредством заказного кода F97 и следующие технические пояснения.

 

G61Расширение блока подключения внешних сигналов

В стандартной версии, шкафы  SINAMICS S150 уже включают интерфейсный модуль TM31 (блок подключения внешних сигналов). При помощи дополнительного блока, количество доступных цифровых и аналоговых входов/выходов может быть расширено на :

  • 8 цифровых входов
  • 4 двунаправленных цифровых входа/выхода
  • 2 выхода реле с переключаемым контактом
  • 2 аналоговых входа 
  • 2 аналоговых выхода
  • 1 вход датчика температуры (KTY84-130/PTC)

Второй TM31 должен быть подключен со стороны производственного оборудования. Установки по умолчанию не предоставляются.

 

K50Блок подключения энкодера SMC30, устанавливаемый в шкаф, для определения реальной скорости вращения

Модуль  подключения энкодера SMC30 может быть использован для  регистрации реальной скорости вращения. Сигналы от вращающего импульсного энкодера преобразуются в этом блоке и погут быть переданы для оценки по интерфейсу DRIVE-CLiQ.

SMC30 поддерживает следующие типы энкодеров:

  • TTL энкодеры
  • HTL энкодеры

 

L15Синусный фильтр (по запросу)

Синусные фильтры предлагаются для напряжений от 380 В до 480 В для мощности преобразователя не более 200 кВт.

Синусный фильтр обеспечивает практически синусоидальное напряжение на двигателе, таким образом, что могут быть применены стандартные двигатели без специальных кабелей и без понижения мощности. Могут быть использованы стандартные кабели. Максимальная длина кабеля до двигателя ограничена 300 м.

Внимание: В дополнение к опции L15, должна быть увеличена частота несущей преобразователя . Это понизит допустимую выходную мощность преобразователя (коэффициент 0.88)

 

L19Подключение для вспомогательных внешних потребителей

Защищенное предохранителем подключение (макс. 10 A)  для внешнего вспомогательного оборудования (например для отдельного вентилятора).

Напряжение отводится до главного контактора/ размыкателя цепи и, кроме того, имеет тот же уровень, что и напряжение питания.

Коммутация выходной цепи может осуществляться внутри преобразователя или снаружи .

 

Клеммы  ‑X155:

Значение

Диапазон

1

L1

AC 380 В дo 690 В

2

L2

AC 380 В дo 690 В

3

L3

AC 380 В дo 690 В

11

Управление контактором

AC 230 В

12

Управление контактором

AC 230 В

13

Блок-контакт размыкателя цепи

AC 230 В/0,5 A;DC 24 В/2 A

14

Блок-контакт размыкателя цепи

AC 230 В/0,5 A;DC 24 В/2 A

15

Блок-контакт контактора

AC 230 V/6 A

16

Блок-контакт контактора

AC 230 V/6 A

PE

PE

 

 

L26Главный выключатель (с предохранителями/размыкателями цепи)

Вплоть до 800 A,  выключатель-размыкатель с внешними предохранителями предлагается как главный выключатель . При токах выше 800 A, размыкатель цепи присутсвует как стандартный компонент, обеспечивая отключение питания . Размыкатель цепи запитывается и поставляется с преобразователем.

Клеммы  ‑X50:

Значение

1

Блок-контакт(NO)Главный выключатель/размыкатель цепи замкнут

2

Блок-контакт (NC)Главный выключатель/размыкатель цепи замкнут

3

Общий

 

L45кнопка EMERGENCY STOP

Опция L45 содержит только кнопку Аварийной Остановки (EMERGENCY STOP), которая устанавливается  в защитную обойму на дверь шкафа преобразователя. Контакты для кнопки  присутствуют на блоке подключений.

Функции Аварийной остановки (EMERGENCY STOP)  категории 0 или  1 могут быть активированы при объединении с опциями  L57, L59 и L60.

 

Клеммы ‑X120:

Значение

1

Контрольный контакт от кнопки EMERGENCY STOP в двери шкафа

2

Контрольный контакт от кнопки EMERGENCY STOP в двери шкафа

3

Контрольный контакт от кнопки EMERGENCY STOP в двери шкафа*)

4

Контрольный контакт от кнопки EMERGENCY STOP в двери шкафа*)

*) Используется внутри преобразователя с опциями от  L57 доL60

 

L50Освещение шкафа и сервисная розетка

Одна универсальная лампа с интегрированной розеткой устанавливается в каждый шкаф.

Источник питания (на блоке подключений -X390) для освещения шкафа и розетки должен быть обеспечен дополнительно и защищён предохранителем на ток не блоее 10 A. Освещение шкафа включается вручную или автоматически встроенным датчиков движения. Режим выбирается выключателем.

 

Клеммы  ‑X390:

Значение

1

L1 (AC 230 В)

2

N

3

PE

 

L55Противоконденсатный обогрев

Противоконденсатный обогрев рекомендуется при низкой температуре окружающей среды и высокой  влажности для того, чтобы избежать конденсации влаги.  Один 100-Вт нагреватель устанавливается на каждую панель шкафа (при ширине панели от 800 мм до 1200 мм устанавливается два нагревателя).

Источник питания нагревателя (AC от 110 В до 230 В, на блоке подключений -X240) должен быть внешним и защищен предохранителем на ток не более 16 A.

Клеммы  ‑X240:

Значение

1

L1 (AC от 110 В до 230 В)

2

N

3

PE

 

L57EMERGENCY STOP категория 0 (AC 230 В или DC 24 В)

EMERGENCY STOP категории 0 для неконтролируемой остановки по EN 60204.

Это функция включает в себя отключение напряжения на выходе преобразователя посредством входного контактора с питанием микропроцессорного контролера по обходной цепи (bypass) в безопасном режиме по  EN 60204‑1. Мотор вращается по инерции.  При поставке цепь кнопки предустановлена на AC 230 В. DC 24 В выбирается перестановкой джамперов.

 

Клеммы ‑X120:

Значение

7

Заглушка для кнопки EMERGENCY STOP со стороны системы; удалите джампер 7-8!

8

Заглушка для кнопки EMERGENCY STOP со стороны системы; удалите джампер 7-8!

15

"Вкл." для контролируемого запуска, удалите джампер 15-16!

16

"Вкл." для контролируемого запуска, удалите джампер 15-16!

17

Контрольный  "Включение безопасной комбинации"

18

Контрольный  "Включение безопасной комбинации"

 

L59EMERGENCY STOP категория 1 (AC 230 В)

EMERGENCY STOP категория 1 для контролируемой остановки по EN 60204.

Эта функция включает быстрое отключение привода остановкой по заданной пользователем кривой замедления. Затем следует отключение напряжения, как это описано в EMERGENCY STOP категория 0 (опция L57).

 

Клеммы ‑X120:

Значение

7

Заглушка для кнопки EMERGENCY STOP со стороны системы; удалите джампер 7-8!

8

Заглушка для кнопки EMERGENCY STOP со стороны системы; удалите джампер 7-8!

15

"Вкл." для контролируемого запуска, удалите джампер 15-16!

16

"Вкл." для контролируемого запуска, удалите джампер 15-16!

17

Контрольный  "Включение безопасной комбинации"

18

Контрольный  "Включение безопасной комбинации"

 

L60EMERGENCY STOP категория 1 (DC 24 В)

EMERGENCY STOP категория 1 для контролируемой остановки по EN 60204.

Эта функция включает быструю остановку привода по заданной пользователем кривой остановки. Затем производится отключение напряжения, как это описано в EMERGENCY STOP категория 0 (опция L57).

 

Клеммы ‑X120:

Значение

7

Заглушка для кнопки EMERGENCY STOP со стороны системы; удалите джампер 7-8!

8

Заглушка для кнопки EMERGENCY STOP со стороны системы; удалите джампер 7-8!

15

"Вкл." для контролируемого запуска, удалите джампер 15-16!

16

"Вкл." для контролируемого запуска, удалите джампер 15-16!

17

Контрольный  "Включение безопасной комбинации"

18

Контрольный  "Включение безопасной комбинации"

 

Внимание: При нажатии на кнопку EMERGENCY STOP, двигатель останавливается, контролируемо или неконтролируемо, согласно выбранной категории 0 или 1, и напряжение питания отключается от двигателя, согласно  IEC 60204‑1 (VDE 0113). Вспомогательные напряжения, такие как отдельно питание независимого вентилятора или противоконденсатного обогрева, могут оставаться включёнными. Некоторые части преобразователя также остаются под напряжением, такие как управляющие блоки или вспомогательные блоки. Если требуется полное отключение напряжения, то кнопка должна быть включена в защитную цепь цепь питания на месте установки. Для этой цели на клеммах присутствует контакт NC  –X120.

 

L61, L62Тормозные блоки (по запросу)

При нормальной работе, энергия, образующаяся при торможении, возвращается обратно в сеть. Однако, если необходимо специально останавливать привод в случае отказа по питанию, то требуются тормозные блоки, которые могут обеспечить такой режим.

Тормозное устройство состоит из двух частей: тормозной блок,  устанавливаемый в преобразователь и тормозной резистор, устанавливаемый отдельно. (степень защиты IP20). Тормозное устройство функционирует автономно и не требует внешнего источника питания. При торможении, кинетическая энергия преобразуется в тепло в установленном отдельно резисторе.  Между тормозным блоком и тормозным резистором допускается максимальная длина кабеля 50 м. Таким образом возможно рассеивать тепло за пределами комнаты для установки преобразователей.  Тормозной резистор подключается к клеммам  -X5 в шкафу преобразователя:

Клемма  ‑X5:

Значение

1

Подключение тормозного резистора

2

Подключение тормозного резистора

 

L61: Тормозной блок P 20 = 100 кВт

L62: Тормозной блок P 20 = 200 кВт

 

L83Блок термисторной защиты (аварийный сигнал)

Блок термисторной защиты (с утверждением PTB) обеспечивает подключение PTC термисторов (тип A) для генерации аварийного сигнала. Питание для блока защиты и обработка обработка сигнала производится в преобразователе.

Клеммы  ‑F127:

Значение

T1

Подключение  датчика

T2

Подключение датчика

 

L84Блок термисторной защиты (отключение)

Блок термисторной защиты (с утверждением PTB) обеспечивает подключение PTC термисторов (тип A) для отключения преобразователя. Питание для блока защиты и обработка обработка сигнала производится в преобразователе.

Клеммы  ‑F125:

Значение

T1

Подключение датчика

T2

Подключение датчика

 

L86Блок оценки PT100

Блок оценки PT100 может контролировать до 6 датчиков. Датчики могут быть подключены по двух-проводной или трёх-проводной схеме. Предельные значения программируются пользователем для каждого канала отдельно.

По умолчанию, измерительные каналы группируются в вдве группы по три канала. Применительно к двигателю, три датчика например могут быть использованы для контрля температуры обмотки статора и два датчика для контроля температуры подшипников. Неиспользуемые каналы блокируются соответсвующей установкой параметров.

Выходные реле интегрируеются в цепь внутреннего отказа и цепь, вызывающую отключение преобразователя. Кроме того, сигналы могут быть обработаны заказчиком по двум запасным сигнальным реле.  Также присутсвуют два программмируемых аналоговых выхода (0/4 mA - 20 mA и 0/2 В - 10 В) для интеграции в системы управления верхнего уровня.

 

Клеммы  ‑A1‑A140:

Значение

от T11 до T13

PT100; датчик 1; группа 1

от T21 до T23

PT100; датчик 2; группа 1

от T31до T33

PT100; датчик 3; группа 1

от T41 до T43

PT100; датчик 1; группа 2

от T51 до T53

PT100; датчик 2; группа 2

от T61 до T63

PT100; датчик 3, группа 2

Датчики могут быть подключены к PT100 по двух или трехпроводной схеме.

Для двухпроводной схемы используются клеммы Tx1 и Tx3.

Для трехпроводной схемы, также подключается вход Tx2 (x = 1, 2, ..., 6)

51, 52, 54

Выход релеПередельное значение по группе 1; (перекидной контакт)

61, 62, 64

Выход релеПередельное значение по группе 2; (перекидной контакт)

Общий (OUT 1)

Аналоговый выход OUT 1; группа датчиков 1

U1 (OUT 1)

Аналоговый выход OUT 1; группа датчиков 1

I1 (OUT 1)

Аналоговый выход OUT 1; группа датчиков 1

Общий (OUT 2)

Аналоговый выход OUT 2; группа датчиков 2

U2 (OUT 2)

Аналоговый выход OUT 2; группа датчиков 2

I2 (OUT 2)

Аналоговый выход OUT 2; группа датчиков 2

 

L87Контроль изоляции

Контроль изоляции должен быть применён в системах с изолированной нейтралью. Это устройство обеспечивает контроль всей подключенной цепи на предмет нарушения изоляции.

При неисправности генерируется сигнал аварии.

Внимание: Только одно устройство контроля изоляции может быть применено в электрически соединённой сети.

Могут предъявляться разные требования на реакцию на повреждение изоляции в системе с изолированной нейтралью, соответсвенно выходные реле могут быть подключены  к системе управления, также возможно подключение выходов к цепи контроля преобразователя на месте установки.

 

Клеммы ‑A1‑A101:

Значение

11

Выход реле ALARM 1 Общий

12

Выход реле ALARM 1 NC контакт

14

Выход реле ALARM 1 NO контакт

21

Выход реле ALARM 2 Общий

22

Выход реле ALARM 2 NC контакт

24

Выход реле ALARM 2 NO контакт

M+

Внешний kW дисплей от 0 A до 400 µA

M-

Внешний kW дисплей от 0 A до 400 µA

R1

Внешная кнопка сброса (NC контакт или  перемычка иначе код отказа не сохраняется)

R2

Внешная кнопка сброса (NC контакт или  перемычка)

T1

Внешняя кнопка проверки

T2

Внешняя кнопка проверки

 

M06 Цоколь 100 мм высоты, RAL 7022

Дополнительный цоколь позволяет использовать большие радиусы изгиба кабелей  (вход кабеля снизу) и изгибать кабели внутри цоколя.

Цоколь окрашивается в цвет RAL 7022. Специальная окраска невозможна.  Поставляется полностью прикреплённым к шкафу. Высота установки панели оператора изменяется соответственно.

 

M07 Отсек для крепления кабеля 200 мм высоты, RAL 7035

Отсек для крепления кабеля изготовлен из тонколистовой стали и увеличивает гибкость в подключении кабеля (вход снизу),  позволяет изгибать кабели в пределах зоны подключения. Поставляется полностью смонтированным. Высота установки панели оператора изменяется соответственно.

Внимание: Отсек для поключения кабеля окрашивается в RAL 7035 по умолчанию. Если для шкафа заказывается специальное окрашивание (Код заказа Y09), отсек для подключения кабеля так-же окрашивается в этот цвет.

 

M13Подключение питания сверху

Шкаф поставляется с дополнительным отсеком для подключения кабелей сверху. Этот отсек содержит клеммные подключения для силовых кабелей, крепёжную рельсу для механической фиксации кабелей, шину подключения экранов EMC и шину заземления.

Высота шкафа увеличивается на 405 мм.  Шины для подключения сверху поставляются полностью установленными.  По транспортным причинам, отсек (панели отсека ?) поставляется отдельно и должны быть смонтированы на месте установки. Также может применяться комплект для монтажа краном (опция M90). Однако, комплект должен быть удалён перед монтажём отсека. Использование тросов должно учитывать высоту крюка крана.

Для ввода кабелей должна быть использована непросверленная установочная панель, сделанная из алюминия (толщиной 5 мм). Она крепится сверху отсека.  Отверстия проделываются на месте установки согласно количеству кабелей ии их сечениям. В отверстия устанавливаются кабельные вводы.

Замечание: Кабели управления в любом случае подключаются снизу. С опцией M13 крепёжные планки для ввода питания снизу не устанавливаются.

Отсек имеет степень защиты IP21. Дополнительные вентиляционные решётки и фильтровальные подушки поставляются в комбинации с опциями M23 и M54.

Внимание: Отсек покрашен в RAL 7035 по умолчанию. Если для шкафа запрашивается специальная окраска  (Код заказа Y09), панели так-же красятся в этот цвет. Вентиляционные решётки, применяемые при степенях защиты IP23 и IP54 окрашены в  RAL 7035 и цвет не может быть изменён.

Ограждения, используемые с опцией M60, также включаются в объём поставки.

 

M21степень защиты IP21

Шкаф в версии IP20, но с дополнительной крышей.  Высота шкафа увеличивается на  250 мм.

По транспортным причинам, крыша поставляется отдельно и должна быть установлена на месте. 

Внимание: Крыша покрашена в RAL 7035 по умолчанию. Если для шкафа запрашивается специальная окраска  (Код заказа Y09), крыша так-же окрашивается в этот цвет.

 

M23степень защиты IP23

Шкаф преобразователя со степенью защиты IP23 поставляется с дополнительными панелями (кожухами) и пластиковыми вентиляционными решётками для отверстий входа и выхода воздуха. Высота шкафа увеличивается на  400 мм. Ограждения, используемые с опцией M60, также включаются в объём поставки.  По транспортным причинам, панели поставляются отдельно и должны быть установлены на месте. 

 

M54IP54 степень защиты

Шкаф преобразователя со степенью защиты IP54 поставляется с дополнительными панелями (кожухами) и пластиковыми вентиляционными решётками для отверстий входа и выхода воздуха. Высота шкафа увеличивается на  400 мм. Ограждения, используемые с опцией M60, также включаются в объём поставки. Они являются штатной частью воздуховодов и имеют соответствующую конструкцию. Обслуживание фильтров должно проводиться по условиям окружающей среды.

Внимание: При степени защиты IP54, должно учитываться ухудшение условий и соответсвующее понижение допустимых выходных токов. 

По транспортным причинам, панели поставляются отдельно и должны быть установлены на месте.

Внимание: Крыша покрашена в RAL 7035 по умолчанию. Если для шкафа запрашивается специальная окраска  (Код заказа Y09), крыша так-же окрашивается в этот цвет.  Штампованные пластиковые части (такие как решётки вентиляторов) имеют цвет RAL 7035 и не могут быть покрашены. 

 

M60Защита от удара током 

Шкаф преобразователя разрабатывается с учётом стандарта BGV A2. Опция M60 предлагает дополнительные ограждения (за пределами доступности среднестатистических рук) поблизости от шин AC и над силовым блоком  (доступно только как опция для преобразователей до 250 кВт при 400 В и для мощностей вплоть до 315 кВТ при 690 В в версиях IP20 и IP21; иначе присутствует по умолчанию).

 

M70EMC шина для подключения экранов (подключение кабеля снизу)

Шина EMC используется для подключения экранированных силовых кабелей питания и кабелей двигателя. С опциями M13 и M78, шина EMC поставляется в качестве стандартного оборудования и устанавливается в шинах подключения ниже кожуха.

 

M78Подключение двигателя сверху

Шкаф управления оборудован дополнительным отсеком для случая, если сеть будет подключаться сверху. Этот отсек содержит клеммные соединения для силовых кабелей, а также кабельный зажимный рельс для механической поддержки кабелей, экранированную шину ЭМС и рельс PE.

В этом случае высота шкафа увеличивается на 405 мм. Шины для подключения сверху поставляются полностью собранными. В целях транспортировки отсеки поставляются отдельно и должны быть установлены на месте. Можно также использовать компоновочные узлы кранового транспорта (опция M90). Однако, на месте их нужно убрать, чтобы закрепить отсек. Использование распределителей тросов рассматривается в случае небольшой высоты крюка крана.

Сверху отсека необходимо установить монтажную плату без отверстий, изготовленную из алюминия (толщина 5 мм), для ввода кабелей. В зависимости от используемого количества кабелей и их сечения на производстве необходимо сделать отверстия в этой монтажной плате для крепления кабельных сальников для ввода в кабели.

Примечание: Контрольные кабели все еще подводятся снизу. С опцией M78 перемычки для подключения сети снизу отсутствуют.

Отсеки имеют класс защиты IP21. Вместе с опциями M23 и M54 поставляются дополнительные пластиковые вентиляционные решетки и фильтровальные подушки.

Внимание:

Отсеки в стандартной конфигурации окрашены в цвет RAL 7035. Если шкаф окрашивается в другой цвет (заказной код Y09), то и отсеки также окрашиваются в тот же цвет. Вентиляционные решетки используются с классом защиты IP23 и IP54, окрашены в цвет RAL 7035 и не могут быть перекрашены в другой цвет.

Крышки, используемые с опцией M60, входят в объем поставки.

 

M90Устанавливаемый сверху комплект для монтажа краном

Для шкафов шириной до 600 мм поставляются рым-болты. Для шкафов с широной 800 мм или более, используются транспортные рельсы.

 

Y09Специальная окраска шкафа

Шкафы преобразователей по умолчанию окрашиваются в цвет RAL 7035. Специальный цвет должен быть указан простым текстом в заказе. Могут быть выбраны все цвета RAL, которые можно нанести спеканием порошка. Если указана опция, такая как отсек для монтажа кабеля ( M07), верхние крышки или навес(Order code M21), вытяжной шкаф (M23/M54) или подключение кабелей через верх (M13/M78), то все эти элементы поставляются указанного цвета . Штампованные пластиковые части (такие как решетки вентиляторов) имеют цвет RAL 7035 и не могут быть покрашены. 

 


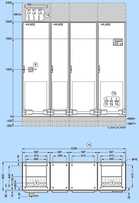
Чертеж

75 кВт - 1200 кВт
от 380 V до 480 V, от 110 kW до 132 kW
от 660 V до 690 V, от 75 kW до 132 kW

Ввод подключён снизу, Двигатель подключен снизу

 

Степени защиты

 

Обозначения

  • (1) Минимальная  высота потолка при настенной установке
  • (2) Вентиляционная решетка 
  • (3) Зона выхода воздуха
  • (4) Зона входа воздуха
  • (5) Ввод кабеля возможен в пределах затемнённой области
  • (6) Главный выключатель (см опцию L26)
  • (7) Силовое подключение (7a: источник питания, 7b: мотор)
  • (8) Опции степеней защиты
  • (9) Степени защиты IP20
    • IP21 опция  M21
    • IP23 опция  M23
    • IP54 опция  M54
  • (10) Транспортировочное устройство

Опции показаны на сером фоне.

 

 

от 380 V до 480 V, от 110 kW до 132 kW
от 660 V до 690 V, от 75 kW до 132 kW

Ввод питания сверху (опция  M13),Двигатель подключен сверху

 

Степени защиты

 

Обозначения

  • (1) Минимальная  высота потолка при настенной установке
  • (2) Вентиляционная решетка 
  • (3) Зона выхода воздуха
  • (4) Зона входа воздуха
  • (5) Ввод кабеля возможен в пределах затемнённой области
  • (6) Главный выключатель (см опцию L26)
  • (7) Силовое подключение (7a: источник питания, 7b: мотор)
  • (8) Опции степеней защиты
  • (9) Степени защиты
    • IP21 опция  M21
    • IP23 опция  M23
    • IP54 опция  M54
  • (10) Транспортировочное устройство

Опции показаны на сером фоне.

 

 

от 380 V до 480 V, от 110 kW до 132 kW
от 660 V до 690 V, от 75 kW до 132 kW

Ввод питания сверху (опция M13),Двигатель подключен снизу

 

Степени защиты

 

 

Обозначения

  • (1) Минимальная  высота потолка при настенной установке
  • (2) Вентиляционная решетка 
  • (3) Зона выхода воздуха
  • (4) Зона входа воздуха
  • (5) Ввод кабеля возможен в пределах затемнённой области
  • (6) Главный выключатель (см опцию L26)
  • (7) Силовое подключение (7a: источник питания, 7b: мотор)
  • (8) Опции степеней защиты
  • (9) Степени защиты
    • IP21
    • IP23 опция  M23
    • IP54 опция  M54
  • (10) Транспортировочное устройство

Опции показаны на сером фоне.

 

 

от 380 V до 480 V, от 110 kW до 132 kW
от 660 V до 690 V, от 75 kW до 132 kW

Ввод питания снизу,Двигатель подключен сверху (опция M78)

 

Степени защиты

 

Обозначения

  • (1) Минимальная  высота потолка при настенной установке
  • (2) Вентиляционная решетка 
  • (3) Зона выхода воздуха
  • (4) Зона входа воздуха
  • (5) Ввод кабеля возможен в пределах затемнённой области
  • (6) Главный выключатель (см опцию L26)
  • (7) Силовое подключение (7a: источник питания, 7b: мотор)
  • (8) Опции степеней защиты
  • (9) Степени защиты
    • IP21
    • IP23 опция  M23
    • IP54 опция  M54
  • (10) Транспортировочное устройство

Опции показаны на сером фоне.

 

 

от 380 V до 480 V, 160 kW
от 660 V до 690 V, от 160 kW до 315 kW

Ввод питания снизу,Двигатель подключен снизу

 

Степени защиты

 

Обозначения

  • (1) Минимальная  высота потолка при настенной установке
  • (2) Вентиляционная решетка 
  • (3) Зона выхода воздуха
  • (4) Зона входа воздуха
  • (5) Ввод кабеля возможен в пределах затемнённой области
  • (6) Главный выключатель (см опцию L26)
  • (7) Силовое подключение (7a: источник питания, 7b: мотор)
  • (8) Опции степеней защиты
  • (9) Степени защиты
    • IP20
    • IP21 опция М21
    • IP23 опция  M23
    • IP54 опция  M54
  • (10) Транспортировочное устройство

Опции показаны на сером фоне.

 

 

380 V to 480 V, 160 kW
660 V to 690 V, 160 kW to 315 kW

Ввод питания сверху (опция M13),

Двигатель подключен сверху (опция M78)

 

Степени защиты

 

Обозначения

  • (1) Минимальная  высота потолка при настенной установке
  • (2) Вентиляционная решетка 
  • (3) Зона выхода воздуха
  • (4) Зона входа воздуха
  • (5) Ввод кабеля возможен в пределах затемнённой области
  • (6) Главный выключатель (см опцию L26)
  • (7) Силовое подключение (7a: источник питания, 7b: мотор)
  • (8) Опции степеней защиты
  • (9) Степени защиты
    • IP21
    • IP23 опция  M23
    • IP54 опция  M54
  • (10) Транспортировочное устройство

Опции показаны на сером фоне.

 

 

от 380 V до 480 V, 160 kW
от 660 V до 690 V, от 160 kW до 315 kW

Ввод питания сверху (опция M13),Двигатель подключен снизу

 

 

Степени защиты

Обозначения

  • (1) Минимальная  высота потолка при настенной установке
  • (2) Вентиляционная решетка 
  • (3) Зона выхода воздуха
  • (4) Зона входа воздуха
  • (5) Ввод кабеля возможен в пределах затемнённой области
  • (6) Главный выключатель (см опцию L26)
  • (7) Силовое подключение (7a: источник питания, 7b: мотор)
  • (8) Опции степеней защиты
  • (9) Степени защиты
    • IP21
    • IP23 опция  M23
    • IP54 опция  M54
  • (10) Транспортировочное устройство

Опции показаны на сером фоне.

 

 

 

от 380 V до 480 V, 160 kW
от 660 V до 690 V, от 160 kW до 315 kW

Ввод питания снизу,Двигатель подключен сверху (опция M78)

 

Степени защиты

 

Обозначения

  • (1) Минимальная  высота потолка при настенной установке
  • (2) Вентиляционная решетка 
  • (3) Зона выхода воздуха
  • (4) Зона входа воздуха
  • (5) Ввод кабеля возможен в пределах затемнённой области
  • (6) Главный выключатель (см опцию L26)
  • (7) Силовое подключение (7a: источник питания, 7b: мотор)
  • (8) Опции степеней защиты
  • (9) Степени защиты
    • IP21
    • IP23 опция  M23
    • IP54 опция  M54
  • (10) Транспортировочное устройство

Опции показаны на сером фоне.

 

 

 

от 380 V до 480 V, от 200 kW до 250 kW

Ввод питания снизу,Двигатель подключен снизу

 

Степени защиты

Обозначения

  • (1) Минимальная  высота потолка при настенной установке
  • (2) Вентиляционная решетка 
  • (3) Зона выхода воздуха
  • (4) Зона входа воздуха
  • (5) Ввод кабеля возможен в пределах затемнённой области
  • (6) Главный выключатель (см опцию L26)
  • (7) Силовое подключение (7a: источник питания, 7b: мотор)
  • (8) Опции степеней защиты
  • (9) Степени защиты
    • IP20
    • IP21 опция М21
    • IP23 опция  M23
    • IP54 опция  M54
  • (10) Транспортировочное устройство

Опции показаны на сером фоне.

 

 

от 380 V до 480 V, от 200 kW до 250 kW

Ввод питания сверху (опция M13),Двигатель подключен сверху (опция M78)

 

Степени защиты

 

Обозначения

  • (1) Минимальная  высота потолка при настенной установке
  • (2) Вентиляционная решетка 
  • (3) Зона выхода воздуха
  • (4) Зона входа воздуха
  • (5) Ввод кабеля возможен в пределах затемнённой области
  • (6) Главный выключатель (см опцию L26)
  • (7) Силовое подключение (7a: источник питания, 7b: мотор)
  • (8) Опции степеней защиты
  • (9) Степени защиты
    • IP21
    • IP23 опция  M23
    • IP54 опция  M54
  • (10) Транспортировочное устройство

Опции показаны на сером фоне.

 

 

 

от 380 V до 480 V, от 200 kW до 250 kW

Ввод питания сверху (опция M13),Двигатель подключен снизу

 

Степени защиты

Обозначения

  • (1) Минимальная  высота потолка при настенной установке
  • (2) Вентиляционная решетка 
  • (3) Зона выхода воздуха
  • (4) Зона входа воздуха
  • (5) Ввод кабеля возможен в пределах затемнённой области
  • (6) Главный выключатель (см опцию L26)
  • (7) Силовое подключение (7a: источник питания, 7b: мотор)
  • (8) Опции степеней защиты
  • (9) Степени защиты
    • IP21
    • IP23 опция  M23
    • IP54 опция  M54
  • (10) Транспортировочное устройство

Опции показаны на сером фоне.

 

 

 

от 380 V до 480 V, от 200 kW до 250 kW

Ввод питания снизу,Двигатель подключен сверху (опция M78)

 

Степени защиты

Обозначения

  • (1) Минимальная  высота потолка при настенной установке
  • (2) Вентиляционная решетка 
  • (3) Зона выхода воздуха
  • (4) Зона входа воздуха
  • (5) Ввод кабеля возможен в пределах затемнённой области
  • (6) Главный выключатель (см опцию L26)
  • (7) Силовое подключение (7a: источник питания, 7b: мотор)
  • (8) Опции степеней защиты
  • (9) Степени защиты
    • IP21
    • IP23 опция  M23
    • IP54 опция  M54
  • (10) Транспортировочное устройство

Опции показаны на сером фоне.

 

 

от 380 V до 480 V, от 315 kW до 450 kW
от 660 V до 690 V, от 400 kW до 560 kW

Ввод питания снизу,Двигатель подключен снизу

 

Степени защиты

 

Обозначения

  • (1) Минимальная  высота потолка при настенной установке
  • (2) Вентиляционная решетка 
  • (3) Зона выхода воздуха
  • (4) Зона входа воздуха
  • (5) Ввод кабеля возможен в пределах затемнённой области
  • (6) Главный выключатель (см опцию L26)
  • (7) Силовое подключение (7a: источник питания, 7b: мотор)
  • (8) Опции степеней защиты
  • (9) Степени защиты
    • IP20
    • IP21 опция М21 
    • IP23 опция  M23
    • IP54 опция  M54
  • (10) Транспортировочное устройство

Опции показаны на сером фоне.

 

 

 

от 380 V до 480 V, от 315 kW до 450 kW
от 660 V до 690 V, от 400 kW до 560 kW

Ввод питания сверху (опция M13),Двигатель подключен сверху (опция M78)

 

Степени защиты

 

Обозначения

  • (1) Минимальная  высота потолка при настенной установке
  • (2) Вентиляционная решетка 
  • (3) Зона выхода воздуха
  • (4) Зона входа воздуха
  • (5) Ввод кабеля возможен в пределах затемнённой области
  • (6) Главный выключатель (см опцию L26)
  • (7) Силовое подключение (7a: источник питания, 7b: мотор)
  • (8) Опции степеней защиты
  • (9) Степени защиты
    • IP21
    • IP23 опция  M23
    • IP54 опция  M54
  • (10) Транспортировочное устройство

Опции показаны на сером фоне.

 

 

от 380 V до 480 V, от 315 kW до 450 kW
от 660 V до 690 V, от 400 kW до 560 kW

Ввод питания сверху (опция M13),Двигатель подключен снизу

 

Степени защиты

Обозначения

  • (1) Минимальная  высота потолка при настенной установке
  • (2) Вентиляционная решетка 
  • (3) Зона выхода воздуха
  • (4) Зона входа воздуха
  • (5) Ввод кабеля возможен в пределах затемнённой области
  • (6) Главный выключатель (см опцию L26)
  • (7) Силовое подключение (7a: источник питания, 7b: мотор)
  • (8) Опции степеней защиты
  • (9) Степени защиты
    • IP21
    • IP23 опция  M23
    • IP54 опция  M54
  • (10) Транспортировочное устройство

Опции показаны на сером фоне.

 

 

 

от 380 V до 480 V, от 315 kW до 450 kW
от 660 V до 690 V, от 400 kW до 560 kW

Ввод питания снизу,Двигатель подключен сверху (опция M78)

 

Степени защиты

Обозначения

  • (1) Минимальная  высота потолка при настенной установке
  • (2) Вентиляционная решетка 
  • (3) Зона выхода воздуха
  • (4) Зона входа воздуха
  • (5) Ввод кабеля возможен в пределах затемнённой области
  • (6) Главный выключатель (см опцию L26)
  • (7) Силовое подключение (7a: источник питания, 7b: мотор)
  • (8) Опции степеней защиты
  • (9) Степени защиты
    • IP21
    • IP23 опция  M23
    • IP54 опция  M54
  • (10) Транспортировочное устройство

Опции показаны на сером фоне.

 

 

 

от 380 V до 480 V, от 560 kW до 800 kW
от 660 V до 690 V, от 710 kW до 1200 kW

Ввод питания снизу,Двигатель подключен снизу

 

Степени защиты

Обозначения

  • (1) Минимальная  высота потолка при настенной установке
  • (2) Вентиляционная решетка 
  • (3) Зона выхода воздуха
  • (4) Зона входа воздуха
  • (5) Ввод кабеля возможен в пределах затемнённой области
  • (6) Главный выключатель (см опцию L26)
  • (7) Силовое подключение (7a: источник питания, 7b: мотор)
  • (8) Опции степеней защиты
  • (9) Степени защиты
    • IP20
    • IP21 опция М21
    • IP23 опция  M23
    • IP54 опция  M54
  • (10) Транспортировочное устройство

Опции показаны на сером фоне.

 

 

от 380 V до 480 V, от 560 kW до 800 kW
от 660 V до 690 V, от 710 kW до 1200 kW

Ввод питания сверху (опция M13),Двигатель подключен сверху (опция M78)

 

Степени защиты

Обозначения

  • (1) Минимальная  высота потолка при настенной установке
  • (2) Вентиляционная решетка 
  • (3) Зона выхода воздуха
  • (4) Зона входа воздуха
  • (5) Ввод кабеля возможен в пределах затемнённой области
  • (6) Главный выключатель (см опцию L26)
  • (7) Силовое подключение (7a: источник питания, 7b: мотор)
  • (8) Опции степеней защиты
  • (9) Степени защиты
    • IP21
    • IP23 опция  M23
    • IP54 опция  M54
  • (10) Транспортировочное устройство

Опции показаны на сером фоне.

 

 

 

от 380 V до 480 V, от 560 kW до 800 kW
от 660 V до 690 V, от 710 kW до 1200 kW

Ввод питания сверху (опция M13),Двигатель подключен снизу

 

Степени защиты

 

Обозначения

  • (1) Минимальная  высота потолка при настенной установке
  • (2) Вентиляционная решетка 
  • (3) Зона выхода воздуха
  • (4) Зона входа воздуха
  • (5) Ввод кабеля возможен в пределах затемнённой области
  • (6) Главный выключатель (см опцию L26)
  • (7) Силовое подключение (7a: источник питания, 7b: мотор)
  • (8) Опции степеней защиты
  • (9) Степени защиты
    • IP21
    • IP23 опция  M23
    • IP54 опция  M54
  • (10) Транспортировочное устройство

Опции показаны на сером фоне.

 

 

от 380 V до 480 V, от 560 kW до 800 kW
от 660 V до 690 V, от 710 kW до 1200 kW

Ввод питания сверху (опция M13),Двигатель подключен сверху (опция M78)

 

Степени защиты

 

Обозначения

  • (1) Минимальная  высота потолка при настенной установке
  • (2) Вентиляционная решетка 
  • (3) Зона выхода воздуха
  • (4) Зона входа воздуха
  • (5) Ввод кабеля возможен в пределах затемнённой области
  • (6) Главный выключатель (см опцию L26)
  • (7) Силовое подключение (7a: источник питания, 7b: мотор)
  • (8) Опции степеней защиты
  • (9) Степени защиты
    • IP21
    • IP23 опция  M23
    • IP54 опция  M54
  • (10) Транспортировочное устройство

Опции показаны на сером фоне.

 

 

Механические параметры подключения

В последующей таблице указаны рекомендуемые или максимальные допустимые подключения кабелей питания и кабелей двигателя.

Рекомендованные сечения приведены для указанных в спецификации предохранителей, для одного трехпроводного кабеля и температуре окружающей среды 40 °C

В случае других условий (маршрута прокладки, укладки и вязки кабелей, температура окружающей среды), должна быть проведена инженерная проработка задачи.

Мощность

Преобразователь  

Вес

Подключение питания

Подключение двигателя  

Заземление шкафа

при 400 V или 690 V

при 460 V (60 Гц)

 

(стандартная версия)

Рекомендуемое сечение

Максимальное сечение

Установочный винт

M12

Рекомендуемое сечение

Максимальное сечение

Установочный винт

M12

Установочный винт

M12

Примечания  

кВт  

л.с.

Тип 6SL3710‑ ...

кг

DIN VDE

мм  2

AWG/ MCM

DIN VDE

мм  2

AWG/ MCM

(Кол-во отверстий)

DIN VDE

мм  2

AWG/ MCM

DIN VDE

мм  2

AWG/ MCM

(Кол-во отверстий)

(Кол-во отверстий)

 

от 380 V до 480 V

110

150

‑7LE32‑1AA0

708

2x70

2x(000)

4x240

4x600

(2)

2x70

2x(000)

2x150

2x(400)

(2)

(2)

 

132

200

-7LE32-6AA0

708

2x95

2x(4/0)

4x240

4x600

(2)

2x95

2x(4/0)

2x150

2x(400)

(2)

(2)

 

160

250

-7LE33-1AA0

892

2x120

2x(300)

4x240

4x600

(2)

2x120

2x(300)

2x150

2x(400)

(2)

(2)

 

200

300

-7LE33-8AA0

980

2x120

2x(300)

4x240

4x600

(2)

2x120

2x(300)

2x150

2x(400)

(2)

(2)

 

250

400

-7LE35-0AA0

980

2x185

2x(500)

4x240

4x600

(2)

2x185

2x(500)

2x240

2x600

(2)

(2)

 

315

500

-7LE36-1AA0

1716

2x240

2x(600)

4x240

4x600

(2)

2x240

2x600

4x240

4x600

(2)

(2)

 

400

600

-7LE37-5AA0

1731

2x300

2x(800)

4x240

4x600

(2)

2x300

2x(800)

4x240

4x600

(2)

(10)

Медная шина

450

700

-7LE38-4AA0

1778

4x150

4x(400)

8x240

8x600

(4)

4x150

4x(400)

4x240

4x600

(2)

(16)

Медная шина

560

800

-7LE41-0AA0

2408

4x185

4x(500)

8x240

8x600

(4)

4x185

4x(500)

6x240

6x600

(3)

(18)

Медная шина

710

900

-7LE41-2AA0

2408

4x240

4x600

8x240

8x600

(4)

4x240

4x600

6x240

6x600

(3)

(18)

Медная шина

800

1000

-7LE41-4AA0

2408

6x185

6x(500)

8x240

8x600

(4)

6x185

6x(500)

6x240

6x600

(3)

(18)

Медная шина

от 660 V до 690 V

75

-

‑7LH28‑5AA0

708

50

(00)

4x240

4x600

(2)

50

(00)

2x70

2x(000)

(2)

(2)

 

90

-

-7LH31-0AA0

708

50

(00)

4x240

4x600

(2)

50

(00)

2x150

2x(400)

(2)

(2)

 

110

-

-7LH31-2AA0

708

70

(000)

4x240

4x600

(2)

70

(000)

2x150

2x(400)

(2)

(2)

 

132

-

-7LH31-5AA0

708

95

(4/0)

4x240

4x600

(2)

95

(4/0)

2x150

2x(400)

(2)

(2)

 

160

-

-7LH31-8AA0

892

120

(300)

4x240

4x600

(2)

120

(300)

2x150

2x(400)

(2)

(2)

 

200

-

-7LH32-2AA0

892

2x70

2x(000)

4x240

4x600

(2)

2x70

2x(000)

2x150

2x(400)

(2)

(2)

 

250

-

-7LH32-6AA0

892

2x95

2x(4/0)

4x240

4x600

(2)

2x95

2x(4/0)

2x185

2x(500)

(2)

(2)

 

315

-

-7LH33-3AA0

892

2x120

2x(300)

4x240

4x600

(2)

2x120

2x(300)

2x240

2x(600)

(2)

(2)

 

400

-

-7LH34-1AA0

1716

2x185

2x(500)

4x240

4x600

(2)

2x185

2x(500)

4x240

4x600

(2)

(2)

 

450

-

-7LH34-7AA0

1716

2x185

2x(500)

4x240

4x600

(2)

2x185

2x(500)

4x240

4x600

(2)

(2)

 

560

-

-7LH35-8AA0

1716

2x240

2x(600)

4x240

4x600

(2)

2x240

2x(600)

4x240

4x600

(2)

(2)

 

710

-

-7LH37-4AA0

2300

3x185

3x(500)

8x240

8x600

(4)

3x185

3x(500)

6x240

6x600

(3)

(18)

Медная шина

800

-

-7LH38-1AA0

2408

4x150

4x(400)

8x240

8x600

(4)

4x150

4x(400)

6x240

6x600

(3)

(18)

Медная шина

900

-

-7LH38-8AA0

2408

4x150

4x(400)

8x240

8x600

(4)

4x150

4x(400)

6x240

6x600

(3)

(18)

Медная шина

1000

-

-7LH41-0AA0

2408

4x185

4x(500)

8x240

8x600

(4)

4x185

4x(500)

6x240

6x600

(3)

(18)

Медная шина

1200

-

-7LH41-3AA0

2408

4x240

4x600

8x240

8x600

(4)

4x240

4x600

6x240

6x600

(3)

(18)

Медная шина

 

 


Аксессуары

Цена на сайте указана розничная в ЕВРО без учета НДС.Для уточнения цены и размера предоставляемой скидки - звоните или присылайте заявки

Заказной номерPGОписание продуктаЦена
3NA3132-6017ПЛАВКАЯ ВСТАВКА НИЗКОВОЛЬТНАЯ GL/GG С НЕИЗОЛИРОВАННЫМИ ВЫСТУПАМИ ДЛЯ МОНТ./ДЕМОНТ. ТИПОРАЗМЕР 1, Iном.=125A, Uном.=690В 43.03
3NA3136-6017ПЛАВКАЯ ВСТАВКА НИЗКОВОЛЬТНАЯ GL/GG С НЕИЗОЛИРОВАННЫМИ ВЫСТУПАМИ ДЛЯ МОНТ./ДЕМОНТ. ТИПОРАЗМЕР 1, Iном.=160A, Uном.=690В 43.03
3NA3240-6017ПЛАВКАЯ ВСТАВКА НИЗКОВОЛЬТНАЯ GL/GG С НЕИЗОЛИРОВАННЫМИ ВЫСТУПАМИ ДЛЯ МОНТ./ДЕМОНТ. ТИПОРАЗМЕР 2, Iном.=200A, Uном.=690В 55.44
3NA3244-6017ПЛАВКАЯ ВСТАВКА НИЗКОВОЛЬТНАЯ GL/GG С НЕИЗОЛИРОВАННЫМИ ВЫСТУПАМИ ДЛЯ МОНТ./ДЕМОНТ. ТИПОРАЗМЕР 2, Iном.=250A, Uном.=690В 74.37
3NA3252017ПЛАВКАЯ ВСТАВКА НИЗКОВОЛЬТНАЯ GL/GG С НЕИЗОЛИРОВАННЫМИ ВЫСТУПАМИ ДЛЯ МОНТ./ДЕМОНТ. ТИПОРАЗМЕР 2, Iном.=315A, Uном.=500В 16.71
3NA3252-6017ПЛАВКАЯ ВСТАВКА НИЗКОВОЛЬТНАЯ GL/GG С НЕИЗОЛИРОВАННЫМИ ВЫСТУПАМИ ДЛЯ МОНТ./ДЕМОНТ. ТИПОРАЗМЕР 2, Iном.=315A, Uном.=690В 74.37
3NA3254017ПЛАВКАЯ ВСТАВКА НИЗКОВОЛЬТНАЯ GL/GG С НЕИЗОЛИРОВАННЫМИ ВЫСТУПАМИ ДЛЯ МОНТ./ДЕМОНТ. ТИПОРАЗМЕР 2, Iном.=335A, Uном.=500В 16.71
3NA3352-6017ПЛАВКАЯ ВСТАВКА НИЗКОВОЛЬТНАЯ GL/GG С НЕИЗОЛИРОВАННЫМИ ВЫСТУПАМИ ДЛЯ МОНТ./ДЕМОНТ. ТИПОРАЗМЕР 3, Iном.=315A, Uном.=690В 110.79
3NA3354-6017ПЛАВКАЯ ВСТАВКА НИЗКОВОЛЬТНАЯ GL/GG С НЕИЗОЛИРОВАННЫМИ ВЫСТУПАМИ ДЛЯ МОНТ./ДЕМОНТ. ТИПОРАЗМЕР 3, Iном.=335A, Uном.=690В 110.79
3NA3365017ПЛАВКАЯ ВСТАВКА НИЗКОВОЛЬТНАЯ GL/GG С НЕИЗОЛИРОВАННЫМИ ВЫСТУПАМИ ДЛЯ МОНТ./ДЕМОНТ. ТИПОРАЗМЕР 3, Iном.=500A, Uном.=500В 32.90
3NA3365-6017ПЛАВКАЯ ВСТАВКА НИЗКОВОЛЬТНАЯ GL/GG С НЕИЗОЛИРОВАННЫМИ ВЫСТУПАМИ ДЛЯ МОНТ./ДЕМОНТ. ТИПОРАЗМЕР 3, Iном.=500A, Uном.=690В 101.98
3NA3372017ПЛАВКАЯ ВСТАВКА НИЗКОВОЛЬТНАЯ GL/GG С НЕИЗОЛИРОВАННЫМИ ВЫСТУПАМИ ДЛЯ МОНТ./ДЕМОНТ. ТИПОРАЗМЕР 3, Iном.=630A, Uном.=500В 32.90
3NA3475017ПЛАВКАЯ ВСТАВКА НИЗКОВОЛЬТНАЯ GL/GG С НЕИЗОЛИРОВАННЫМИ ВЫСТУПАМИ ДЛЯ МОНТ./ДЕМОНТ. ТИПОРАЗМЕР 4, Iном.=800A, Uном.=500В 291.53
3NE1022-2016ПЛАВКАЯ ВСТАВКА SITOR КАТЕГОРИЯ GR, DIN 43620 125A , AC 690 V ,(ТИПОРАЗМЕР 00) 46.01
3NE1224-2016ПЛАВКАЯ ВСТАВКА SITOR КАТЕГОРИЯ GR, DIN 43620 160A , AC 690 V ,(ТИПОРАЗМЕР 1) 90.57
3NE1225-2016ПЛАВКАЯ ВСТАВКА SITOR КАТЕГОРИЯ GR, DIN 43620 200A , AC 690 V ,(ТИПОРАЗМЕР 1) 90.57
3NE1227-2016ПЛАВКАЯ ВСТАВКА SITOR КАТЕГОРИЯ GR, DIN 43620 250A , AC 690 V ,(ТИПОРАЗМЕР 1) 93.78
3NE1230-2016ПЛАВКАЯ ВСТАВКА SITOR КАТЕГОРИЯ GR, DIN 43620 315A , AC 690 V ,(ТИПОРАЗМЕР 1) 97.00
3NE1331-2016ПЛАВКАЯ ВСТАВКА SITOR КАТЕГОРИЯ GR, DIN 43620 350A , AC 690 V ,(ТИПОРАЗМЕР 2) 128.39
3NE1334-2016ПЛАВКАЯ ВСТАВКА SITOR КАТЕГОРИЯ GR, DIN 43620 500A , AC 690 V ,(ТИПОРАЗМЕР 2) 143.01
3NE1435-2016ПЛАВКАЯ ВСТАВКА SITOR КАТЕГОРИЯ GR, DIN 43620 560A , AC 690 V ,(ТИПОРАЗМЕР 3) 176.74
3NE1436-2016ПЛАВКАЯ ВСТАВКА SITOR КАТЕГОРИЯ GR, DIN 43620 630A , AC 690 V ,(ТИПОРАЗМЕР 3) 184.04
3NE1437-2016ПЛАВКАЯ ВСТАВКА SITOR КАТЕГОРИЯ GR, DIN 43620 710A , AC 400 V ,(ТИПОРАЗМЕР 3) 197.17
3NE1438-2016ПЛАВКАЯ ВСТАВКА SITOR КАТЕГОРИЯ GR, DIN 43620 800A , AC 500 V ,(ТИПОРАЗМЕР 3) 213.24
3NE1448-2016ПЛАВКАЯ ВСТАВКА SITOR КАТЕГОРИЯ GR, DIN 43620 800A , AC 400 V ,(ТИПОРАЗМЕР 3) 229.33