0

Разделы

3RB22, 3RB23 для высокофункциональных применений - Электронные реле перегрузки 3RB2

3RB22, 3RB23 для высокофункциональных применений - Электронные реле перегрузки 3RB2

Модуль обработки данных 3RB22/3RB23 

(1) Зеленый светодиод "Ready" (Готов):
Продолжительное свечение зеленым светом означает, что устройство работает правильно.

(2) Красный светодиод "Ground Fault" (Замыкание на землю):
Постоянное свечение красным светом сигнализирует о замыкании на землю.

(3) Красный светодиод  "Thermistor"  (Термистор):
Постоянное свечение красным светом сигнализирует о срабатывании термисторной защиты.

(4) Красный светодиод "Overload" (Перегрузка):
Постоянное свечение красным светом сигнализирует о срабатывании реле по перегрузке; мигание светодиода сигнализирует о возникновении  перегрузки и неизбежном срабатывании, если это событие  не будет устранено (предупреждение о перегрузке).

(5) Поворотные переключатели установки номинального тока двигателя и класса расцепления:
Настройка устройства на номинальный ток двигателя и требуемый класс расцепления, зависящий от условий пуска, простым поворотом переключателей

(6) Переключатель выбора ручной/автоматической функций RESET (Сброс):
Этим выключателем Вы можете выбрать функцию ручного или автоматического Сброса.

(7) Кнопка Test /RESET (Тест/Сброс):
Позволяет проводить испытание всех важных компонентов устройства и функций, плюс переустанавливать устройство после расцепления, когда выбрана ручная функция "RESET" (Сброс).

(8) Присоединительные зажимы (съемный терминальный блок):
Одинаковые для всех типоразмеров терминальные блоки позволяют присоединять до двух проводников  различного поперечного сечения вспомогательных цепей, цепей управления и датчиков. Присоединение возможно с помощью винтовых зажимов и альтернативно пружинных

(9) Функциональный модуль расширения 3RB29 85:
Позволяет добавлять большое количество функций, например встроенную функцию обнаружения замыкания на землю и/или аналоговый выход  с соответствующими сигналами.

Измерительный модуль тока 3RB29 .6 

Модульное электронное реле перегрузки  с внешним источником питания 3RB22 (с моностабильными вспомогательными контактами) и 3RB23 (с бистабильными вспомогательными контактами ) до 630 A (до 820 A с использованием дополнительных трансформаторов) были разработаны для защиты асинхронных двигателей с обратнозависимой от тока задержкой срабатывания, с нормальными и тяжелыми условиями пуска (см. Функции) с целью предотвращения чрезмерных тепловых перенапряжений  из-за перегрузок, несимметрии нагрузки по фазам или обрыва линейного провода. Перегрузка, несимметричная нагрузка по фазам,  или обрыв линейного провода приводят к увеличению тока, потребляемого двигателем, выше установленного номинального тока двигателя. Этот ток измеряется  измерительным модулем тока  и оценивается специальным электронным модулем оценки, которые подключены друг к другу. Оценивающий электронный модуль  управляет вспомогательными контактами. Вспомогательные контакты отключают нагрузку посредством контактора. Время отключения зависит от отношения тока нагрузки и тока уставки Ie и сохраняется в виде не зависящей от времени работы реле стабильной характеристики расцепления (см. Характеристики расцепления). О состоянии расцепления сигнализирует постоянно горящий красный светодиод  "Overload" (Перегрузка).

Мигающий светодиодный индикатор сигнализирует о возникновении перегрузки, несимметрии нагрузки по фазам, обрыве линейного провода, приводящим к неизбежному срабатыванию реле из-за превышения допустимой величины тока. Это предупреждение также может быть передано как сигнал через вспомогательные контакты.

В дополнение к описанной обратнозависимой от тока задержке срабатывания защиты, предотвращающей чрезмерные перегревы двигателей, электронные реле перегрузки 3RB22/3RB23 также позволяют осуществлять прямой контроль температуры обмоток двигателей (полная защита двигателей) путем отказоустойчивого присоединения цепей датчика температуры PTC. С этой температурозависимой защитой  двигатели могут быть защищены от перегрева, вызванного уменьшением потока охлаждающего воздуха, которое, например, не может быть обнаружено только путем контроля тока. В случае перегревания устройство отключает контактор  и, таким образом, двигатель посредством вспомогательных контактов. О состоянии расцепления сигнализирует постоянно светящийся красный светодиод  "Thermistor" (Термистор).

Для защиты нагрузки от замыканий на землю через высокое сопротивление, вызванных повреждением изоляции, высокой влажностью, конденсацией воды и т.д., электронные реле перегрузки 3RB22/3RB23 имеют встроенную функцию защиты от замыкания на землю. Для этого реле оснащается дополнительным модулем расширения  (более подробно см. Данные для выбора и заказа). Эта функция не доступна при использовании реле совместно с контакторными сборками для пуска асинхронных двигателей переключением со звезды на треугольник. При возникновении замыкания на землю реле  3RB22/3RB23  срабатывает мгновенно. Состояние расцепления  можно определить визуально с помощью красного светодиода "Ground Fault" (Замыкание на землю). Получение сигнала через вспомогательные контакты также возможно.

После расцепления по перегрузке, несимметричной нагрузке по фазам, обрыву линейного провода, срабатыванию термисторной защиты или защиты от замыкания на землю реле повторно вручную или автоматически переустанавливается  после того, как время восстановления истекло (см. Функции).

В соединении с модулем расширения функций ток двигателя, измеряемый микропроцессором, может быть представлен в виде аналогового сигнала  DC 4 ... 20 мA, который может быть использован  для работы щитовых измерительных приборов или подаваться на аналоговые входы программируемых логических контроллеров. С дополнительным аналоговым модулем AS-Interface величины тока могут быть также переданы через шинную систему  AS-i.

Эти устройства изготовлены в соответствии с требованиями основных руководящих документов по экологии и из экологически чистых материалов, допускающих многократное использование.

Они соответствуют всем основным мировым стандартам и сертификатам.

Область применения

Области промышленности

Электронные реле перегрузки 3RB22/3RB23 предназначены для использования во всех отраслях промышленности, где необходимы гарантированная температурозависимая с обратнопропорциональной току задержкой срабатывания защита  электрических нагрузок (например, двигателей) при нормальных и тяжелых условиях пуска (от CLASS 5 до CLASS 30), минимизация времени проектирования и ввода в эксплуатацию, материальных запасов и потребления энергии, повышение  готовности предприятия и условий управления и обслуживания.

Применение

Электронные реле перегрузки  3RB22/3RB23 были разработаны для защиты трехфазных асинхронных и однофазных двигателей переменного тока.

Для защиты однофазных двигателей переменного тока в электронных реле перегрузки 3RB22/3RB23 силовые цепи измерительного модуля тока должны быть соединены последовательно (см. Схемные решения).

Условия окружающей среды

Устройства устойчивы к внешним воздействиям, таким  как удары, коррозийные окружающие среды, старение, температурные колебания.

Для температурного диапазона от -25 C до +60 °C электронные реле перегрузки 3RB22/3RB23 осуществляют температурную компенсацию в соответствии  IEC 60947-4-1.

Использование устройств ниже -25 °C или выше +60 °C по запросу.

"Повышенной безопасности" тип защиты EEx e в соответствии с директивой ATEX  94/9/EC

Электронные реле перегрузки  3RB22/3RB23 пригодны для защиты от перегрузки взрывозащищенных двигателей с типом защиты с "повышенной безопасностью" EEx e. Реле удовлетворяют требованиям  EN 60079-7 (Электрические аппараты для потенциально взрывчатых атмосфер с "Повышенной безопасностью "e“).

При использовании электронного реле перегрузки 3RB23 для защиты EEx e двигателей рекомендуется дополнительный контроль напряжения источника питания.

Основные требования директивы ATEX 94/9/EG по безопасности и  охране здоровья выполнены в соответствии с: 

  • EN 60947-1
  • EN 60947-4-1
  • EN 60947-5-1
  • EN 60079-14

Свидетельство об испытании  для применения типа EU для Группы II Категории (2) G/D . Номер по требованию.

Дизайн

Концепция устройства

Электронные реле перегрузки 3RB22/3RB23  основаны на модульной концепции устройств. Каждое устройство всегда состоит из модуля оценки, размеры которого не зависят от тока двигателя, и измерительного модуля тока, типоразмер которого зависит от тока двигателя. Эти два модуля электрически соединяются между собой кабелем через системный интерфейс.

Основные функциональные возможности модуля оценки могут быть расширены благодаря наличию модулей расширения. Функциональные модули расширения подключаются к модулю оценки через специальный разъем.

Варианты установки

Измерительные модули тока

Измерительные модули тока типоразмеров S00/S0 и S2/S3 предназначены для отдельной установки. Измерительные модули тока типоразмеров от S6 до S10/S12 пригодны для отдельной установки и для прямой установки.

Модули оценки

Модули оценки могут быть установлены непосредственно на измерительном модуле тока (только типоразмеры S00/S0 и S2/S3) или отдельно.

Для получения дополнительной информации о принадлежностях для установки,  см. Технические спецификации и Данные для выбора и заказа.

Подключение

Силовые цепи  (измерительный модуль тока)

Для типоразмеров S00/S0, S2/S3 и S6  силовые цепи подключаются путем пропускания силовых проводников через отверстия проходного трансформатора измерительного модуля тока и подключаются непосредственно к зажимам контактора.

Для типоразмеров S6 и S10/S12  силовые цепи могут быть подсоединены к шинным выводам реле. Кроме того реле могут иметь рамочные зажимы или винтовое подключение.

Вспомогательные цепи (модуль оценки)

Подключение вспомогательных цепей  (съемный терминальный блок) возможно к винтовым зажимам или к пружинным зажимам (специальное исполнение).

Для получения дополнительной информации о принадлежностях для подключения, см. Технические спецификации  и Данные для выбора и заказа.

Реле перегрузки для пусковых контакторных сборок переключением со звезды на треугольник

Когда реле перегрузки используется в комбинации контакторов для пуска переключением со звезды на треугольник, необходимо отметить , что только 0.58 часть линейного тока двигателя протекает через линейный контактор. Реле перегрузки, установленное на линейный контактор, тоже должно быть настроено на 0.58 часть тока двигателя.

При использовании электронных реле перегрузки 3RB22/3RB23 в комбинации с контакторными сборками для пуска переключением со звезды на треугольник модули расширения с функцией определения замыкания на землю не должны применяться.

Работа с преобразователями частоты

Электронные реле перегрузки 3RB22/3RB23 предназначены для работы в сетях с частотами 50/60 Гц и относящимися к ним гармоническими составляющими. Это позволяет использовать реле перегрузки 3RB22/3RB23 со стороны питания преобразователя частоты.

Если контактор двигателя  требуется на стороне выхода преобразователя частоты, Siemens рекомендует для этих целей устройства термисторной защиты двигателей 3RN или тепловые реле перегрузки 3RU11.

Функции

Основные функции

Электронные реле перегрузки 3RB22/3RB23 предназначены для:

  • Защиты двигателей от перегрузки с обратнозависимой от тока нагрузки задержкой срабатывания
  • Защиты двигателей от несимметричной нагрузки по фазам  с обратнозависимой от тока нагрузки задержкой срабатывания
  • Защиты двигателей от обрыва линейного провода с обратнозависимой от тока нагрузки задержкой срабатывания
  • Температурозависимой защиты двигателей с использованием датчика PTC 
  • Защиты нагрузки от замыкания на землю через высокое сопротивление (встроенное определение замыкания на землю; обнаружение токов утечки  > 30% от установленной величины тока Ie)
  • Предупреждения о перегрузке
  • Получения выходного аналогового сигнала DC 4  -  20 мА, пропорционального току электродвигателя

Основные функции модуля оценки в комбинации с модулями расширения представлены в нижеприведенной таблице:

Модуль оценки

Модуль расширения функций

Основные функции

3RB22 83-4AA1

3RB22 83-4AC1

3RB23 83-4AA1

3RB23 83-4AC1

Нет

защита с  обратнозависимой от тока нагрузки задержкой срабатывания,
температурозависимая защита,
электрический дистанционный сброс (RESET),
предупреждение о перегрузке

3RB29 85-2CA1

защита с  обратнозависимой от тока нагрузки задержкой срабатывания,
температурозависимая защита,
внутреннее определение замыкания на землю,
электрический дистанционный сброс (RESET),
предупреждение о перегрузке

3RB29 85-2CB1

защита с  обратнозависимой от тока нагрузки задержкой срабатывания, 
температурозависимая защита,
внутреннее определение замыкания на землю,
электрический дистанционный сброс (RESET),
предупреждение о замыкании на землю

3RB29 85-2AA0

защита с  обратнозависимой от тока нагрузки задержкой срабатывания, 
температурозависимая защита,
электрический дистанционный сброс (RESET),
предупреждение о перегрузке,
аналоговый выход

3RB29 85-2AA1

защита с  обратнозависимой от тока нагрузки задержкой срабатывания,
температурозависимая защита,
внутреннее определение замыкания на землю,
электрический дистанционный сброс (RESET),
предупреждение о перегрузке,
аналоговый выход

3RB29 85-2AB1

защита с  обратнозависимой от тока нагрузки задержкой срабатывания,
температурозависимая защита,
внутреннее определение замыкания на землю,
электрический дистанционный сброс (RESET),
предупреждение о замыкании на землю,
аналоговый выход


Цепи управления

Электронные реле перегрузки 3RB22/3RB23  требуют внешнего электропитания, т.е. необходимо дополнительное напряжение питания. Питание поступает через  источник питания с широким диапазоном питающего напряжения от 24 до 240 В AC/DC .

Защита от короткого замыкания

Для защиты от коротких замыканий должны использоваться плавкие предохранители и автоматические выключатели. Выбор соответствующих устройств защиты электронных реле перегрузки 3RB22/3RB23 от коротких замыканий  с / без контактора см. в Технических спецификациях и Данных для выбора и заказа.

Классы расцепления

Электронные реле перегрузки 3RB22/3RB23 предназначены для нормального и тяжелого пуска. Требуемый класс расцепления (CLASS 5, 10, 20 или 30) может быть установлен с помощью поворотного переключателя  в зависимости от конкретных условий пуска.

Более подробно о классах расцепления см. Кривые характеристик.

Защита от обрыва линейного провода

Электронные реле перегрузки 3RB22/3RB23 имеют защиту от обрыва линейного провода (см. Кривые характеристик) чтобы минимизировать повышение температуры двигателя в течение однофазного режима работы.

Настройки

Электронные реле перегрузки  3RB22/3RB23 настраиваются на номинальный ток  двигателя посредством двух поворотных переключателей.

  • Верхний поворотный переключатель (CLASS/Iemax) разделен на 4 диапазона: 1 A, 10 A, 100 A и 1000 A. Необходимо выбрать зону, соответствующую номинальному току двигателя и измерительному модулю тока, который используется с  ним. Одновременно выбирается требуемый класс расцепления (CLASS 5, 10, 20 или 30).
  • Поворотный переключатель, расположенный ниже, со шкалой в процентах (10% ... 100%) используется для установки номинального тока двигателя в процентах от диапазона, выбранного верхним поворотным переключателем.

Пример

  • Номинальная мощность двигателя = 45 кВт (AC 50 Гц, 400 В)
  • Номинальный ток двигателя = 80 A
  • Требуемый класс расцепления = CLASS 20
  • Выбранный трансформатор: от 10 до 100 A

Решение

  • Шаг 1: Используя верхний поворотный переключатель (CLASS) выбираем диапазон 100 A 
  • Шаг 2: В пределах 100 A устанавливаем класс расцепления CLASS 20
  • Шаг 3: Устанавливаем нижний поворотный переключатель на 80% (= 0.8)   100 A × 0.8 = 80 A.

Если ток, установленный на модуле оценки, не соответствует току подключенного к нему трансформатору тока, появится сообщение об ошибке.

Ручной и автоматический сброс 

На электронных реле перегрузки 3RB22/3RB23  ползунковый переключатель может быть использован для выбора ручного или автоматического сброса (переустановки).

При выборе ручного сброса, сброс производится непосредственно на устройстве после расцепления (срабатывания) нажатием голубой кнопки TEST/RESET. Дистанционно сброс может быть произведен электрически перемыканием клемм Y1 и Y2.

Если ползунковый переключатель  установлен в положение, соответствующее автоматическому сбросу, реле после срабатывания переустанавливается автоматически.

Время между расцеплением и автоматическим сбросом определяется как время восстановления.

Время восстановления

Время восстановления электронных реле перегрузки 3RB22/3RB23 после расцепления с обратнозависимой от тока задержкой приблизительно 3 минуты независимо от выбранного способа сброса. Время восстановления позволяет нагрузке остывать.

Однако, в случае температурозависимой защиты с использованием термисторного датчика PTC, устройство может быть переустановлено вручную или автоматически только после снижения температуры обмоток двигателя в месте установки термисторов PTC на 5 градусов по Кельвину ниже температуры срабатывания термисторной защиты.

После срабатывания по причине замыкания на землю электронные реле перегрузки 3RB22/3RB23 могут быть переустановлены немедленно без времени восстановления.

Функция тестирования

Кнопка с комбинированными функциями TEST/RESET может быть использована для проверки правильности работы реле. Испытание может быть прервано в любое время  отпусканием кнопки TEST/RESET.

Светодиоды, конфигурация устройства (конфигурация зависит от того, какой модуль расширения подключен) и аппаратные средства  проверяются в то время как кнопка остается нажатой в течение 6 секунд. Одновременно и в течение последующих 18 секунд постоянный ток, пропорциональный максимальному фазному току силовой цепи, подается на зажимы  I(+) и I(-). Производится сравнение  аналогового сигнала, который измеряется, с током силовой цепи, в результате может быть определена точность измерения тока. В этом случае 4 мА соответствуют 0%, а  20 мА - 125% установленного значения тока. После 24 секунд вспомогательные контакты переключаются, и соответствующий фидер выключается как результат окончания испытания.

После тестового расцепления исправное реле сбрасывается (переустанавливается) нажатием на кнопку TEST/RESET. Если обнаружена неисправность аппаратных средств, устройство срабатывает и не может быть переустановлено.

Самоконтроль

Электронные реле перегрузки 3RB22/3RB23 имеют функцию самоконтроля, т.е. устройство постоянно контролирует собственные основные функции и переходит в состояние расцепления (срабатывает), если обнаружена внутренняя неисправность.

Отображение рабочего состояния

Специфическое рабочее состояние электронных реле перегрузки 3RB22/3RB23 отображается с помощью светодиодов:

  • Зеленый светодиод "Ready" (Готов): Продолжительное свечение зеленым светом означает, что реле перегрузки готово к работе. Реле перегрузки 3RB22/3RB23 не готово к работе  (LED "OFF" - светодиод выключен)  если отсутствует напряжение питания цепей управления или если тестирование функциональных возможностей дало отрицательный результат.
  • Красный светодиод  "Ground fault" (Замыкание на землю): Продолжительное свечение красным светом сигнализирует о замыкании на землю.
  • Красный светодиод  "Thermistor" (Термистор): Продолжительное свечение красным светом сигнализирует о срабатывании температурозависимой защиты.
  • Красный светодиод  "Overload" (Перегрузка): Продолжительное свечение красным светом сигнализирует о срабатывании защиты по перегрузке с обратнозависимой от тока задержкой; мигание красным светом сигнализирует о возникновении перегрузки, которая может привести к неизбежному срабатыванию защиты с обратнозависимой от тока задержкой (Предупреждение о возникновении перегрузки).

Вспомогательные контакты

Электронные реле перегрузки 3RB22/3RB23  имеют два выхода, каждый с одним NO (замыкающим)  и одним NC (размыкающим) контактами.  Их основное назначение / функция может зависеть от функциональных модулей расширения.

3RB22 и 3RB23 отличаются видом характеристик расцепления их вспомогательных контактов - моностабильные или бистабильные:

Моностабильные электронные реле перегрузки 3RB22  примут состояние "tripped" (расцепления, срабатывания) если исчезнет напряжение питания цепей управления (>200 мс), и возвратятся в прежнее состояние (в котором они были до исчезновения напряжения питания цепей управления), когда произойдет восстановление напряжения. Эти устройства следует применять на предприятиях,  где напряжение питания цепей управления строго не контролируется.

Бистабильные электронные реле перегрузки 3RB23 не изменяют своего состояния "tripped" (расцепления, срабатывания) или  "not tripped" (не расцеплено, не сработало), если произошла авария напряжения питания цепей управления. Вспомогательные контакты  изменяют свое состояние только в случае перегрузки и если напряжение питания присутствует. Эти устройства рекомендуется применять на предприятиях, где напряжения управления контролируется отдельно.

Реакция на пропадание напряжения питания цепей управления

Если напряжение питания цепей управления исчезает на время более 0.2 с, выходные реле реагируют по-разному в зависимости от исполнения: моностабильные или бистабильные.

Реакция выходных реле 

в случае:

Моностабильные

3RB22

Бистабильные

3RB23

Авария  напряжения питания цепей управления

Устройство переходит в состояние расцепления (срабатывания)

Изменение состояния вспомогательных контактов не происходит

Восстановление напряжения питания цепей управления без предшествующего расцепления 

Устройство сбрасывается (переустанавливается)

Изменение состояния вспомогательных контактов не происходит

Восстановление напряжения питания цепей управления после предшествующего расцепления

Устройство остается в состоянии расцепления

Сброс (Переустановка):

  • Для расцепления по перегрузке, после 3 минут
  • При срабатывании термисторной защиты, после снижения температуры двигателя более чем на 5 K ниже температуры срабатывания
  • Для расцепления при замыкании на землю, немедленно

Устройство остается в состоянии расцепления

Сброс (Переустановка):

  • Для расцепления по перегрузке, после 3 минут
  • При срабатывании термисторной защиты, после снижения температуры двигателя более чем на 5 K ниже температуры срабатывания
  • Для расцепления при замыкании на землю, немедленно

Изменение состояния выходов моностабильных и бистабильных реле 

Технические данные [PDF]

Загрузить PDF-файл.

Для просмотра информации в формате PDF необходимо установить Adobe Acrobat Reader.
Adobe Acrobat Reader

Технические данные

Дополнительную информацию Вы можете получить, нажав кнопку с этим символом.

Дополнительно

Электронные реле перегрузки 3RB22/3RB23 могут комплектоваться следующими дополнительными принадлежностями:

  • Съемной крышкой  для модуля оценки
  • Рамочными зажимами для измерительных модулей тока  типоразмеров от S6 до S10/S12
  • Крышками для зажимов силовых цепей измерительного модуля тока типоразмеров от S6 до S10/S12

Характеристика

Характеристики расцепления являются зависимостями времени расцепления от тока расцепления, представленного в относительных величинах к току уставки Ie и приведены для симметричной трехфазной нагрузки  и однофазной нагрузки из холодного состояния.

Наименьший ток, приводящий реле в состояние расцепления называется минимальным током расцепления . В соответствии  с  IEC 60947-4-1 этот ток должен находиться в указанных пределах. Пределы минимального тока расцепления для электронных реле перегрузки 3RB22/3RB23 для симметричной трехфазной нагрузки находятся между 105% и 120% от тока уставки.

Характеристики расцепления начинаются с минимальных значений тока расцепления  и продолжаются до высоких величин токов расцепления. Каждая из характеристик соответствует определенному классу расцепления (CLASS 10, CLASS 20 и т.д.). Классы расцепления  определяют временные интервалы, в пределах которых происходит расцепление реле перегрузки с током кратностью 7.2 тока уставки Ie из холодного состояния для симметричной трехфазной нагрузки.

Время расцепления согласно IEC 60947-4-1, раздел E, является следующим для:

Класс расцепления

Время расцепления

CLASS 5

от 3 до 5 с

CLASS 10

от 5 до 10 с

CLASS 20

от 10 до 20 с

CLASS 30

от 20 до 30 с


Характеристики расцепления для трехполюсного реле перегрузки из холодного состояния (см. иллюстрацию 1) применять, только если все три фазы одновременно нагружены одинаковым током. В случае обрыва линейного провода или несимметрии тока по фазам более чем 40%, электронные реле перегрузки 3RB22/3RB23 отключает контактор более быстро, чтобы минимизировать нагревание двигателей в соответствии с характеристиками расцепления для однофазного режима работы из холодного состояния (см. иллюстрацию 2).

По сравнению с холодным состояние, двигатели при рабочей температуре имеют более низкий температурный запас. В этом случае время расцепления электронных реле перегрузки 3RB22/3RB23 уменьшается приблизительно на 30% при нагрузке с током равным по величине току уставки  Ie для расширенного периода.

Характеристики расцепления для трехфазной нагрузки

Иллюстрация 1

Характеристики расцепления для однофазной нагрузки

Иллюстрация  2

Вышеприведенные иллюстрации - схематические представления характеристик  расцепления. Конкретные  индивидуальные  кривые характеристик расцепления электронных реле перегрузки 3RB22/3RB23 могут быть представлены по запросу Технической поддержкой по следующему адресу электронной почты:

 http://Technical-assistance@siemens.com/

Чертеж

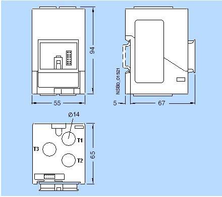
Модули оценки 3RB22 83-4, 3RB23 83-4

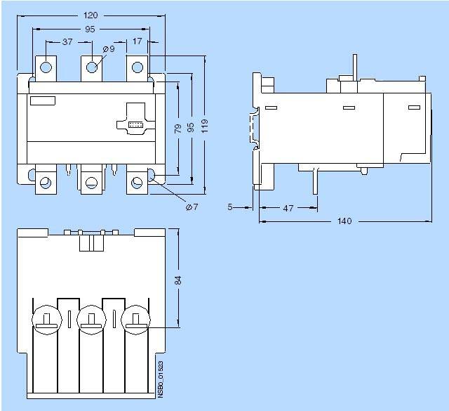
Измерительные модули тока 3RB29 06-2BG1, 3RB29 06-2DG1

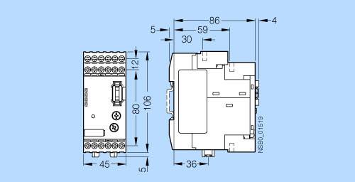
Измерительный модуль тока 3RB29 06-2JG1

Измерительный модуль тока 3RB29 56-2TG2

Измерительный модуль тока 3RB29 56-2TH2

Измерительный модуль тока 3RB29 66-2WH2

Схема подключения

Защита однофазных двигателей

(без внутреннего обнаружения замыкания на землю)

3RB29 06-2.G1, 3RB29 56-2TG2

3RB29 56-2TH2, 3RB29 66-2WH2

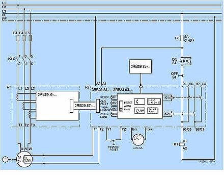
Схематическое представление возможного применения (3-фазная нагрузка)

Подключение

Модули оценки

Функциональные модули расширения

Основные функции

Входы

 

 

 

A1/A2

T1/T2

Y1/Y2

3RB22 83-4AA1

3RB22 83-4AC1

3RB23 83-4AA1

3RB23 83-4AC1

Нет

Обратнозависимая от тока задержка срабатывания, термисторная защита, электрический дистанционный сброс, предупреждение о перегрузке

Источник питания 24 ... 240 V AC/DC

Для подключения датчика 
PTC

Электрический дистанционный сброс

3RB29 85-2CA1

Обратнозависимая от тока задержка срабатывания, термисторная защита, внутреннее определение замыкания на землю, электрический дистанционный сброс, предупреждение о перегрузке

Источник питания 24 ... 240 V AC/DC

Для подключения датчика  PTC

Электрический дистанционный сброс

3RB29 85-2CB1

Обратнозависимая от тока задержка срабатывания, термисторная защита, внутреннее определение замыкания на землю , электрический дистанционный сброс, сигнализация о замыкании на землю

Источник питания 24 ... 240 V AC/DC

Для подключения датчика  PTC

Электрический дистанционный сброс

3RB29 85-2AA0

Обратнозависимая от тока задержка срабатывания, термисторная защита, электрический дистанционный сброс, предупреждение о перегрузке, аналоговый выход

Источник питания 24 ... 240 V AC/DC

Для подключения датчика  PTC

Электрический дистанционный сброс

3RB29 85-2AA1

Обратнозависимая от тока задержка срабатывания, термисторная защита, внутреннее определение замыкания на землю , электрический дистанционный сброс, предупреждение о перегрузке, аналоговый выход

Источник питания 24 ... 240 V AC/DC

Для подключения датчика  PTC

Электрический дистанционный сброс

3RB29 85-2AB1

Обратнозависимая от тока задержка срабатывания, термисторная защита, внутреннее определение замыкания на землю, электрический дистанционный сброс, сигнализация о замыкании на землю, аналоговый выход

Источник питания 24 ... 240 V AC/DC

Для подключения датчика  PTC

Электрический дистанционный сброс


 

Модули оценки

Функциональные модули расширения

Выходы

 

 

95/96 NC

97/98 NO

05/06 NC

07/08 NO

3RB22 83-4AA1

3RB22 83-4AC1

3RB23 83-4AA1

3RB23 83-4AC1

Нет

Отключение контактора (обратнозависимая от тока задержка срабатывания/термисторная защита)

Сигнал "Расцеплено"

Предупреждение о перегрузке

Предупреждение о перегрузке

3RB29 85-2CA1

Отключение контактора (обратнозависимая от тока задержка срабатывания/термисторная защита + защита от замыкания на землю)

Сигнал "Расцеплено"

Предупреждение о перегрузке

Предупреждение о перегрузке

3RB29 85-2CB1

Отключение контактора (обратнозависимая от тока задержка срабатывания/термисторная защита)

Сигнал "Расцеплено"

Отключение контактора  (защита от замыкания на землю)

Сигнализация о расцеплении из-за замыкания на землю

3RB29 85-2AA0

Отключение контактора (обратнозависимая от тока задержка срабатывания/термисторная защита)

Сигнал "Расцеплено"

Предупреждение о перегрузке

Предупреждение о перегрузке

3RB29 85-2AA1

Отключение контактора (обратнозависимая от тока задержка срабатывания/термисторная защита + защита от замыкания на землю)

Сигнал "Расцеплено"

Предупреждение о перегрузке

Предупреждение о перегрузке

3RB29 85-2AB1

Отключение контактора (обратнозависимая от тока задержка срабатывания/термисторная защита)

Сигнал "Расцеплено"

Отключение контактора (защита от замыкания на землю)

Сигнализация о расцеплении из-за замыкания на землю


 

 

Заказные данные

Заказной №ОписаниеВес (кг)ДоставкаМин. зак. (шт)
3RB2283-4AA1PROCESSING UNIT FOR FULL MOTOR PROTECTION ТИПОРАЗМЕР S00...S12, КЛАСС 5...30 ОТДЕЛЬНОСТОЯЩЕЕ ГЛАВНАЯ ЦЕПЬ: -- ВСПОМ.ЦЕПИ: ВИНТ.ПОДСОЕДИНЕНИЕ РУЧНОЙ-АВТОМАТИЧЕСКИЙ СБРОС0.33 - 5 недель (P)1
3RB2283-4AC1PROCESSING UNIT FOR FULL MOTOR PROTECTION ТИПОРАЗМЕР S00...S12, КЛАСС 5...30 ОТДЕЛЬНОСТОЯЩЕЕ ГЛАВНАЯ ЦЕПЬ: -- ВСПОМ.ЦЕПИ: ПРУЖИННЫЕ КЛЕММЫ РУЧНОЙ-АВТОМАТИЧЕСКИЙ СБРОС0.33 - 5 недель (A)1
3RB2383-4AA1PROCESSING UNIT FOR FULL MOTOR PROTECTION ТИПОРАЗМЕР S00...S12, КЛАСС 5...30 ОТДЕЛЬНОСТОЯЩЕЕ ГЛАВНАЯ ЦЕПЬ: -- ВСПОМ.ЦЕПИ: ВИНТ.ПОДСОЕДИНЕНИЕ РУЧНОЙ-АВТОМАТИЧЕСКИЙ СБРОС0.33 - 5 недель (P)1
3RB2383-4AC1PROCESSING UNIT FOR FULL MOTOR PROTECTION ТИПОРАЗМЕР S00...S12, КЛАСС 5...30 ОТДЕЛЬНОСТОЯЩЕЕ ГЛАВНАЯ ЦЕПЬ: -- ВСПОМ.ЦЕПИ: ПРУЖИННЫЕ КЛЕММЫ РУЧНОЙ-АВТОМАТИЧЕСКИЙ СБРОС0.33 - 5 недель (A)1
3RB2906-2BG1ТРАНСФОРМАТОР ТОКА 0.3...3 A FOR 3RB22/23 ТИПОРАЗМЕР S00/S0 ОТДЕЛЬНОСТОЯЩЕЕ ГЛАВНАЯ ЦЕПЬ: ПРОХОДНЫЕ ТРАНСФОРМАТОРЫ ВСПОМ.ЦЕПИ: --0.13 - 5 недель (P)1
3RB2906-2DG1ТРАНСФОРМАТОР ТОКА 2.4...25 A FOR 3RB22/23 ТИПОРАЗМЕР S00/S0 ОТДЕЛЬНОСТОЯЩЕЕ ГЛАВНАЯ ЦЕПЬ: ПРОХОДНЫЕ ТРАНСФОРМАТОРЫ ВСПОМ.ЦЕПИ: --0.153 - 5 недель (P)1
3RB2906-2JG1ТРАНСФОРМАТОР ТОКА 10...100 A FOR 3RB22/23 ТИПОРАЗМЕР S2/S3 ОТДЕЛЬНОСТОЯЩЕЕ ГЛАВНАЯ ЦЕПЬ: ПРОХОДНЫЕ ТРАНСФОРМАТОРЫ ВСПОМ.ЦЕПИ: --0.353 - 5 недель (P)1
3RB2956-2TG2ТРАНСФОРМАТОР ТОКА 20...200 A FOR 3RB22/23 ТИПОРАЗМЕР S6 ДЛЯ МОНТАЖА НА КОНТАКТОР / ОТДЕЛЬНОСТОЯЩЕЕ ГЛАВНАЯ ЦЕПЬ: ПРОХОДНЫЕ ТРАНСФОРМАТОРЫ ВСПОМ.ЦЕПИ: --0.63 - 5 недель (P)1
3RB2956-2TH2ТРАНСФОРМАТОР ТОКА 20...200 A FOR 3RB22/23 ТИПОРАЗМЕР S6 ДЛЯ МОНТАЖА НА КОНТАКТОР / ОТДЕЛЬНОСТОЯЩЕЕ ГЛАВНАЯ ЦЕПЬ: ШИННОЕ ПОДСОЕДИНЕНИЕ ВСПОМ.ЦЕПИ: --13 - 5 недель (P)1
3RB2966-2WH2ТРАНСФОРМАТОР ТОКА 63...630 A FOR 3RB22/23 ТИПОРАЗМЕР S10/S12 ДЛЯ МОНТАЖА НА КОНТАКТОР / ОТДЕЛЬНОСТОЯЩЕЕ ГЛАВНАЯ ЦЕПЬ: ШИННОЕ ПОДСОЕДИНЕНИЕ ВСПОМ.ЦЕПИ: --1.753 - 5 недель (P)1
3RB2985-2AA0MODULE ANALOG BASIC 1 FOR 3RB22/23 ТИПОРАЗМЕР S00...S120.033 - 5 недель (P)1
3RB2985-2AA1MODULE ANALOG BASIC 1 GF FOR 3RB22/23 ТИПОРАЗМЕР S00...S120.033 - 5 недель (P)1
3RB2985-2AB1MODULE ANALOG BASIC 2 GF FOR 3RB22/23 ТИПОРАЗМЕР S00...S120.033 - 5 недель (P)1
3RB2985-2CA1MODULE BASIC 1 GF FOR 3RB22/23 ТИПОРАЗМЕР S00...S120.033 - 5 недель (P)1
3RB2985-2CB1MODULE BASIC 2 GF FOR 3RB22/23 ТИПОРАЗМЕР S00...S120.033 - 5 недель (P)1
3RB2987-2BCONNECTING CABLE 0.1 M FOR 3RB22/23 ТИПОРАЗМЕР S00...S120.013 - 5 недель (P)1
3RB2987-2DCONNECTING CABLE 0.5 M FOR 3RB22/23 ТИПОРАЗМЕР S00...S120.023 - 5 недель (P)1