0
ETI    SIEMENS    ABB    WIKA    IFM    ELKO EP    HYUNDAI    VEGA    KSR KUEBLER    Johnson Controls    Siemens IA/DT (CA01)    Bosch Rexroth    Alfa Laval    SICK    Others  

Twinhead CLV650

Код: 1061634
Связатся с нами: 067 285 7770

В корзину

Показать всё Скрыть всё

  • Характеристики
    Закрытая ширина дорожки500 mm
    ФокусАвтофокус
    Класс лазера2 (EN 60825-1:2014, IEC 60825-1:2014)
    ОбогревОпция
    Средняя наработка на отказ40.000 h
    MTTR5 min
    Области применения

    Простые универсальные приложения (OMNI)

    Процессы сортировки

    Восстановление доходов

    Поступление товара

    Область примененияIndoor
    Исполнение сканераЛинейный сканер с колеблющимся зеркалом
    Вид транспортного оборудования

    Ленточный транспортер

    Устройство для сортировки поддонов

    Роликовый транспортер

    Поперечный ленточный конвейер

    Поддон

    Количество основных компонентовЛазерный сканер: 2
  • Производительность
    Скорость транспортировки0,1 m/s ... 2,5 m/s, в зависимости от величины кода
    Минимальный промежуток между объектами50 mm
    Количество кодов на считывающий проход1 ... 50
    Количество кодов на одно сканирование

    1 ... 20, Стандартный декодер

    1 ... 6, Декодер SMART

  • Интерфейсы
    Последовательный (RS-232, RS-422/-485)
    ФункцияHostAUX
    Скорость передачи данныхHost: 300 бод ... 500 кбод, AUX: 57,6 кбод, пост.
    Ethernet✔ , в зависимости от применяемого совместимого разъема
    ФункцияHostAUX
    Скорость передачи данных10/100 Мбит/с
    ПротоколTCP/IP
    CAN-шина✔ (2)
    ФункцияДатчики фирмы «SICK» на базе локальной сети контроллеров CAN (ведущий / ведомый)
    Скорость передачи данных20 kbit/s ... 1 Mbit/s
    ПротоколCSN (SICK CAN Sensor Network)
    Оптическая индикация6, LEDs, Ready, Result, Лазер, Гистограмма параметров «Data, CAN, LNK TX» для индикации процентных значений скорости считывания (10 светодиодов)
  • Механика/электроника
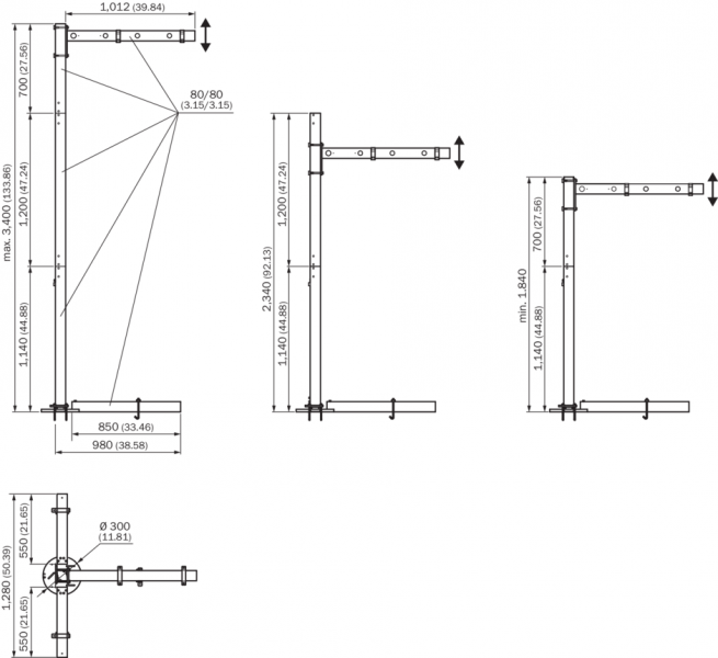
    Размеры, система (Д x Ш x В)1.100 mm x 1.280 mm x 1.745 mm
    Соединительные модулиCDM420-0004
    Рамка

    Стандарт

    По спецификации заказчика

  • Данные окружающей среды
    Рабочий диапазон температур0 °C ... +40 °C
    Диапазон температур при хранении–20 °C ... +70 °C
  • Общие указания
    Комплект поставки

    Сканер штриховых кодов CLV650

    Системно-ориентированный линейный сканер или линейный сканер с колеблющимся зеркалом ( 2 шт.)

    Двойной крепежный уголок

    Соединительный модуль CDM420-0004

    Монтажный материал

    Триггерная световая завеса

    Последовательный кабель параметрирования

    Соединительный кабель для подключения сканера штриховых кодов к соединительному модулю (2 шт.)

    Карточка памяти «Micro SD», уже находится в сканере (2 шт.)

    Применение

    Ритейл и складирование

    Курьерская и почтовая службы

  • Классификации
    ECl@ss 5.027280102
    ECl@ss 5.1.427280102
    ECl@ss 6.027280102
    ECl@ss 6.227280102
    ECl@ss 7.027280102
    ECl@ss 8.027280102
    ECl@ss 8.127280102
    ECl@ss 9.027280102
    ETIM 5.0EC002550
    ETIM 6.0EC002550
    UNSPSC 16.090143211701
Показать всё Скрыть всё

Технические чертежи

Габаритный чертеж Тwinhead CLV65x и Twinhead CLV69x Вид: Галерея Список Показать всё Скрыть всё
Показать всё Скрыть всё